电脑桌面
添加小米粒文库到电脑桌面
安装后可以在桌面快捷访问

现场签证单--装饰

现场签证单--装饰_第1页
1/64
现场签证单--装饰_第2页
2/64
现场签证单--装饰_第3页
3/64
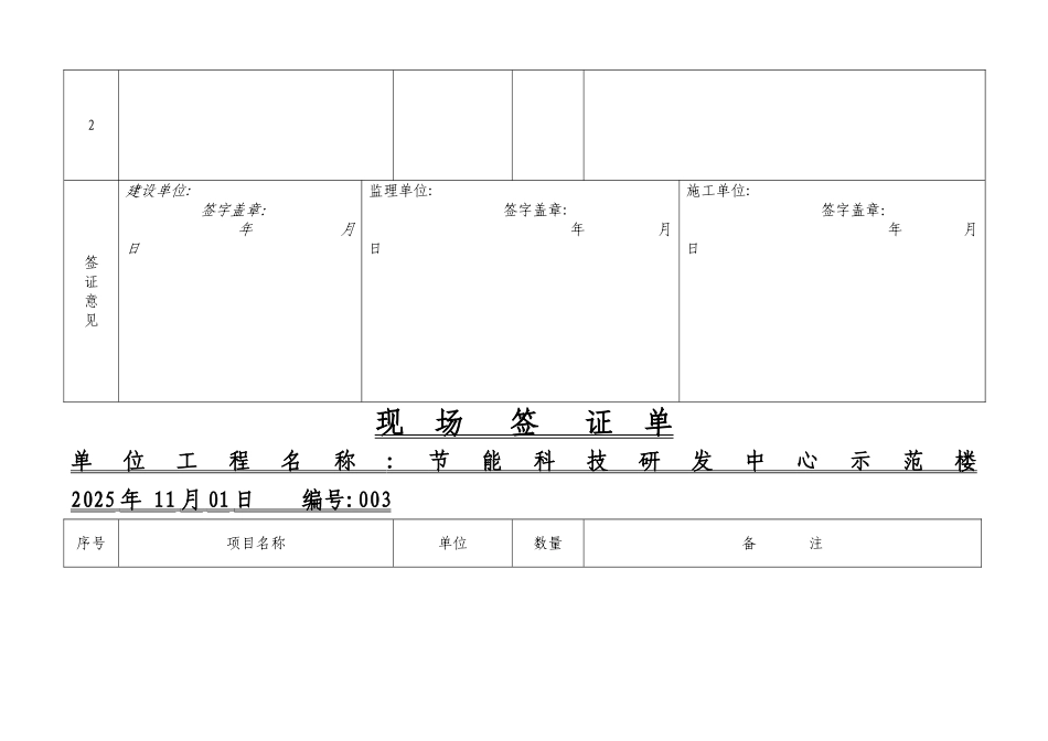
现 场 签 证 单单位工程名称 : 节能科技研发中心示范楼 2 0 1 4 年 1 0月1 2 日 编号 : 0 01 序号项目名称单位数量备 注1楼层内垃圾清理 工日26应甲方要求:楼层内得各施工单位施工中产生得垃圾,全部由我施工单位代为清理,清理楼层分别 7-15、1 7-2 0 层,每层耗费人工 2 个。共计耗费26个人工。价钱根据市场人工价钱计算。(垃圾清理后运至楼下施工现场垃圾堆放处)签证意见建设单位:签字盖章: 年 月 日施工单位:签字盖章:年 月 日现 场 签 证 单单位工程名称:节能科技研发中心示范楼 2025 年 10 月 19 日 编号 :00 2 序号项目名称单位数量备 注1东、西步梯消防门洞口地面剔凿 工日 13应甲方要求:东、西步梯入室消防通道门口地面需进行剔凿,每层 1个人工,共计 13 个。2签证意见建设单位:签字盖章:年 月 日监理单位:签字盖章:年 月 日施工单位:签字盖章:年 月 日现 场 签 证 单单位工程名称 : 节能科技研发中心示范楼 2025 年 11 月 01 日 编号 :003 序号项目名称单位数量备 注1封堵十四层原外电梯窗户口工日3应甲方要求:甲方通知我施工单位对 14 层电梯口进行封闭,现已完成,共计材料使用 9 块 2 4 00X 12 00X9、5 mm 龙牌双防石膏板,外刮腻子一遍,人工 3 人。签证意见建设单位:签字盖章:年 月 日监理单位:签字盖章:年 月 日施工单位:签字盖章:年 月 日现 场 签 证 单单位工程名称 : 节能科技研发中心示范楼 20 14 年 11 月 07 日 编号: 004 序号项目名称单位数量备 注13、8-15、1 7-2 0 层走廊北室内封堵隔墙强排烟风管洞口个48根据甲方下发得 02 6工作联系单,我单位现已完成每层强排烟风管穿过隔墙板上下部洞,使用轻质龙骨、石膏板、内填岩棉,每层4个,12 个楼层,共计 4 8个。高 0、8mX 长 1、2m,厚度根据墙体,双面封制。签证意见建设单位:签字盖章:年 月 日施工单位:签字盖章:年 月 日现 场 签 证 单单位工程名称:节能科技研发中心示范楼 201 4年 11 月 26 日 编号 :00 5 序号项目名称单位数量备 注121、22、2 3 层及西步行梯卫生清扫,垃圾下楼日工6 个应甲方要求:山西省领导对本楼坐进行莅临检查,委托我方对现场卫生进行清理。签证意见建设单位:签字盖章:年 月 日施工单位:签字盖章:年 月 日现 场 签 证 单单位工程名称 : 节能科技研发...

1、当您付费下载文档后,您只拥有了使用权限,并不意味着购买了版权,文档只能用于自身使用,不得用于其他商业用途(如 [转卖]进行直接盈利或[编辑后售卖]进行间接盈利)。
2、本站所有内容均由合作方或网友上传,本站不对文档的完整性、权威性及其观点立场正确性做任何保证或承诺!文档内容仅供研究参考,付费前请自行鉴别。
3、如文档内容存在违规,或者侵犯商业秘密、侵犯著作权等,请点击“违规举报”。

碎片内容

现场签证单--装饰

确认删除?
VIP
微信客服
  • 扫码咨询
会员Q群
  • 会员专属群点击这里加入QQ群
客服邮箱
回到顶部