电脑桌面
添加小米粒文库到电脑桌面
安装后可以在桌面快捷访问

3#楼地下结构钢筋工程

3#楼地下结构钢筋工程_第1页
1/10
3#楼地下结构钢筋工程_第2页
2/10
3#楼地下结构钢筋工程_第3页
3/10
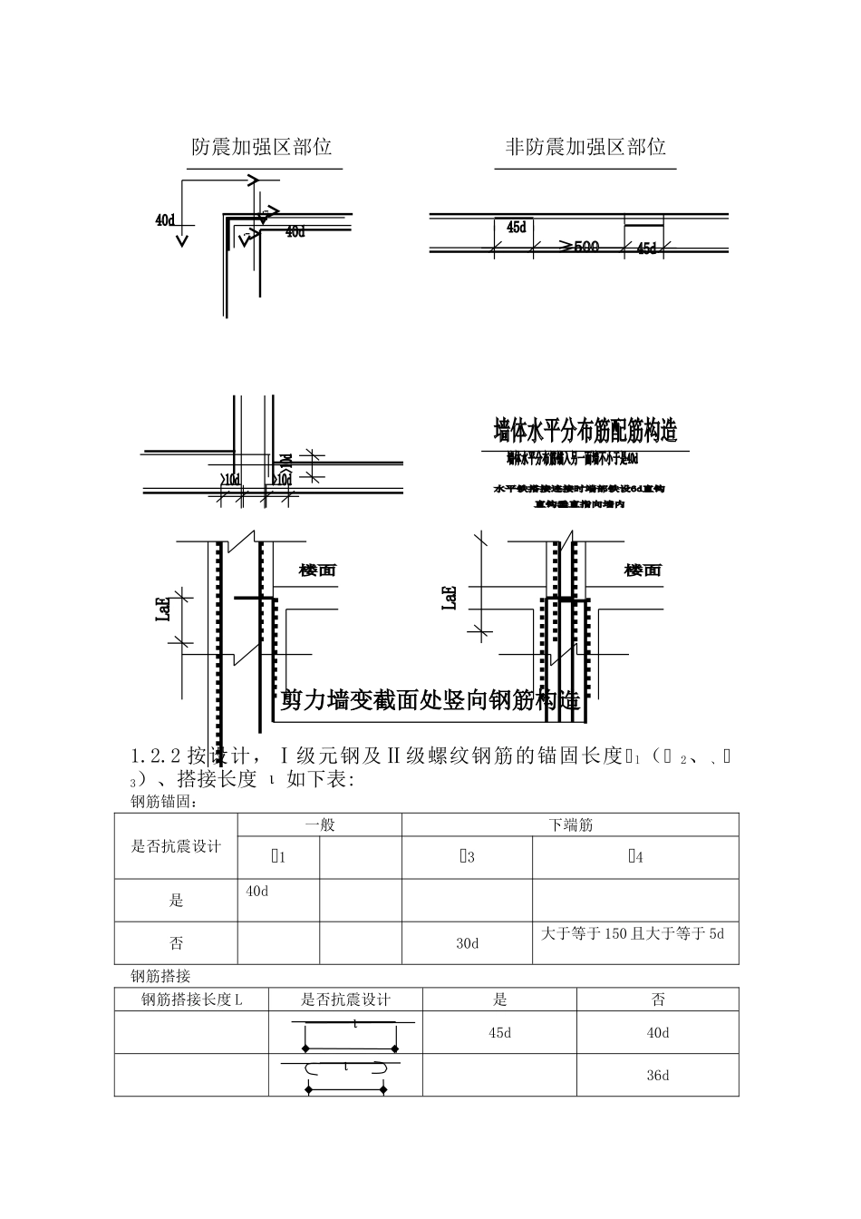
一、工程概况菜市口东片危改区 3#楼,为全现浇钢筋混凝土剪力墙结构。地下两层,其地下二层结构为车库及设备用房,面积 3328.65m2,层高为 4.35 米,地下一层为设备层兼自行车库,面积 1756.89m2,层高为3.0 米,地上 12 层,层高 2.8 米,局部九层、十层层高 3.0 米,建筑物全长 128.3 米,宽约 26.0 米,基底标高-8.26M,地上总高 40.65M。本工程为 80抗震设防,剪力墙结构抗震等级为二级,26/3 - 28/3轴线间之框支转换结构抗震等级为一级,19/3 - 35/3 轴线间之四层以下剪力墙结构抗震等级为一级。伸缩缝两侧结构地下一层至二层为抗震加强层,中间部位地下一层至五层和顶层为抗震加强层。该工程基础为整体筏板基础,基础底板厚 700mm。地下结构主要钢筋规格有:ø10、ø12、Ф12、Ф14、Ф16、Ф18、Ф20、Ф22、Ф25,与车库交接处配有 Ф28 规格钢筋。二、施工部署1.施工段面的划分:本工程地下结构钢筋施工,根据工程总体部署划分为三个施工段面组织施工流水作业。其施工段面位置详见附图。钢筋连接:基础底板采纳闪光对焊连接,柱筋采纳电渣压力焊接,墙体钢筋及板筋主要采纳搭接连接。2.劳动力组织:根据施工工作量的大小、工作进度的安排和工程质量的要求组织成立施工班组如下:班组组成人数说明钢筋班长2兼职质量员副 班 长2兼职安全员专业绑扎工60两班专业电焊工4持证上岗杂务人员10两班劳力三、施工准备工作1.机械设备配置:设 备 名 称数 量 (台)功 率(KW)钢筋电焊机(A500)221电渣压力焊机(GZH-36C)238钢筋闪光对焊机(UN1-100)2100钢筋弯曲机(GT7-40) 14钢筋切断机(GQ40-2)14卷 扬 机(Y1601)17.5砂轮切割机(SN-200)44.42.材料准备: 根据钢筋的计划单(附页),组织好钢筋的采购供应工作。 钢筋进场时应带有产品质量证明书或原材料试验报告单,现场按其炉罐(批)号、品种和规格组织验收,然后分类整齐堆放。 钢筋进场后,及时报检。 并做好有见证取样检测工作。按法律规范规定抽样复试:按同一批号(或炉号),同一品种,同一规格,不超过 60t 为一批抽一组(四根)试件。复试合格后,方可进行钢筋的下料和加工。3.钢筋加工场地的准备: 按施工组织设计的规划,钢筋进场后堆放在西大门南侧的钢筋专用制作场地上。地表用混凝土做硬化处理,地面上搭设钢管支架或垫方木,使钢筋架空大于 200mm 高,且四周设排水明沟。条件许可,上部搭设 防护棚,以防止其浸水后锈蚀而影...

1、当您付费下载文档后,您只拥有了使用权限,并不意味着购买了版权,文档只能用于自身使用,不得用于其他商业用途(如 [转卖]进行直接盈利或[编辑后售卖]进行间接盈利)。
2、本站所有内容均由合作方或网友上传,本站不对文档的完整性、权威性及其观点立场正确性做任何保证或承诺!文档内容仅供研究参考,付费前请自行鉴别。
3、如文档内容存在违规,或者侵犯商业秘密、侵犯著作权等,请点击“违规举报”。

碎片内容

3#楼地下结构钢筋工程

您可能关注的文档

确认删除?
VIP
微信客服
  • 扫码咨询
会员Q群
  • 会员专属群点击这里加入QQ群
客服邮箱
回到顶部