电脑桌面
添加小米粒文库到电脑桌面
安装后可以在桌面快捷访问

《公路工程国内招标文件范本》

《公路工程国内招标文件范本》_第1页
1/421
《公路工程国内招标文件范本》_第2页
2/421
《公路工程国内招标文件范本》_第3页
3/421
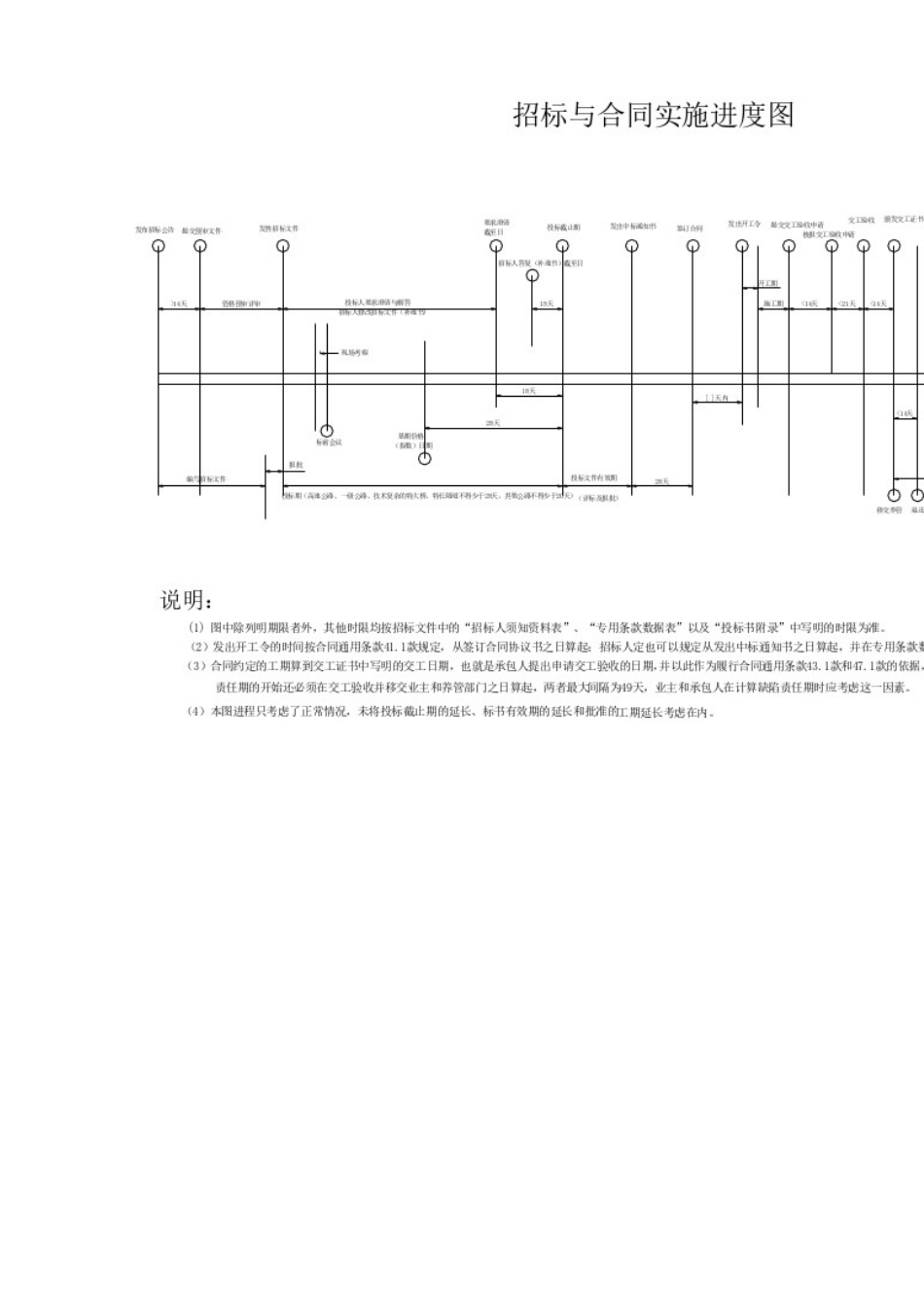
公路工程国内招标文件范本(2025 年版)交公路发[2025]94 号自 2025 年 6 月 1 日起施行人民交通出版社北京.2025第一卷第1篇投标邀请书格式第2篇投标人须知第3篇合同通用条款第4篇合同专用条款投标邀请书格式(投标人全称): 1. 省(自治区、市) 至 公路项目已由 批准修建,并已列入基本建设计划。现决定对该项目的 工程的实施和完成进行公开招标。你单位已通过资格预审(1),现邀请你单位按招标文件规定的内容,参加第 合同段的投标。2.本项目招标分为 A、B、C…… 个合同段,各合同段独立招标。第 合同段由 K + 至 K + ,长约 km,技术标准 级, 路面。有立交 处;大中桥 座,计长 m;隧道 座,计长 m,以及其他构造物工程等(独立的大桥工程应简述桥型、桥长、桥宽、跨径、基础型式、引桥引道长度等)。3.请凭本邀请书于 年 月 日至 年 月 日到 (招标人全称 ) 处购买招标文件,招标文件每套收取成本费人民币 元, 售后不退(2)。 4.业主根据对本合同工程勘察所取得的水文、地质、气象和料场分布等资料编制了一册《参考资料》,投标人在交付人民币 元之后,可以在下列地址取得一份复印件,如有需要,还可查阅详细的勘察资料。查阅地址: 联 系 人: 电 话: 5.投标人在送交投标文件时,应按投标人须知第 13 条规定提交人民币 元或不低于投标价 1%的投标担保(3)。6.招标人将于下列时间和地点组织进行工程现场考察并召开标前会议。现场考察时间 年 月 日 时,地点: ;标前会议时间 年 月 日 时,地点: ;7.投标文件送交的截止时间为 年 月 日 时(4),投标文件必须在上述时间前递交至(单位: 地址: ) ,招标人定于投标文件送交截止的同一时间、同一地址进行公开开标。(5)8.请在收到本邀请书 24 小时(以发了时间为准)内,以书面方式回函确认。假如你单位不准备参加投标,亦请尽快通知我们,谢谢合作。招标人地址: 邮 编: 电 话: 传 真: 联 系 人 : 招标人: (盖章) 年 月 日 注(1):本邀请书适用于公开招标实行资格预审的项目;假如用资格后审,第 1 条的“已通过资格预审”文字应删去。(2):每套招标文件售价只计工本费,最高不超过 1000 元(不含图纸部分)。参考资料也应只计工本费,最高不超过 1000 元。(3):投标担保的形式应与投标人须知第 13.2 款的规定一致。(4):自招标文件开始发出之日起至投标人送...

1、当您付费下载文档后,您只拥有了使用权限,并不意味着购买了版权,文档只能用于自身使用,不得用于其他商业用途(如 [转卖]进行直接盈利或[编辑后售卖]进行间接盈利)。
2、本站所有内容均由合作方或网友上传,本站不对文档的完整性、权威性及其观点立场正确性做任何保证或承诺!文档内容仅供研究参考,付费前请自行鉴别。
3、如文档内容存在违规,或者侵犯商业秘密、侵犯著作权等,请点击“违规举报”。

碎片内容

《公路工程国内招标文件范本》

您可能关注的文档

确认删除?
VIP
微信客服
  • 扫码咨询
会员Q群
  • 会员专属群点击这里加入QQ群
客服邮箱
回到顶部