电脑桌面
添加小米粒文库到电脑桌面
安装后可以在桌面快捷访问

二层楼体装饰工程量清单计价实例

二层楼体装饰工程量清单计价实例_第1页
1/26
二层楼体装饰工程量清单计价实例_第2页
2/26
二层楼体装饰工程量清单计价实例_第3页
3/26
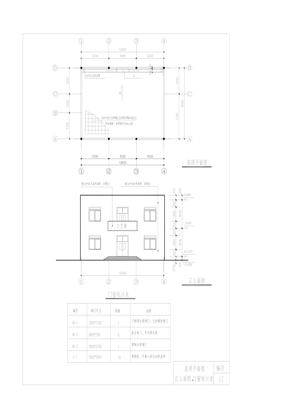
图纸目录序号图纸编号图纸内容101图纸目录,设计说明202一层平面图,二层平面图303屋顶平面图,正立面图,门窗统计表404基础平面图,条基大样,ZJ-1,Z-1505二层楼面结构布置图,屋顶结构布置图,TG606L-1、L-2、L-3、L-4、QL、GZ-1、TB、TL-1设计说明1. 本工程为一栋二层工艺制作展示楼,层高均为 3.60m,建筑面积 237.28㎡。2. 本工程设计除标高以 m 为单位外,其余尺寸均为 mm 单位。3. 本工程墙体除二层天台拦板为 120mm 外,其余均为 240mm 标准砖实砌。4. 本工程建筑设计采纳中南标作设计标准图。具体做法如下。地面:卫生间、混凝土台阶面层均为 300×300 防滑地砖,其余均为 600×600 抛光彩釉砖,20 厚 1:3 水泥砂浆找平,60 厚 C10 混凝土。做法详见 98ZJ001 地 16。楼面为 600×600 抛光彩釉砖,楼梯、卫生间、天台为 300×300 防滑地砖,20 厚 1:4 干硬性水泥砂浆粘贴。做法详见 98ZJ001 楼 9。展厅、工作间、值班室均做 150mm 高彩釉砖踢脚线,水泥砂浆粘贴。内墙面:卫生间做 2.1m 高 200×300 瓷板墙裙水泥砂浆粘贴,做法详见 98ZJ001 内墙 8。其余全部为混合砂浆抹灰,做法详见 98ZJ001 内墙 4。抹灰面刷乳胶漆二遍。外墙面: 60×240 面砖水泥砂浆贴面,做法详见 98ZJ001 外墙 12。女儿墙内侧、天台内侧为水泥砂浆抹灰。顶棚:全部为混合砂浆抹灰,做法详见 98ZJ001 顶棚 3。并刷乳胶漆二遍。油漆:木门等木制构件刷清漆三遍。屋面:三毡四油有隔热层现浇保温层。其中:隔热层为 495×495×30mm 预制板,C20 混凝土,内配 Ф4 钢筋双向中距 220;防水层为三毡四油; 15 厚 1:3 水泥砂浆找平层;保温层 120 厚(最薄处)1:8 水泥膨胀珍珠岩找坡 3%;热沥青马蹄脂二道隔气层;1:3 水泥砂浆找平厚 20。做法详见 98ZJ001 屋 1。5.本工程女儿墙压顶、天台拦板墙压顶均做 C20 砼 60 厚,宽为相应墙宽+ 30mm,内配 2φ6 纵向钢筋,φ6@300 分布筋。6.一层室内圆柱为 1 厚不锈钢饰面,三夹板基层,木龙骨。楼梯栏杆为不锈钢栏杆扶手。木门做 100mm 宽门套,外包榉木板。7.结构部分:砌体材料:基础用 M5.0 水泥砂浆砌筑,墙体用 M5.0 混合砂浆,Mu10 砖砌筑。混凝土材料:除结构图纸注明外,均采纳 C20 混凝土。钢筋:采纳Ⅰ-φ,Ⅱ-Ф 级。M-2 上采纳预制过梁,截面 240*60,长度为洞宽+500mm,内配 3φ6 纵向钢筋,φ6@2...

1、当您付费下载文档后,您只拥有了使用权限,并不意味着购买了版权,文档只能用于自身使用,不得用于其他商业用途(如 [转卖]进行直接盈利或[编辑后售卖]进行间接盈利)。
2、本站所有内容均由合作方或网友上传,本站不对文档的完整性、权威性及其观点立场正确性做任何保证或承诺!文档内容仅供研究参考,付费前请自行鉴别。
3、如文档内容存在违规,或者侵犯商业秘密、侵犯著作权等,请点击“违规举报”。

碎片内容

二层楼体装饰工程量清单计价实例

确认删除?
VIP
微信客服
  • 扫码咨询
会员Q群
  • 会员专属群点击这里加入QQ群
客服邮箱
回到顶部