电脑桌面
添加小米粒文库到电脑桌面
安装后可以在桌面快捷访问

全热新风换气机的类型及应用

全热新风换气机的类型及应用_第1页
1/6
全热新风换气机的类型及应用_第2页
2/6
全热新风换气机的类型及应用_第3页
3/6
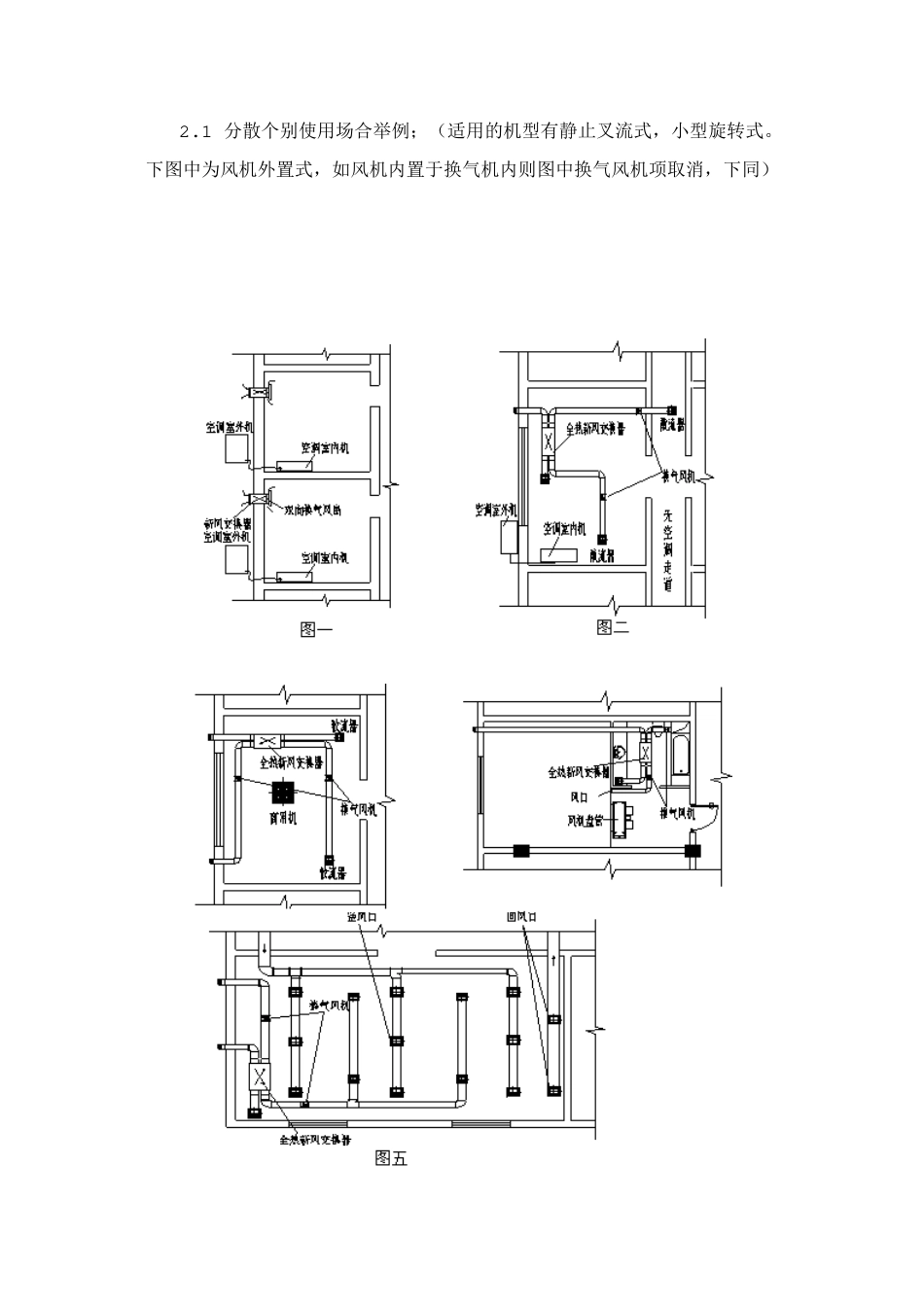
全热新风换气机的类型及应用摘要: 本文分析了空气-空气全热新风交换器的类型及其应用范围和前景,并列举了实际应用的模式及相关应用问题。 关键词: 新风 显热 全热 节能 近年来,随着商品经济的迅猛进展,社会购买能力的渐升趋势,人们对改善室内环境品质的呼声也日益高涨,尤其是“非典”疫情的发生以后,空气-空气全热交换机以其独特的优势已在市场上逐步普及开来。空气调节工程中,新风系统采纳独立空气-空气全热新风换气机进行进、排风换热节能运转的例子,正在不断地增多。这主要有以下几个原因:⑴节能环保的要求提高;⑵分散个别空调运行方式的增多导致局部分通民区补充新风的要求也增多;⑶商用空调的应用场合增多,往往没有新风装置;⑷空调室内外空气焓差正在扩大,也就意味着,空调机的能耗在增大;⑸对提高室内空气品质,防止病毒、病菌的扩散和交叉感染的呼声日益高涨,也就是说空调解决了冷暖之后,随之室内空气应当新奇洁净才益于人的健康;⑹建筑物气密性越来越好,使得自然渗透对流通风成为不可能;⑺城市空气中悬浮颗粒物普遍偏高成为城市空气污染的首恶。 1 市售空气-空气全热新风交换机的类型及其功能特点 独立空气—空气全热新风换气机的使用范围从工业特别场合扩大到常温状态的一般民用场合,大体上经历了一个长期渐进的进展过程。首先从换热效率来说,已逐渐从只有显热交换的高温传热过程,进展到今日的常温全热过程;从用途来说,由最初的除湿,到再热回收进而进展到目前的全热回收;从采纳的换热方式来说,由吸收(或吸附)方式转而进展到采纳透过形工作方式;从传热材料来说,由过去为保证换热效率而使用结构复杂、材料特别、价格高的材料,进而进展到使用价廉并能保证换热效率的材料。 目前市售的用于空气—空气新风换气机的类型,按换热芯运动与否分为静止式和旋转式两大类。静止式换热器通常采纳板式结构,有显热类和全热类两种,显热类通常多用金属膜或者非金属膜作为换热材料,而全热类则通常采纳透过形或者吸收(或吸附)形工作方式。静止式的优点是无交叉污染,换热芯无运动,换热过程连续且运转可靠,这类全热换气机的功能不仅仅是换气,还可以除尘,进与出的换气量能够保证,而且设有过滤装置,能够过滤室外空气里的灰尘等,控制室内气压是处于正压还是负压状态,也可作单向只排不送或只送不排的运行;还可以隔绝室外噪音;在夏季除湿,冬季增湿,维持室内热环境的舒适性。还有一种静止式采纳...

1、当您付费下载文档后,您只拥有了使用权限,并不意味着购买了版权,文档只能用于自身使用,不得用于其他商业用途(如 [转卖]进行直接盈利或[编辑后售卖]进行间接盈利)。
2、本站所有内容均由合作方或网友上传,本站不对文档的完整性、权威性及其观点立场正确性做任何保证或承诺!文档内容仅供研究参考,付费前请自行鉴别。
3、如文档内容存在违规,或者侵犯商业秘密、侵犯著作权等,请点击“违规举报”。

碎片内容

全热新风换气机的类型及应用

您可能关注的文档

阳光书坊+ 关注
实名认证
内容提供者

阳光书坊,传播未来

确认删除?
VIP
微信客服
  • 扫码咨询
会员Q群
  • 会员专属群点击这里加入QQ群
客服邮箱
回到顶部