电脑桌面
添加小米粒文库到电脑桌面
安装后可以在桌面快捷访问

北京某体育馆工程质量管理方案

北京某体育馆工程质量管理方案_第1页
1/29
北京某体育馆工程质量管理方案_第2页
2/29
北京某体育馆工程质量管理方案_第3页
3/29
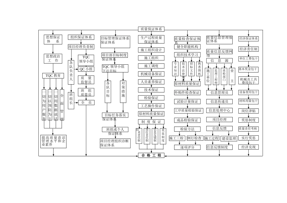
质量保证措施和创优计划第一节 建立完善的质量保证体系一、工程质量保证目标本工程将按《ISO9001 程序文件》要求,实行全方位、全过程质量管理,确保分项工程一次验收合格率 100%,确保整体工程竣工验收达到合格标准。确保获得“竣工长城杯”。二、工程质量控制体系我单位根据 ISO9001 国际标准质量体系进行质量管理,建立由项目经理为领导小组组长的“质量管理体系”,覆盖各要素、各职能部门,一切以质量为中心,全员参加质量管理的管理模式。编制项目质量计划,成立以项目经理为首的项目质量管理小组。施工中将严格根据 ISO9001 质量标准程序运作,从原材料、劳务的采购开始,对工程产品的质量层层把关。选择合格分供商的材料和劳务,进场后经过现场检验能够满足本工程需要方可使用。对劳务施工队伍进行严格的进场再培训,考核合格后方可允许上岗,并且仔细进行施工技术交底。编制重点工程工序的施工作业指导书。在施工过程中控制质量,在前一道工序完成后必须经过检验,合格后方可进入下一道工序,项目部施工过程实行联检、三检制度,在检查中发现的质量隐患和不合格品及时实行纠正措施进行整改,对发生频率高的质量问题应进行质量分析,制定切实可行的预防措施,针对重点分部分项工程建立 QC 小组并有效运行。质量过程实行全过程跟踪动态管理,所有施工过程形成的文件资料不追记、不涂改、保持记录真实性,并安排专人保管。在施工检查过程中消灭质量问题,在整个工程竣工之后及时总结施工经验教训,继续对施工产品进行维护,定期回访,保证工程使用不受影响。质量管理体系框图见下页。质量保证体系生产过程质量保证体系施工组织设计施工组织施工调度机械设备保证人员素养保证技术保证检验保证工艺操作保证原材料质量保证制 度 保 证技术责任制岗位责任制信息反馈制奖惩制度合 格 工 程质量检查保证体系健全职能机构组织技术学习原材料质量保证外购件检查保证试验计量保证工序质量检验保证成品检验保证熟悉图纸技术法律规范专业知识招标文件检验方法施工三检例行检查目标管理保证体系保证体系项目部目标制度保证体系目标任务落实保证体系班组或个人保证体系项目经理组织诊断保证体系组织保证体系项目经理负责制QC 小组班 组质量员班组长思想保证体 系TQC 教育一切为用户服务一切以预防为主一切用数据说话全面管理质量信息管理保证体系质量信息反馈网络业主监理工程师施工单位质检部门信 息 源信息管理员信息传递员信息处...

1、当您付费下载文档后,您只拥有了使用权限,并不意味着购买了版权,文档只能用于自身使用,不得用于其他商业用途(如 [转卖]进行直接盈利或[编辑后售卖]进行间接盈利)。
2、本站所有内容均由合作方或网友上传,本站不对文档的完整性、权威性及其观点立场正确性做任何保证或承诺!文档内容仅供研究参考,付费前请自行鉴别。
3、如文档内容存在违规,或者侵犯商业秘密、侵犯著作权等,请点击“违规举报”。

碎片内容

北京某体育馆工程质量管理方案

确认删除?
VIP
微信客服
  • 扫码咨询
会员Q群
  • 会员专属群点击这里加入QQ群
客服邮箱
回到顶部