电脑桌面
添加小米粒文库到电脑桌面
安装后可以在桌面快捷访问

唐山某钢铁厂焦化工程焦台模板支撑施工方案

唐山某钢铁厂焦化工程焦台模板支撑施工方案_第1页
1/31
唐山某钢铁厂焦化工程焦台模板支撑施工方案_第2页
2/31
唐山某钢铁厂焦化工程焦台模板支撑施工方案_第3页
3/31
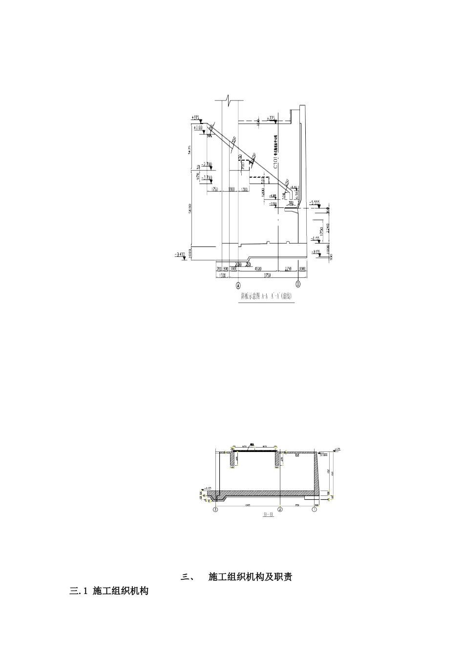
目 录一 、 编 制 依 据 ..............................................................................................................21.1 施 工 图 纸 ..............................................................................................................21.2 主 要 法 律 规 范 、 规 程 、 标 准 ........................................................2二 、 工 程 概 况 ..............................................................................................................22.1 基 本 概 况 ..............................................................................................................22.2 平 台 平 面 图 .......................................................................................................2三 、 施 工 组 织 机 构 及 职 责 ............................................................................43.1 施 工 组 织 机 构 ................................................................................................43.2 人 员 职 责 : .......................................................................................................4四 、 施 工 准 备 ..............................................................................................................44.1 技 术 准 备 ..........................................................................................................44.2 机 具 准 备 ..............................................................................................................54.3 材 料 准 备 ..............................................................................................................5五 、 施 工 方 法 及 措 施 ..........................................................................................65.1 斜 板 模 板 支 撑 体 系 施 工 ......................................................................65.3 模 板 支 撑 架 搭 设 ..........................................

1、当您付费下载文档后,您只拥有了使用权限,并不意味着购买了版权,文档只能用于自身使用,不得用于其他商业用途(如 [转卖]进行直接盈利或[编辑后售卖]进行间接盈利)。
2、本站所有内容均由合作方或网友上传,本站不对文档的完整性、权威性及其观点立场正确性做任何保证或承诺!文档内容仅供研究参考,付费前请自行鉴别。
3、如文档内容存在违规,或者侵犯商业秘密、侵犯著作权等,请点击“违规举报”。

碎片内容

唐山某钢铁厂焦化工程焦台模板支撑施工方案

确认删除?
VIP
微信客服
  • 扫码咨询
会员Q群
  • 会员专属群点击这里加入QQ群
客服邮箱
回到顶部