电脑桌面
添加小米粒文库到电脑桌面
安装后可以在桌面快捷访问

某综合楼工程模板工程施工方案

某综合楼工程模板工程施工方案_第1页
1/19
某综合楼工程模板工程施工方案_第2页
2/19
某综合楼工程模板工程施工方案_第3页
3/19
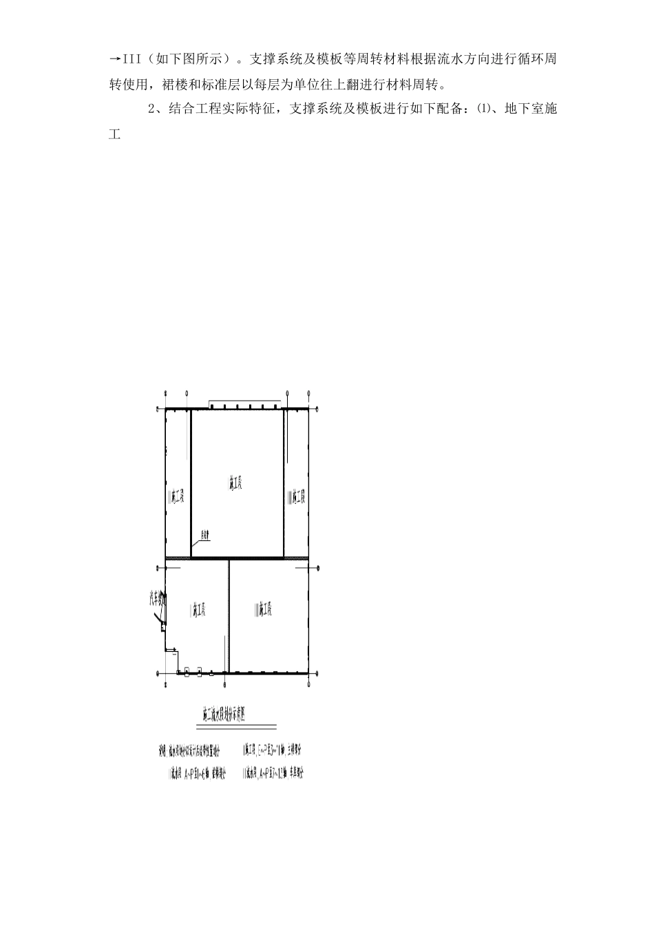
目 录一 工程概况 ... 二 模板工程材料的选用三 支撑系统及模板周转材料的配备 ... 四 模板工艺要求和施工方法五 支模架系统计算六 支模架搭设构造要求七 检查与验收 八 质量保证措施九 工期保证措施十 安全管理十一 现场文明施工和材料节约措施一、工程概况1.本工程为***综合楼一期工程,位于***路东面、***大道南面。该工程建筑面积为57556m2, 总建筑高度99.50m,地下室1层、主楼地上24层(框架-核心筒结构)、裙楼5层(框架结构)。建筑物长度101.6米、建筑物宽度80.80米,主楼结构形式为框架-核心筒结构,裙楼结构形式为框架结构。本工程由泰州市***投资有限公司投资建设,由苏州市***设计讨论院有限责任公司设计,由江苏***机械化基础工程公司勘察,由泰兴市***建设监理有限公司监理,由湖南省***工程有限公司组织施工。2.本方案编制遵循《建筑施工安全检查标准》(JGJ59-99)、《建筑施工扣件式钢管脚手架安全技术法律规范》(JGJ130-2001、J84-2001)以及《混凝土结构工程施工及验收法律规范》(GB50204-2025)的要求。二、模板工程材料的选用根据常规的施工方法,结合市场材料供应情况,考虑施工质量的要求以及施工的易操作性,本工程模板工程采纳的材料分别如下:1、模板支撑体系:采纳扣件式钢管满堂支模架作为模板水平和垂直支撑体系。具体构件的支撑方式详见后面的构件支模方法。2、模板板材:为了保证工程质量及增加模板周转次数,决定采纳 18mm 厚胶合板。模板本身的质量直接牵涉到模板工程的质量和模板的周转次数,所以,木模板进货时必须严格把关。3、木枋材料本工程木枋采纳 50×100 杉木枋材,直接购进成品,到现场再经平刨和压刨加工,选购时必须注意木材的含水率必须低于 25%,不得有翘曲变形现象。其它辅助材料的选择和要求在后面的方案中再说明。三、支撑系统及模板周转材料的配备1、 模板工程施工段划分:±0.000 以下模板工程划分为三个流水段进行施工作业,流水方向为:I→II→III(如下图所示)。支撑系统及模板等周转材料根据流水方向进行循环周转使用,裙楼和标准层以每层为单位往上翻进行材料周转。 2、结合工程实际特征,支撑系统及模板进行如下配备:⑴、地下室施工阶段配备一层+2/3 层(I、II 施工段)的支撑材料及模板材料。地下室面积约为 8000m2,我项目准备 24000㎡的模板进行循环使用。⑵、裙楼施工阶段配备三层支撑材料及模板材料。⑶、标准层施工阶段配备四层支撑材料及模板...

1、当您付费下载文档后,您只拥有了使用权限,并不意味着购买了版权,文档只能用于自身使用,不得用于其他商业用途(如 [转卖]进行直接盈利或[编辑后售卖]进行间接盈利)。
2、本站所有内容均由合作方或网友上传,本站不对文档的完整性、权威性及其观点立场正确性做任何保证或承诺!文档内容仅供研究参考,付费前请自行鉴别。
3、如文档内容存在违规,或者侵犯商业秘密、侵犯著作权等,请点击“违规举报”。

碎片内容

某综合楼工程模板工程施工方案

您可能关注的文档

确认删除?
VIP
微信客服
  • 扫码咨询
会员Q群
  • 会员专属群点击这里加入QQ群
客服邮箱
回到顶部