电脑桌面
添加小米粒文库到电脑桌面
安装后可以在桌面快捷访问

模板工程施工质量标准化图册高清大图

模板工程施工质量标准化图册高清大图_第1页
1/33
模板工程施工质量标准化图册高清大图_第2页
2/33
模板工程施工质量标准化图册高清大图_第3页
3/33
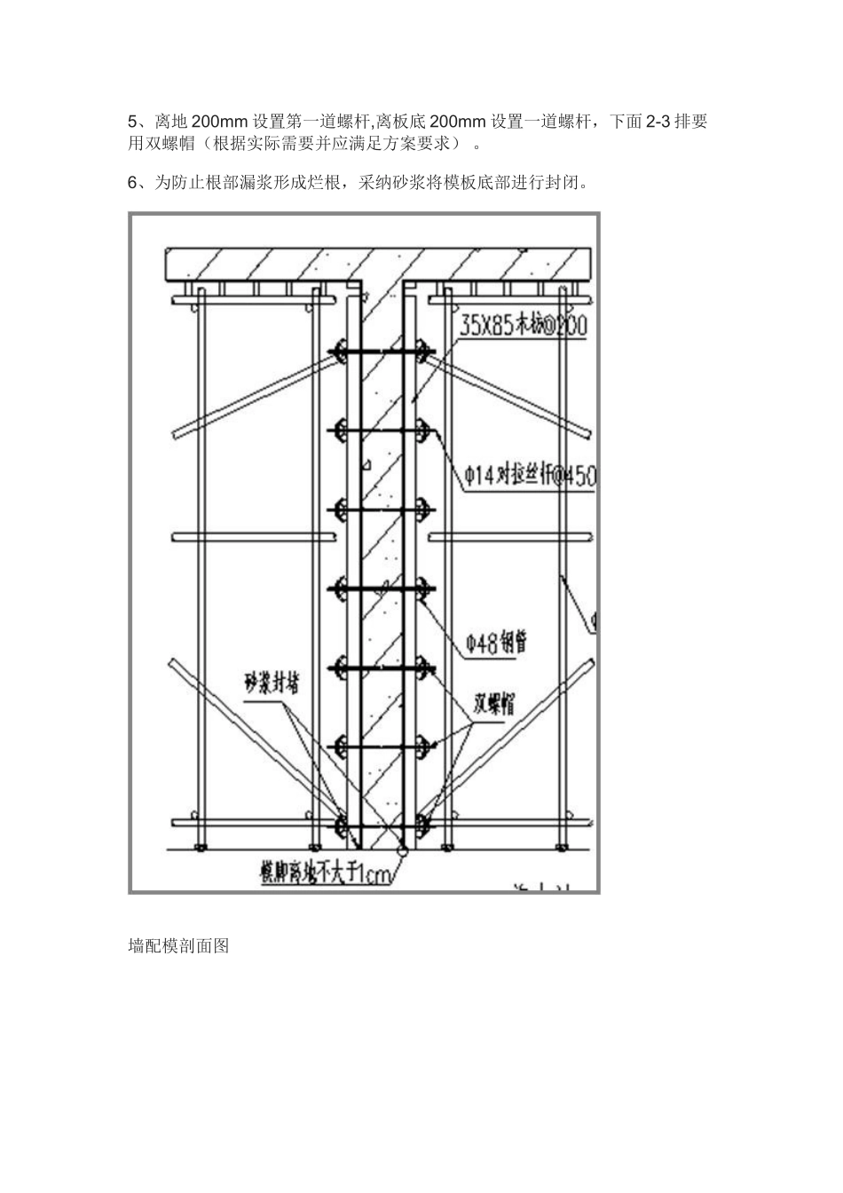
模板工程施工质量标准化图册第一节 墙柱模板(放线)1、由施工员测放控制线,并经相关人员复核,严禁直接交由班组测放。2、根据控制线放出 200mm 模板控制线。3、最后放出模板定位线。4、离转角 100mm 弹大角垂直控制线。第一节 墙柱模板(加固)墙模板加固通用要求1、严格根据施工方案安装穿墙螺杆。2、螺杆直径≥Ф12,并采纳配套的螺帽和 3 型卡。3、模板拼缝处要贴海绵条并用木方压实,木方间距 200mm 并符合方案要求。4、螺杆一般设置:加固螺杆纵横间距 600mm(应满足方案要求);5、离地 200mm 设置第一道螺杆,离板底 200mm 设置一道螺杆,下面 2-3 排要用双螺帽(根据实际需要并应满足方案要求) 。6、为防止根部漏浆形成烂根,采纳砂浆将模板底部进行封闭。墙配模剖面图墙配模平面图第一节 墙(柱)模板(加固效果)模板加固加固效果砂浆封闭第一节 墙柱模板(端头加固工艺)墙柱模板加固要求:1、严格根据施工方案安装穿墙螺杆。2、螺杆直径不小于 Ф12(满足方案要求),并采纳配套的螺帽和 3 型卡。3、模板拼缝处要贴海绵条并用木方压实,木方间距 200mm 并符合方案要求。4、螺杆间距设置:纵横向间距不大于 600。5、离地 200mm 设置第一道螺杆,离梁底 200mm 设置一道螺杆,下面 2-3 排要用双螺帽 (满足方案要求) 。6、阳角部位采纳端面硬拼,用钢管扣紧,再用木楔挤紧,保证阳角方正。7、为防根部漏浆形成烂根,采纳砂浆将模板底部封闭(浇砼前一天做)。转角部位加固墙柱端头加固效果第一节 柱模板(加固工艺)细部处理加固示意图第一节 墙柱模板(接茬工艺)1、墙柱接茬位置模板应伸至接缝以下螺杆上,为防止漏浆,接缝位置采纳双面胶条封堵,墙柱根部用水泥砂浆封堵模板。2、当采纳下层已有对拉螺杆洞对拉加固时,其距接缝位置应小于 300mm;当采纳预埋锁脚螺杆时,其距接缝位置 150mm。3、两种方法螺杆水平间距均为 600mm,满足相应的专项施工方案。墙预埋锁脚螺杆利用下层已有对拉螺杆洞加固预埋锁脚螺杆第一节 墙柱模板(接茬、板面接缝)1、梁板柱分开浇筑的柱面浇筑标高必须严格控制,其收口要平齐。2、为保证柱接茬密实,其接缝位置必须在浇筑混凝土前将浮浆凿除。柱接茬位置楼板面接缝楼板面接缝封堵第二节 梁模板梁模板加固通用要求:1、严格根据施工方案安装穿梁螺杆(当梁高小于 500mm 时,可采纳短木方或小块层板于梁中部加撑,外边梁需用螺杆加固)。2、模板拼缝处要贴海绵条...

1、当您付费下载文档后,您只拥有了使用权限,并不意味着购买了版权,文档只能用于自身使用,不得用于其他商业用途(如 [转卖]进行直接盈利或[编辑后售卖]进行间接盈利)。
2、本站所有内容均由合作方或网友上传,本站不对文档的完整性、权威性及其观点立场正确性做任何保证或承诺!文档内容仅供研究参考,付费前请自行鉴别。
3、如文档内容存在违规,或者侵犯商业秘密、侵犯著作权等,请点击“违规举报”。

碎片内容

模板工程施工质量标准化图册高清大图

MY shop+ 关注
实名认证
内容提供者

欢迎挑选适合自己的材料。

确认删除?
VIP
微信客服
  • 扫码咨询
会员Q群
  • 会员专属群点击这里加入QQ群
客服邮箱
回到顶部