电脑桌面
添加小米粒文库到电脑桌面
安装后可以在桌面快捷访问

人防施工注意事项

人防施工注意事项_第1页
1/8
人防施工注意事项_第2页
2/8
人防施工注意事项_第3页
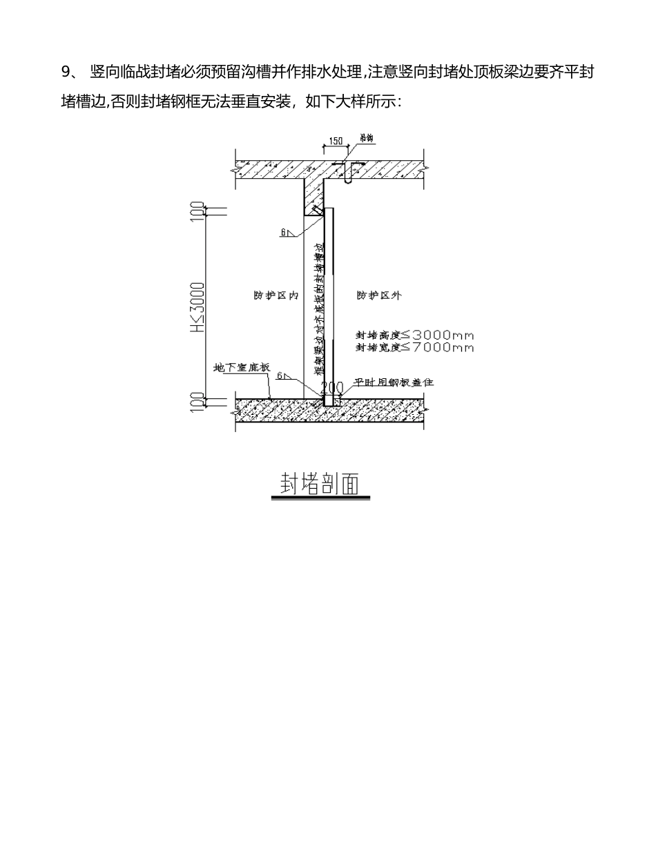
3/8
人防工程施工注意事项1、 人防工程除了防地下渗漏外,还有防化学武器、防生物武器的要求,所以要做好密闭工作。人防施工图中所有的预埋构件必须在浇筑混凝土前预埋到位,一次浇筑完成,不允许事后敲凿。2、 须注意防爆地漏预埋管漏埋、高于地坪最终完成面或管口未做封堵杂物渗入导致不通水.防爆地漏安装图如下:3、 筏板预埋阶段须注意相邻防护单元临战封堵 07FJ02(P125)、车道出入口竖向临战封堵 07FJ02(P119)、门框门槛筋预埋,请按图施工。如筏板上未预制做门槛筋,人防防护设备厂不预埋门框、临战封堵。4 、 消 防 管 、 水 管 穿 越 人 防 区 外 墙 及 顶 板 必 须 安 装 阀 门 ( 防 护 区 内 离 墙 200mm)。相邻防护单元必须两面加阀门.5、 与防空地下室无关的管道不得穿过人防防护围护结构,上部建筑的生活污水管、雨水管、燃气管道不得进入防空地下室, 风管、电缆桥架穿越人防外墙及顶板、相邻防护单元隔墙人防区非人防区必须做防护措施(应做侧墙临战封堵07FJ02(P60).侧墙封堵如下图:6、 施工过程中加固模板螺栓不能使用 PVC 套管,应用一次性带翼环螺栓。7、人防地下室顶板、底板、所有的钢筋混凝土人防墙体必须设置拉结钢筋,拉结钢筋的直径不得小于 6mm,间距不得大于 500mm, 防护密闭门、密闭门,门槛筋、加强筋必须按图绑扎到位。8、 防护单元间与单元间或非人防区排水沟交汇处必须做防护处理.9、 竖向临战封堵必须预留沟槽并作排水处理,注意竖向封堵处顶板梁边要齐平封堵槽边,否则封堵钢框无法垂直安装,如下大样所示:10、平常通风竖井(顶板封堵)必须按图施工 07FJ02(P126),如下图所示:11、人防门框固定支撑,混凝土未达到最终强度不能拆除。12、 如人防口部染毒水池在密闭通道内,请核实设计法律规范是否符合要求。13、防空地下室人防工程如设计院设计图选用活门槛,尽量更改为固定门槛(除消防、人防公用通道,医疗抢救通道外)。连通口如采纳活门槛,必须更改为固定门槛。14、如图纸设计中门扇的开启方向有冲突,请建设单位向设计方落实,更改以设计变更为依据。15、 悬板活门洞口请按建施结构法律规范要求做。16、土建施工墙体是否与人防围护结构墙体相符。17、 施工中,防护设备的定位轴线(点)、标高由土建单位准确无误提供(书面形式)。18、防控地下室设计,比如:GHSFM6030,其中“30”为门洞高度 3m,需考虑程高是否足够。19、人防地下室密闭通道,连通口防护密...

1、当您付费下载文档后,您只拥有了使用权限,并不意味着购买了版权,文档只能用于自身使用,不得用于其他商业用途(如 [转卖]进行直接盈利或[编辑后售卖]进行间接盈利)。
2、本站所有内容均由合作方或网友上传,本站不对文档的完整性、权威性及其观点立场正确性做任何保证或承诺!文档内容仅供研究参考,付费前请自行鉴别。
3、如文档内容存在违规,或者侵犯商业秘密、侵犯著作权等,请点击“违规举报”。

碎片内容

人防施工注意事项

您可能关注的文档

确认删除?
VIP
微信客服
  • 扫码咨询
会员Q群
  • 会员专属群点击这里加入QQ群
客服邮箱
回到顶部