电脑桌面
添加小米粒文库到电脑桌面
安装后可以在桌面快捷访问

(项目拓展管理流程)某地产集团公司企业管理流程VIP免费

(项目拓展管理流程)某地产集团公司企业管理流程_第1页
1/46
(项目拓展管理流程)某地产集团公司企业管理流程_第2页
2/46
(项目拓展管理流程)某地产集团公司企业管理流程_第3页
3/46
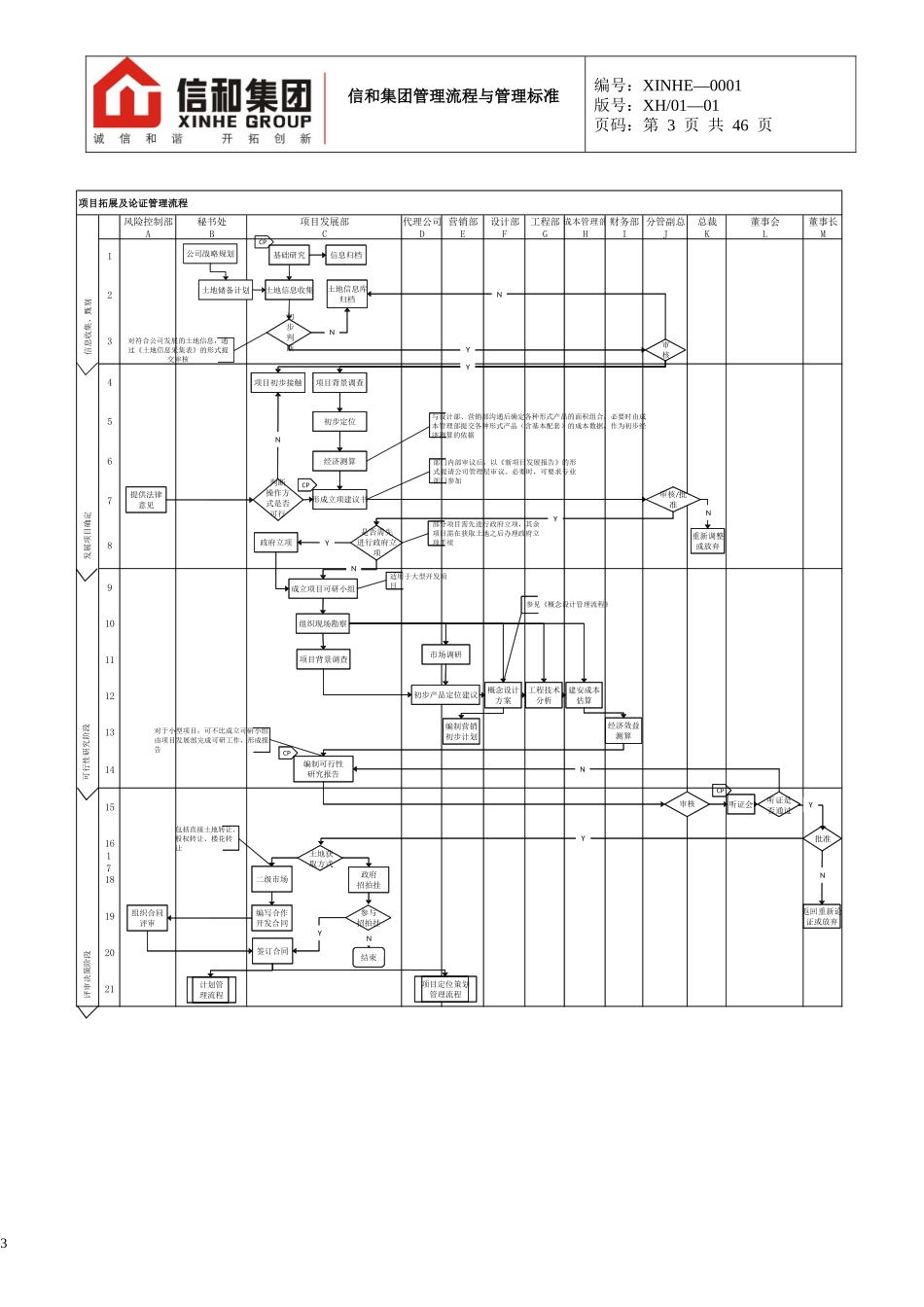
-信和集团管理流程与管理标准编号:XINHE—0001版号:XH/01—01页码:第1页共46页信和集团管理流程项目拓展管理流程1.项目拓展及论证管理流程2.市场研究作业指引3.项目可行性报告内容1项目拓展及论证管理流程编制日期审核日期批准日期修订记录日期修订状态修改内容修改人审核人批准人信和集团管理流程与管理标准编号:XINHE—0001版号:XH/01—01页码:第2页共46页2信和集团管理流程与管理标准编号:XINHE—0001版号:XH/01—01页码:第3页共46页风险控制部秘书处项目发展部代理公司营销部设计部工程部成本管理部财务部分管副总总裁董事会董事长ABCDEFGHIJKLM1234567891011121314151618192021项目拓展及论证管理流程公司战略规划基础研究信息归档土地储备计划土地信息收集土地信息库归档初步判断审核对符合公司发展的土地信息,通过《土地信息采集表》的形式提交审核项目初步接触项目背景调查初步定位经济测算形成立项建议书与设计部、营销部沟通后确定各种形式产品的面积组合,必要时由成本管理部提交各种形式产品(含基本配套)的成本数据,作为初步经济测算的依据部门内部审议后,以《新项目发展报告》的形式提请公司管理层审议。必要时,可要求专业部门参加判断操作方式是否可行提供法律意见审核/批准重新调整或放弃是否需先进行政府立项政府立项部分项目需先进行政府立项,其余项目需在获取土地之后办理政府立项手续成立项目可研小组适用于大型开发项目组织现场勘察项目背景调查市场调研初步产品定位建议概念设计方案工程技术分析建安成本估算编制营销初步计划经济效益测算编制可行性研究报告对于小型项目,可不比成立可研小组,由项目发展部完成可研工作,形成报告审核听证会听证是否通过批准二级市场政府招拍挂土地获取方式包括直接土地转让、股权转让、楼花转让编写合作开发合同签订合同参与招拍挂结束组织合同评审计划管理流程项目定位策划管理流程返回重新论证或放弃参见《概念设计管理流程》NYYNCPCPCPCPYYYYYNNNNNN17信息收集、甄别发展项目确定可行性研究阶段评审决策阶段3信和集团管理流程与管理标准编号:XINHE—0001版号:XH/01—01页码:第4页共46页1..目的为保持公司可持续性发展,寻找房地产新项目并在确定项目前对其可行性进行科学论证。2.适用范围适用于房地产新项目拓展论证管理工作,以及为之展开的相应研究工作。3.术语和定义3.1.新项目论证:包含“论”和“证”两个过程,即对影响新项目的各个因素进行充分讨论和预测,最后针对预测的综合效果进行可行性求证。3.2.房地产土地储备:为保证房地产公司未来项目开发的土地需求,而预先进行的以控制土地开发权为目的购入土地的行为。3.3.可行性研究:就是对拟购入的土地进行房地产项目技术经济上的论证分析,并在此基础上对项目的经济效果进行预测,为投资决策提供依据。4.职责4.1.秘书处:4.1.1负责组织编制公司战略规划。4.2.项目发展部4.2.14.2.24.2.3负责进行基础研究,根据公司战略规划编制《三年土地储备计划》。信息收集、甄别阶段:以基础研究为指引进行土地信息收集,并给予筛选。发展项目确定阶段:负责根据项目初步谈判的结果,确定项目的运作方式,并通过初步市场资料判断确定项目的定位,结合项目经济初步测算,形成项目建议书,提交公司管理层审议。4.2.4可行性研究阶段:负责根据项目的特点制定可行性研究计划,进行项目背景调研,组织各相关部门展开相应流程工作,最终形成项目可行性报告。4.2.54.2.6跟踪。决策、评审阶段:负责将可行性报告交由公司内部评审。负责按照公司通过的项目合作条件,取得项目开发权利,并负责合作条件的实施和4.2.74.3负责办理政府立项手续。风险控制部:4.3.1发展项目确定阶段:对拟发展项目背景资料提供法律意见。4信和集团管理流程与管理标准编号:XINHE—0001版号:XH/01—01页码:第5页共46页4.44.4.14.4.2营销部/代理公司:在发展项目确定阶段介入,负责项目所在区域的初步市场调查及建议。在项目可行性研究阶段介入,负责项目所在区域的市场调研,并根据市场调研结果提出初步产品定位建议。4.4.34.54.5.1在项目可行性研究阶段介入,营销部根据初...

1、当您付费下载文档后,您只拥有了使用权限,并不意味着购买了版权,文档只能用于自身使用,不得用于其他商业用途(如 [转卖]进行直接盈利或[编辑后售卖]进行间接盈利)。
2、本站所有内容均由合作方或网友上传,本站不对文档的完整性、权威性及其观点立场正确性做任何保证或承诺!文档内容仅供研究参考,付费前请自行鉴别。
3、如文档内容存在违规,或者侵犯商业秘密、侵犯著作权等,请点击“违规举报”。

碎片内容

(项目拓展管理流程)某地产集团公司企业管理流程

确认删除?
VIP
微信客服
  • 扫码咨询
会员Q群
  • 会员专属群点击这里加入QQ群
客服邮箱
回到顶部