电脑桌面
添加小米粒文库到电脑桌面
安装后可以在桌面快捷访问

合肥市电厂东路道排工程建设监理细则VIP免费

合肥市电厂东路道排工程建设监理细则_第1页
1/11
合肥市电厂东路道排工程建设监理细则_第2页
2/11
合肥市电厂东路道排工程建设监理细则_第3页
3/11
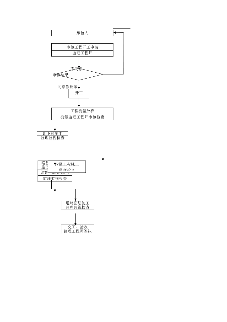
合肥电厂东路道排工程〔皖荣事达大道~北站路〕建立监理细那么合肥建苑工程建立监理二○○六年九月二十一、编制根据监理方针:严格监理、热情效劳理形式:化、制度化、化、信息化1、?政道路工程质量检验评定?〔CJJ1—90〕2、?政排水渠工程质量检验评定?〔CJJ3—90〕3、?给排水道工程施工及验收?〔GB50268—97〕4、?城道路路基工程施工及验收?〔GJJ44—91〕5、?土工试验?〔GBJ123—88〕6、?粉煤灰石灰类道路基层施工及验收规程?〔CJJ4—97〕7、建立工程监理〔GB50319—2000〕8、建立工程归档整理〔GB/T50328—2001〕9、有关法规、和监理合同及施工合同等。二、道路工程部位的划分表1名称部位名称分项名称道路工程路基土路床基层水泥稳定碎石基层、石灰土基层面层砼面层附属构筑物人行道板路侧石路缘石雨水工程雨水各井段沟槽平基座安接口检查井回填土雨水蓖污水工程污水各井段沟槽砂石垫层砂包检查井回填土三、工程质量监理工作流程填写工程开工申请按要求需填报内容·施工组织设计方案施工工序质量质保体系·工人技术人员数量·主要机具设备品种数量·施工场地准备情况·材料到场情况材料试验·分包人的资质证书承包人不同意审核结果同意作批示工程测量放样测量监理工程师审核检查道路构造层施工监理监视检查地下线施工监理监视检查路基工程施工监理监视检查道路面层施工监理监视检查交工、验收监理工程师签认审核工程开工申请监理工程师开工附属工程施工监理检查排水渠工程质量监理工作流程排水沟渠施工工艺流程填写各项质量验收报验单专业监理工程师排水渠单项工程完成填写中间交工证书承包人现场抽样检查专业监理工程师签证中间交工证书监理工程师签证中间交工证书监理工程师开工准备测量放样开挖沟槽边坡控制护面施工排水渠申请单承包人施工组织设计、施工方案、施工工艺;工人、技术人员数量;机械种类、数量材料进场及试验、分包资质证书监理工程师审核不同意开工填写各工序质量验收报验单承包人现场检查实验室检验现场监理工程师实验建立工程师同意监理工程师审批返工不合格监理工程师审批返工四、工程质量监理1、施工质量技术资料;〔1〕材料试验各项预制件质量资料合格证明;①水泥、钢材、砂、石、砖、石灰、石灰土、二灰碎石等原材料试验证明;②计量设备校核资料;③各种预制件合格证书及试验资料。〔2〕主体构造技术质量试验资料;①道路各层实度试验;②污水道闭水试验;③道胸腔回填土压实度;④混凝土强度。〔3〕隐蔽工程验收单;①雨水道、污水道回填前进展隐蔽工程验收;②灰土回填前进展隐蔽工程验收;③二灰碎石摊铺前进展隐蔽工程验收;④混凝土面层浇筑前进展隐蔽工程验收。〔4〕工程质量评定单分项、分部、工程质量评定资料。〔5〕施工组织设计、技术交底有质量目的、措施、落实、环保、文明施工平安及专项方案设计、审批完备设计交底施工交底齐备。配比单、施工记录。〔6〕测量复核记录控制点、基准线、水准点复核记录。〔7〕洽商记录开工图洽商、纪要、变更齐全、有编、手续完备。开工图明晰完好与实际相符。2、道路工程质量〔1〕路基分部工程①路床分项工程根本要求:路床不得有翻浆、弹簧、起皮、波浪、积水等现象。用12t~15t压路机碾压后轮迹深度不得大于5mm。实测工程:路床允许偏向见表2路床允许偏向表2序工程允许偏向检查频率检验范围点数1压实度见设计总说明1000㎡3用环法2中线高程±20mm20m1用水准仪3平整度20mm203用3直尺4宽度±20mm401用尺量5横坡±20mm且不大于±0.3206用水准仪〔2〕基层分部工程①石灰土基层分项工程根本要求:灰土中粒径大于20mm的土块不得超过10但的土块不得大于50mm。灰土应拌和均匀色泽调和石灰中严禁含有未消解颗粒。用12t以上压路机碾压后轮迹深度不得大于5mm并不得有浮土、脱皮、松散现象。实测工程:石灰土基层允许偏向见表3。石灰土基层允许偏向表3序工程压实度〔〕及允许偏向〔mm〕检查频率检验范围点数1压实度见设计总说明1000㎡1用环法测定2厚度+20-101000㎡1用尺量3平整度1020m1用3m直尺取值4宽度不小于设计规定40m1用尺量5中线高程±2020m1用水准仪具测量6横坡±20且不大于±0.320路宽m>156用水准仪具测量②...

1、当您付费下载文档后,您只拥有了使用权限,并不意味着购买了版权,文档只能用于自身使用,不得用于其他商业用途(如 [转卖]进行直接盈利或[编辑后售卖]进行间接盈利)。
2、本站所有内容均由合作方或网友上传,本站不对文档的完整性、权威性及其观点立场正确性做任何保证或承诺!文档内容仅供研究参考,付费前请自行鉴别。
3、如文档内容存在违规,或者侵犯商业秘密、侵犯著作权等,请点击“违规举报”。

碎片内容

合肥市电厂东路道排工程建设监理细则

您可能关注的文档

确认删除?
VIP
微信客服
  • 扫码咨询
会员Q群
  • 会员专属群点击这里加入QQ群
客服邮箱
回到顶部