电脑桌面
添加小米粒文库到电脑桌面
安装后可以在桌面快捷访问

电气竖井内电缆桥架工程VIP免费

电气竖井内电缆桥架工程_第1页
1/6
电气竖井内电缆桥架工程_第2页
2/6
电气竖井内电缆桥架工程_第3页
3/6
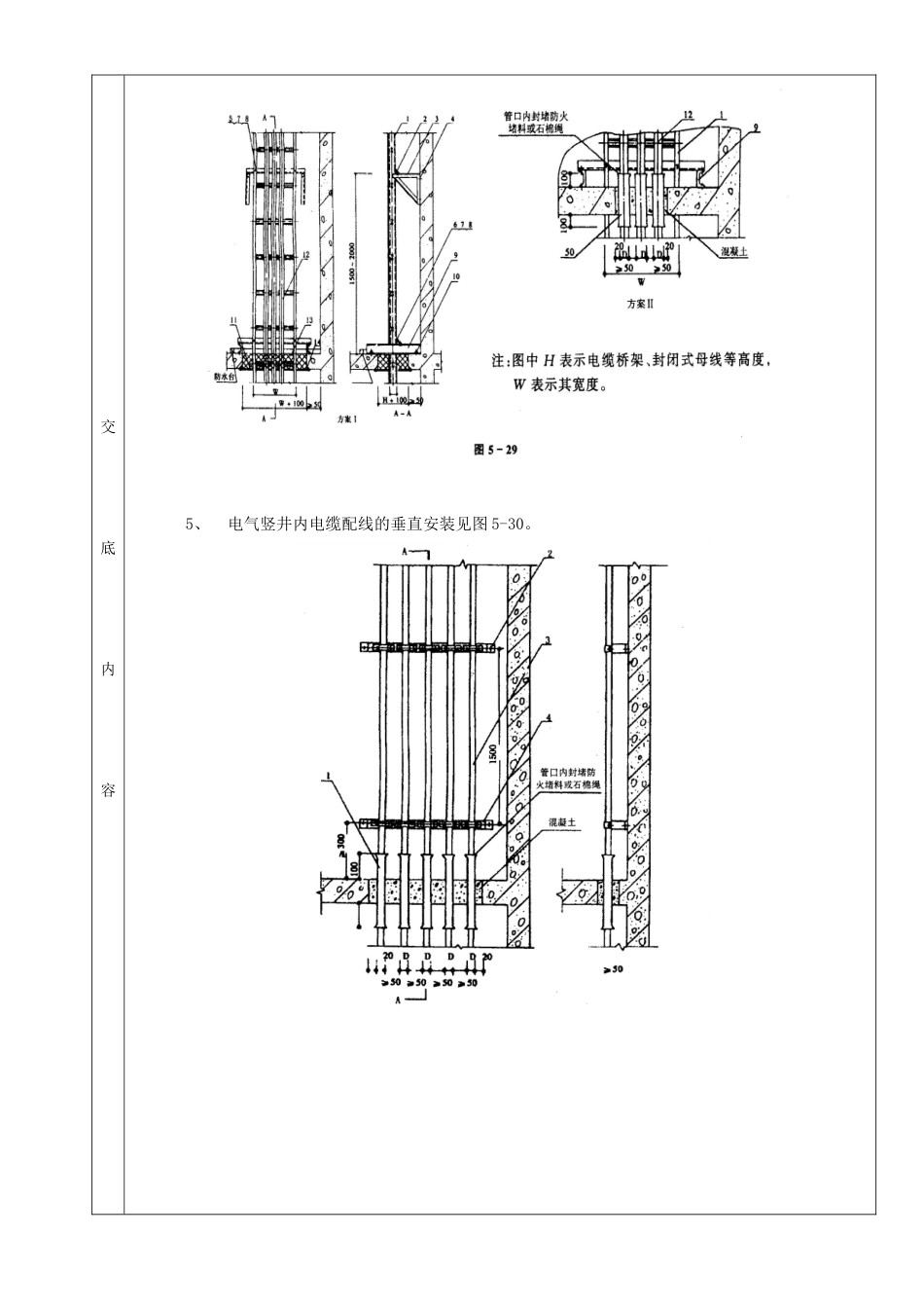
电气竖井内电缆桥架工程分项工程质量技术交底卡GD2301003施工工程名称分部工程交底部位日年月日交底内容一、施工准备(一)作业条件1、土建墙体构造已弹出施工程度线,墙面抹灰及面层巳完工。2、电缆桥架及穿楼板的预留洞日已处理好,安装防火隔板的埋件巳整理好。3、安装电缆桥架所需要的支架等附件巳加工好。4、竖井内电气预埋路巳整理好。(二)材料要求1、电气竖井内所用的电缆桥架,规格型要符合设计要求,采用镀锌制品,镀锌钢板的厚度在桥架宽度小于400mm时,厚度不小于1.5mm;在400~800mm之间时,厚度不小于2mm;大于800mm时,厚度不小于2.5mm。2、电缆桥架应平直,无明显扭曲,支架应焊接结实,无显著变形,下料误差应在5mm范围内,切口应无卷边毛刺。3、防火堵料(防火枕)、防火涂料应选用经鉴定的定型。4、竖井内的配电箱应有出厂合格证、消费答应证、“CCC〞认证标志和认证证书复印件及试验记录。5、电线、电缆及附件应选用符合现行技术的,并应有出厂合格证、“CCC〞认证标志和认证证书复印件。电线、电缆还应有消费答应证。6、电气竖井中使用的辅助材料:钻头、电焊条、氧气、乙炔气、调合漆、焊锡、焊剂、橡胶绝缘带、塑料绝缘带、黑胶布等。7、金属膨胀螺栓:根据允许拉力和剪力及设备的安装孔径确定。8、接线端子:根据导线截面及导线根数选用相应规格的接线端子。9、镀锌材料:钢板、圆钢、扁钢、角钢、螺栓、螺母、螺丝、垫圈、弹簧垫圈等金属材料均应采用镀锌制品。(三)主要机具1、活扳手、老虎钳、砂轮机、钢锯、锯条、电焊机、套丝机、手动煨器、液压煨器、扁锉、圆锉、半圆锉、压力案子、电烙铁、电炉子、锡锅、喷灯、锡勺等。2、兆欧表,高凳等。二、质疆要求质量要求符合?建筑电气工程施工质量验收?(GB50303-2002)的规定。项序项目允许偏向或允许值主控工程1金属电缆桥架、支架和引入、引出的金属导的接地或接零第12.1.1条2电缆敷设检查第12.1.2条一般工程1电缆桥架检查第12.2.1条2桥架内电缆敷设和固定第12.2.2条3电缆的首端、末端和分支处的标志牌第12.2.3条交底内容三、工艺流程确定电缆桥架位置固定支架桥架安装配电箱固定四、操作工艺(一)确定电缆桥架位置1、电缆桥架应敷设在平安、枯燥、易操作的电气竖井内。2、按照图纸设计的位置计算空间尺寸是否满足操作间隔的要求,特别是竖井内桥架、配电箱数量较多,尺寸较大、路较多时,经常出现排列困难,因此必须仔细核对尺寸,必要时与土建配合,进展相应的变更。3、检查竖井内楼板上预留的洞口位置是否适宜,不适宜应及时修整、剔凿,使上下楼层所对应的洞口通直不错位,注意不要影响构造。(二)固定支架1、固定桥架的支架采用50×50×5的角钢,高度为距地面1500~2000mm,有两种固定方式,一种是用膨胀螺栓固定,一种是采用焊接。2、桥架下部固定采用10槽钢,槽钢距墙边不小于50mm,座在楼板的预留洞口,与预埋在洞囗的埋件焊接固定或采用膨胀螺栓与楼板固定。在槽钢上固定两根50×50×5的角钢,用来直接与桥架连接固定见图5-28。3、在楼板的下面有预埋件来固定防火隔板,上托防火枕。4、电气竖井内固定桥架的支架和槽钢的固定见图5-29。电缆支架全长均应有良好的接地,即将支架与墙上预埋的接地埋件焊成一体。交底内容5、电气竖井内电缆配线的垂直安装见图5-30。交底内容(三)桥架安装1、桥架与支架之间固定采用螺栓。2、桥架与钢之间连接采用专用锁母固定,并有跨接地线。3、当直线段钢制电缆桥架超过30m,应有伸缩缝,其连接采用伸缩连接板。(四)电缆敷设1、在桥架就位后,即可敷设线缆。按照设计要求.将需要敷设在该桥架中的电缆按顺序摆放,排列应整齐.尽量防止穿插。敷设时要按适当的问距加以固定,并且及时装设标志牌。电缆终端头,竖井的两端均应装设标志牌。标志牌上应注明线路编,无编时,写明电缆型、规格及起讫地点:字迹应明晰,不易脱落,规格要统一,能防腐,挂装应结实。电缆在终端头和接头处要留出备用长度。2、电缆进入竖井、盘柜以及穿入子时,出入口应封闭,口应封。明敷在竖井内带有麻护层的电缆,应剥除麻护层,并对其铠装加以防腐。3、电缆穿过竖井后,用防火枕进展实封堵。利用构造施工间在楼板底面预埋的埋件,来固定防火隔...

1、当您付费下载文档后,您只拥有了使用权限,并不意味着购买了版权,文档只能用于自身使用,不得用于其他商业用途(如 [转卖]进行直接盈利或[编辑后售卖]进行间接盈利)。
2、本站所有内容均由合作方或网友上传,本站不对文档的完整性、权威性及其观点立场正确性做任何保证或承诺!文档内容仅供研究参考,付费前请自行鉴别。
3、如文档内容存在违规,或者侵犯商业秘密、侵犯著作权等,请点击“违规举报”。

碎片内容

电气竖井内电缆桥架工程

您可能关注的文档

确认删除?
VIP
微信客服
  • 扫码咨询
会员Q群
  • 会员专属群点击这里加入QQ群
客服邮箱
回到顶部