电脑桌面
添加小米粒文库到电脑桌面
安装后可以在桌面快捷访问

带遥控的停车加热装置和空调电气线路图(1)VIP免费

带遥控的停车加热装置和空调电气线路图(1)_第1页
1/14
带遥控的停车加热装置和空调电气线路图(1)_第2页
2/14
带遥控的停车加热装置和空调电气线路图(1)_第3页
3/14
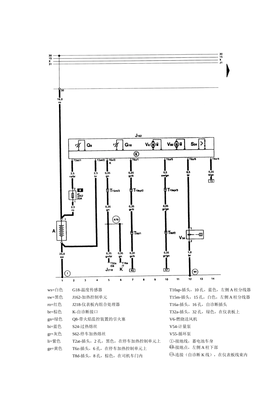
带遥控的停车加热装置和空调电气线路图(从2000年车型起)带遥控的停车加热装置和空调电气线路图如图2-2-112~图2-2-117所示。熔丝支架:(a)仪表板后中央支架上的驾驶员一侧继电器盘:(b)压力舱电器盒内3孔继电器盘(c)熔丝颜色:30A-绿色25A-白色20A-黄色15A-蓝色10A-红色7.5A-棕色5A-米色熔丝支架上的熔丝从23号位置开始,在电路图上标有号码223,依次类推。继电器布局:停车加热系统继电器(J8)熔丝布局:停车加热系统熔丝(s62)图2-2-112继电器ws=白色sw=黑色ro=红色br=棕色gn=绿色bi=蓝色gr=灰色li=紫色ge=黄色G18-温度传感器J162-加热控制单元J218-仪表板内组合处理器K-自诊断接口Q8-带火焰监控装置的引火塞S24-过热熔丝S62-停车加热熔丝T2at-插头,2孔,黑色,在停车加热控制单元上T6z-插头,6孔,在停车加热控制单元上T8d-插头,8孔,棕色,在司机车门内T10ap-插头,10孔,蓝色,左侧A柱分线器T15m-插头,15孔,白色,左侧A柱分线器T16a-插头,16孔,自诊断插头T32a-插头,32孔,绿色,在仪表板上V6-燃烧送风机V54-计量泵V55-循环泵①-接地线,蓄电池车身-接地点,左侧A柱下部-连接(自诊断K线),在仪表板线束内图2-2-113停车加热系统控制单元、停车加热熔丝、计量器ws=白色sw=黑色ro=红色br=棕色gn=绿色bi=蓝色gr=灰色li=紫色ge=黄色E87-空调控制和显示单元J126-新鲜空气鼓风机控制单元J347-超声波传感器控制单元T3bv-插头,3孔,橙色,右侧A柱分线器T15m-插头,15孔,白色,左侧A柱分线器V2-新鲜空气鼓风机-接地连接2,在仪表板线束内-接地连接3,在仪表板线束内-连接,在空调线束内-连接2,在空调线束内*带防盗警报装置的车**两种都可能图2-2-114空调控制和显示单元、新鲜空气鼓风机、新鲜空气鼓风机控制单元ws=白色sw=黑色ro=红色br=棕色gn=绿色bi=蓝色gr=灰色li=紫色ge=黄色J8-停车加热继电器S5-熔丝支架上熔丝S225-熔丝支架上熔丝25S224-熔丝支架上熔丝44T8d-插头,8孔,棕色,在司机车门内T10ap-插头,10孔,蓝色,左侧A柱分线器T15m-插头,15孔,白色,左侧A柱分线器-接地连接2,在仪表板线束内-接地连接3,在仪表板线束内-正极连接(15),在仪表板线束内-连接(15a),在仪表板线束内-正极连接(30),在仪表板线束内-连接(30a,S244),在仪表板线束内-连接(75al),在空调线束内*两种都可能图2-2-115停车加热继电器ws=白色sw=黑色ro=红色br=棕色gn=绿色bi=蓝色gr=灰色li=紫色E16-加热/加热功率开关E111-定时器E255-定时器开关J218-仪表板内组合处理器K11-加热指示灯T8d-插头,8孔,棕色,在驾驶员车门内T10ap-插头,10孔,蓝色,左侧A柱分线器T32-插头,32孔,蓝色,在仪表板上-接地点,左侧A柱上部-正极连接(30a),在仪表板线束内-正极连接(58d),在仪表板线束内(显示照明)-连接(58s),在仪表板线束内(开关照明)-正极连接2(30),在仪表板线束内*带遥控的停车加热装置ge=黄色图2-2-116定时器、加热指示灯ws=白色sw=黑色ro=红色br=棕色gn=绿色bi=蓝色gr=灰色li=紫色R-收录机R36-电话信号发送和接收器R46-无线电、收录机、电话分频器R51-收录机/电话/停车加热装置天线R64-停车加热装置无线电接收器T8d-插头,8孔,棕色,在司机车门内T10ap-插头,10孔,蓝色,左侧A柱分线器*带无线电遥控的停车加热装置**不带后隔音玻璃和不带电话/移动电话的车***带后隔音玻璃和带电话/移动电话的车ge=黄色图2-2-117停车加热装置无线电接收器、收录机天线、电话、停车加热装置十四、后风窗电动卷帘线路图(从2000年车型起)后风窗电动卷帘电气图如图2-2-118和图2-2-119所示。熔丝支架:(a)微型中央电器盒:(b)熔丝颜色:30A-绿色25A-白色20A-黄色15A-蓝色10A-红色7.5A-棕色5A-米色熔丝支架上的熔丝从23号位置开始,在电路图上标有号码223,依次类推。熔丝布局后风窗电动卷帘熔丝(S100)图2-2-118继电器ws=白色sw=黑色ro=红色br=棕色gn=绿色bi=蓝色gr=灰色li=紫色D-点火开关E149-后风窗卷帘开关J218-仪表板内组合处理器J262-后风窗卷帘控制单元S5-熔丝支架上熔丝S100-后风窗卷帘熔丝T2c-插头,2孔,棕色,左侧A柱分线器T32-插头,32孔,蓝色,在仪表板上-接地点,左侧A...

1、当您付费下载文档后,您只拥有了使用权限,并不意味着购买了版权,文档只能用于自身使用,不得用于其他商业用途(如 [转卖]进行直接盈利或[编辑后售卖]进行间接盈利)。
2、本站所有内容均由合作方或网友上传,本站不对文档的完整性、权威性及其观点立场正确性做任何保证或承诺!文档内容仅供研究参考,付费前请自行鉴别。
3、如文档内容存在违规,或者侵犯商业秘密、侵犯著作权等,请点击“违规举报”。

碎片内容

带遥控的停车加热装置和空调电气线路图(1)

海纳百川+ 关注
实名认证
内容提供者

热爱教学事业,对互联网知识分享很感兴趣

确认删除?
VIP
微信客服
  • 扫码咨询
会员Q群
  • 会员专属群点击这里加入QQ群
客服邮箱
回到顶部