电脑桌面
添加小米粒文库到电脑桌面
安装后可以在桌面快捷访问

电力系统自动化及继电保护综合实验VIP免费

电力系统自动化及继电保护综合实验_第1页
1/96
电力系统自动化及继电保护综合实验_第2页
2/96
电力系统自动化及继电保护综合实验_第3页
3/96
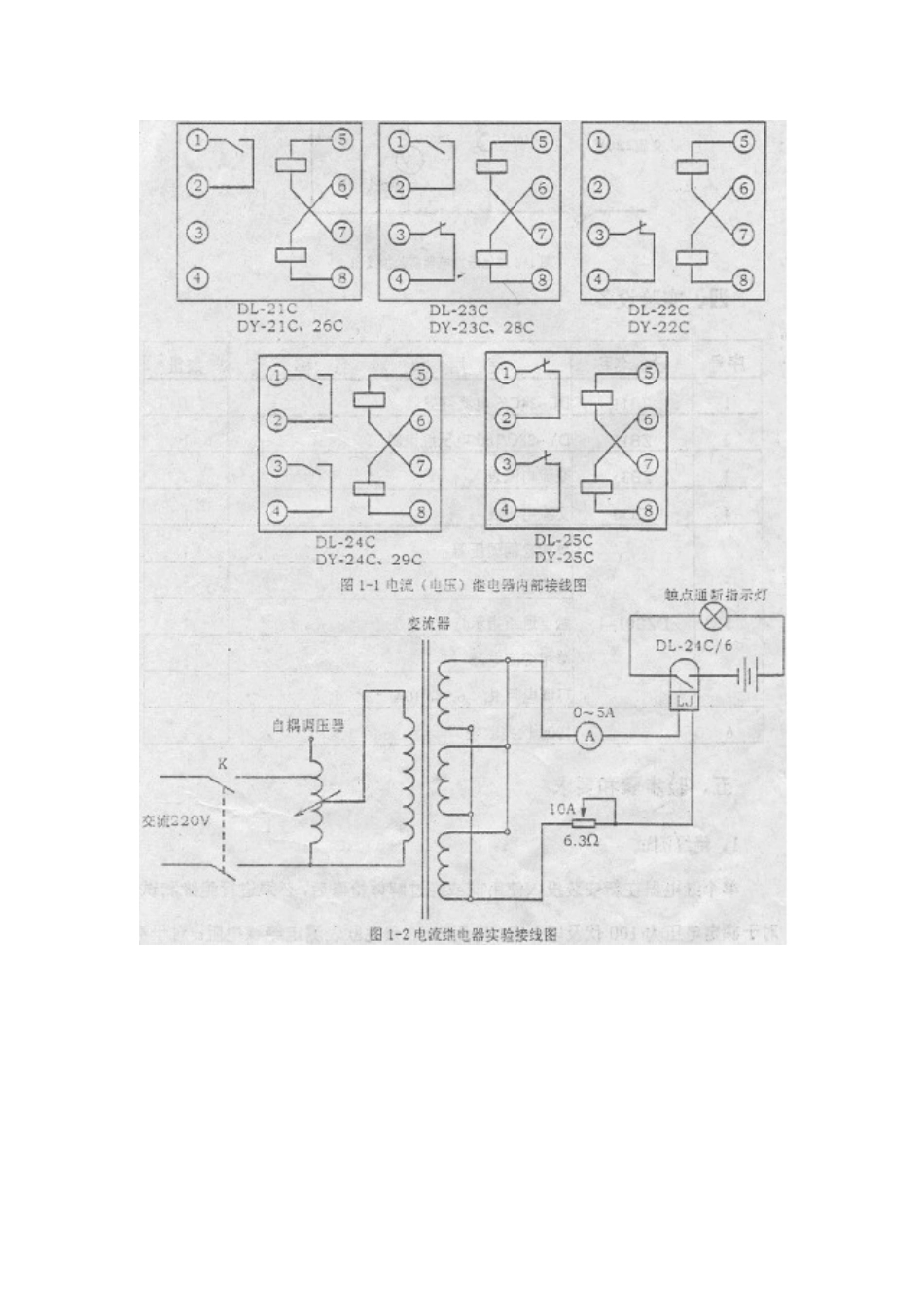
一、电磁型电流继电器和电压继电器实验一、实验目的熟悉DL型电流继电器和DY型电压继电器的实际结构、工作原理、基本特性:掌握动作电流值、动作电压值及其相关参数的整定方法。二、预习与思考1、电流继电器的返回系数为什么恒小于1?2、动作电流(压)、返回电流(压)和返回系数的定义是什么?3、实验结果如返回系数不符合要求,你能正确地进行调整吗?4、返回系数在设计继电保护装置中有何重要用途?三、原理说明DL-20c系列电流继电器用于反映发电机、变压器及输电线路短路和过负荷的继电保护装置中。DY-20c系列电压继电器用于反映发电机、变压器及输电线路的电压升高(过电压保护)或电压降低(低电压起动)的继电保护装置中。DL-20c、DY-20c系列继电器的内部接线图见图l-l。上述继电器是瞬时动作的电磁式继电器,当电磁铁线圈中通过的电流达到或超过整定值时,衔铁克服反作用力矩而动作,且保持在动作状态。过电流(压)继电器:当电流(压)升高至整定值(或大于整定值)时,继电器立即动作,其常开触点闭合,常闭触点断开。低电压继电器:当电压降低至整定电压时,继电器立即动作,常开触点断开,常闭触点闭合。继电器的铭牌刻度值是按电流继电器两线圈串联,电压继电器两线圈并联时标注的指示值等于整定值:若上述二继电器两线圈分别作并联和串联时,则整定值为指示值的2倍。转动刻度盘上指针,以改变游丝的作用力矩,从而改变继电器动作值。图1-3过电压继电器实验接线图四、实验设备序号设备名称使用仪器名称数量lZBllDL-24C/6电流继电器l2ZBl5DY-28C/160电压继电器13ZB35交流电流表14ZB36交流电压表l5DZB0l-l单相自耦调压器l交流器1触点通断指示灯1单相交流电源l可调电阻Rl6.3Ω/10Al61000伏兆欧表l五、验步骤和要求l、绝缘测试单个继电器在新安装投入使用前或经过解体检修后,必须进行绝缘测试,对于额定电压为100伏及以上者,应用1000伏兆欧表测定绝缘电阻:对于额定电压为100伏以下者,则应用500伏兆欧表测定绝缘电阻。测定绝缘电阻时,应根据继电器的具体接线情况,注意把不能承受高压的元件(如半导体元件、电容器等)从回路中断开或将其短路。本实验是用1000伏兆欧表测定导电回路对铁芯的绝缘电阻及不连接的两回路间的绝缘电阻,要求如下:(1)全部端子对铁芯或底座的绝缘电阻应不小于50兆欧。(2)各线圈对触点及各触点间的绝缘电阻应不小于50兆欧。(3)各线圈间绝缘电阻应不小于50兆欧。将测得的数据记入表1-1,并做出绝缘测试结论。表l—l绝缘电阻测定记录表编号测试项目电流继电器电压继电器电阻值(兆欧)结论电阻值(兆欧)结论1铁心--线圈⑤2铁心--线圈⑥3铁心--接点①4铁心--接点③5线圈⑤--线圈⑥6线圈⑤--接点①注:上表①⑨⑤⑥为继电器引出的接线端号码,铁芯指继电器内部的导磁体。2、整定点的动作值、返回值及返回系数测试实验接线图l-2、图l-3、(图l-4)分别为电流继电器及过(低)电压继电器的实验接线,可根据下述实验要求分别进行。实验参数电流值(或电压值)可用单相自耦调压器、变流器、变阻器等设备进行调节。实验中每位学生要注意培养自己的实践操作能力,调节中要注意使参数平滑变化。(1)电流继电器的动作电流和返回电流测试a、选择ZBll继电器组件中的DL-24C/6型电流继电器,确定动作值并进行初步整定。本实验整定值为2A及4A的两种工作状态见表l-2。b、根据整定值要求对继电器线圈确定接线方式(串联或并联);查表l-5。c、按图1-4接线,检查无误后,调节自耦调压器及变阻器,增大输出电流,使继电器动作。读取能使继电器动作的最小电流值,即使常开触点由断开变成闭合的最小电流,记入表l-2:动作电流用Idj表示。继电器动作后,反向调节自耦调压器及变阻器降低输出电流,使触点开始返回至原来位置时的最大电流称为返回电流,用Ifj表示,读取此值并记入表1-2,并计算返回系数;继电器的返回系数是返回电流与动作电流的比值,用Kf表示。IfjKf=-----Idj过电流继电器的返回系数在O.85~0.9之间。当小于O.85或大于0.9时,应进行调整,调整方法详见本节第(4)点。表1-2电流继电器实验结果记录表整定电流I(安)2A继电器两线圈的接线方式选择为:4A继电器两线圈的接线方式选择为:测试...

1、当您付费下载文档后,您只拥有了使用权限,并不意味着购买了版权,文档只能用于自身使用,不得用于其他商业用途(如 [转卖]进行直接盈利或[编辑后售卖]进行间接盈利)。
2、本站所有内容均由合作方或网友上传,本站不对文档的完整性、权威性及其观点立场正确性做任何保证或承诺!文档内容仅供研究参考,付费前请自行鉴别。
3、如文档内容存在违规,或者侵犯商业秘密、侵犯著作权等,请点击“违规举报”。

碎片内容

电力系统自动化及继电保护综合实验

确认删除?
VIP
微信客服
  • 扫码咨询
会员Q群
  • 会员专属群点击这里加入QQ群
客服邮箱
回到顶部