电脑桌面
添加小米粒文库到电脑桌面
安装后可以在桌面快捷访问

装修50平小样稿VIP免费

装修50平小样稿_第1页
1/25
装修50平小样稿_第2页
2/25
装修50平小样稿_第3页
3/25
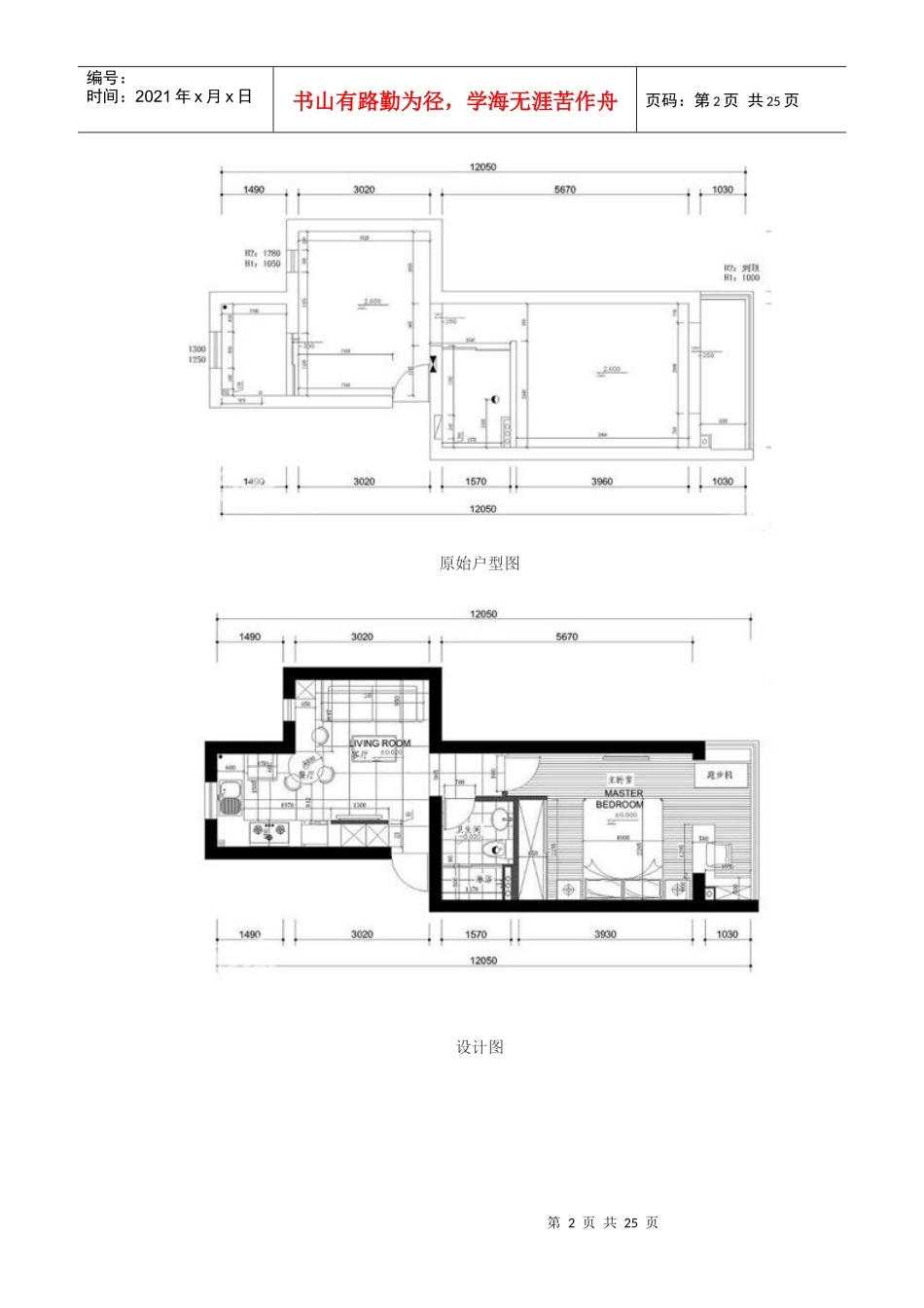
第1页共25页编号:时间:2021年x月x日书山有路勤为径,学海无涯苦作舟页码:第1页共25页地址:http://d.51hejia.com/zhuangxiu/20110511/660630-all导语:50平的老房变成时尚新房,无论是风格还是格局都焕然一新;由于空间小,公共区域采用了开放式的设计,让客厅与餐厅厨房这三者感觉更为开敞;打通了阳台,放大卧室的空间,在卧室你甚至可以有这是一个大房子的错觉;整体采用了现代简约的装修风格,时尚大方。下面一起来看看这套上海MM10万打造的50平简约风格时尚婚房吧。房屋装修情况:【装修户主】:grayspace【装修面积】:50平米【装修风格】:简约风格装修【装修户型】:一室一厅【装修关键词】:简约风格装修一室一厅装修50平米装修小户型装修业主自述:这是我们的家,面积虽小花的心思却一点也不少了,前前后后折腾了小半年,终于入住;简约风格的装修,自己觉得简单点也很美好。下面上图。欢迎参观第2页共25页第1页共25页编号:时间:2021年x月x日书山有路勤为径,学海无涯苦作舟页码:第2页共25页原始户型图设计图第3页共25页第2页共25页编号:时间:2021年x月x日书山有路勤为径,学海无涯苦作舟页码:第3页共25页房子小,进门就是客厅,右边是厨房客厅实在小,只能开放式厨房第4页共25页第3页共25页编号:时间:2021年x月x日书山有路勤为径,学海无涯苦作舟页码:第4页共25页橱柜选了白色的,看起来很干净微波炉、电饭煲排排放第5页共25页第4页共25页编号:时间:2021年x月x日书山有路勤为径,学海无涯苦作舟页码:第5页共25页从厨房望向客厅,走廊的尽头是卧室客厅和餐桌,或者说吧台更合适,没有在买餐桌,所以吧台也算餐桌了。第6页共25页第5页共25页编号:时间:2021年x月x日书山有路勤为径,学海无涯苦作舟页码:第6页共25页大爱的沙发,化解一天的疲惫中国风的茶壶和茶杯第7页共25页第6页共25页编号:时间:2021年x月x日书山有路勤为径,学海无涯苦作舟页码:第7页共25页从吧台看客厅镜面的使用让客厅看起来比较开敞,嘿嘿,照起来也很爽。第8页共25页第7页共25页编号:时间:2021年x月x日书山有路勤为径,学海无涯苦作舟页码:第8页共25页进门处的另一边是厕所和卧室先看厕所,整体灰色调的感觉比较时尚第9页共25页第8页共25页编号:时间:2021年x月x日书山有路勤为径,学海无涯苦作舟页码:第9页共25页门贴厕所空间小,没有买浴缸,用的淋浴房第10页共25页第9页共25页编号:时间:2021年x月x日书山有路勤为径,学海无涯苦作舟页码:第10页共25页台盆去卧室看看吧第11页共25页第10页共25页编号:时间:2021年x月x日书山有路勤为径,学海无涯苦作舟页码:第11页共25页阳台打通,变成书桌,这样感觉卧室也大很多。换个角度,两个电脑椅互不干涉。第12页共25页第11页共25页编号:时间:2021年x月x日书山有路勤为径,学海无涯苦作舟页码:第12页共25页角落还放了单人沙发,非常舒服,做下就不想起来了。大号的床和衣柜第13页共25页第12页共25页编号:时间:2021年x月x日书山有路勤为径,学海无涯苦作舟页码:第13页共25页厕所:http://home.house365.com/news/news_130663_8.html厕所瓷砖颜色:http://home.house365.com/news/news_130659_4.html墙色:http://supports.jiaju.sina.com.cn/zhuangxiu/xiu-tu-151143.html#photo客厅墙,卧室面积;http://supports.jiaju.sina.com.cn/zhuangxiu/xiu-tu-150529.html#photo驼色:http://supports.jiaju.sina.com.cn/zhuangxiu/gz/xiu-tu-151527.html#photohttp://taobao.pchouse.com.cn/dptb/1111/149116_3.htmlhttp://home.taobao.com/detail/2011/11/21/554925/6.php#DetailTop心形相片墙第14页共25页第13页共25页编号:时间:2021年x月x日书山有路勤为径,学海无涯苦作舟页码:第14页共25页第15页共25页第14页共25页编号:时间:2021年x月x日书山有路勤为径,学海无涯苦作舟页码:第15页共25页第16页共25页第15页共25页编号:时间:2021年x月x日书山有路勤为径,学海无涯苦作舟页码:第16页共25页第17页共25页第16页共25页编号:时间:2021年x月x日书山有路勤为径,学海无涯苦作舟页码:第17页共25页第18页共25页第17...

1、当您付费下载文档后,您只拥有了使用权限,并不意味着购买了版权,文档只能用于自身使用,不得用于其他商业用途(如 [转卖]进行直接盈利或[编辑后售卖]进行间接盈利)。
2、本站所有内容均由合作方或网友上传,本站不对文档的完整性、权威性及其观点立场正确性做任何保证或承诺!文档内容仅供研究参考,付费前请自行鉴别。
3、如文档内容存在违规,或者侵犯商业秘密、侵犯著作权等,请点击“违规举报”。

碎片内容

装修50平小样稿

您可能关注的文档

确认删除?
VIP
微信客服
  • 扫码咨询
会员Q群
  • 会员专属群点击这里加入QQ群
客服邮箱
回到顶部