电脑桌面
添加小米粒文库到电脑桌面
安装后可以在桌面快捷访问

材料许用应力表AVIP免费

材料许用应力表A_第1页
1/23
材料许用应力表A_第2页
2/23
材料许用应力表A_第3页
3/23
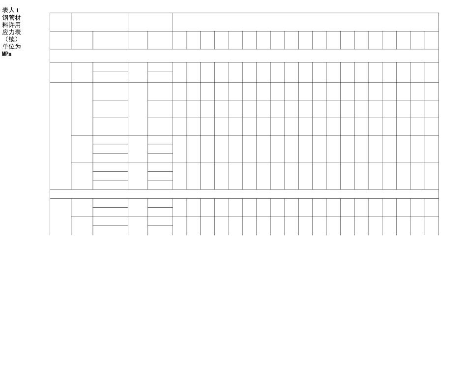
表A.1钢管材料许用应力单位为MPa产品形式及标准号牌号或级别规定的室温拉伸强度MPa金屈温度管壁厚度mmRmR«L或Rg220250260270280290300310320330340350无缝管GB531020Ga410〜55024513712512312011811511311110910610210015MoG450〜600270150116115114113112111no10910810710612CrMoG410〜560205137114112no108106104102101100999815CrMoG440〜64029514714714714614514414314114013813613512Cr2MoG450〜60028015012312312312312312312312312312312312CrlMoVG470〜640255157156155154153152151149148146144143.0Cr9MolVNbNtW75585〜83041516816616516516416416416316316216116110Cr9MolVNbNt>75585〜83041516816616516516416416416316316216116107Crl9Nil0M51520513711311111010910810710610510510410307Crl8NillNbM520205137131130129128126125124123122122121GB308710tW16只〜47氏205112104101989693918987858380t>160004J□195单位为MPa表A.1钢管材料许用应力表(续)金屈温度°C430440450460470480490500510520530540550560570580590600610620630无缝钢管72635547413710210110099999489898988878686867360491251241231221201191129682695919411221201141081039689817467615448423713113012812612512412111899887972655814514314113813513212912612211811511110799.692.283.874.465.057.249.442.014514314113813513212912612211911510910394.085.076.869.261.655.248.842.39796959494939392919190898888837670645954501171161161161151151151151141141131131121121091049991827367615549表人1钢管材料许用应力表(续)单位为MPa表九1钢管材料许用应力表(续)单位为MP・辻3:发中所列林料除本规范中另有规定外.不冈在于给出许用应力的爲度下便用.宜在不超过农2.1中推務的盘哎上限以下使用.a20Gf£150CW上时的许用应力仅可用于2.3.2的场合.bQ235,Q3I5的城圮彎级为A、B级时许用应力应桑以顷城系敌0.9・cQ235、Q3I5的许用应力和使用蟲发I:限根枢M啖级别按农昆2中篠索结构钢和低合金结构钢热轧钢板相冋材料的故(ft取d焊接制管的许用战力未计及坤縫欣址系数和焊接接头強发减弱系故.系数和焊接接头强啖减弱系数应按第3矗取值・表人2钢板材料许用应力单位为MPa产骷形兀及标准号牌号或级别规定的室温拉伸强度MPa金Mi&度r钢板厚度am%ReL或RpO.2202502602702802905003103203303403S03603703803904004104203<06100-52021313311110910S10610!102100939695939190S9S7S6S5SI16<&36100-52023513311110910S10610!102100939695939190S987S685SI3606967W16510-6103131701571515149464314113913713513313213112912S127t«36500-6303251671571515149464314113913713513313213112912S12736•U*0Uv22512310S1061011021009S96949290S9Q3I5・tW16170-63031315715715715715715715715715715715715716

1、当您付费下载文档后,您只拥有了使用权限,并不意味着购买了版权,文档只能用于自身使用,不得用于其他商业用途(如 [转卖]进行直接盈利或[编辑后售卖]进行间接盈利)。
2、本站所有内容均由合作方或网友上传,本站不对文档的完整性、权威性及其观点立场正确性做任何保证或承诺!文档内容仅供研究参考,付费前请自行鉴别。
3、如文档内容存在违规,或者侵犯商业秘密、侵犯著作权等,请点击“违规举报”。

碎片内容

材料许用应力表A

您可能关注的文档

确认删除?
微信客服
  • 扫码咨询
会员Q群
  • 会员专属群点击这里加入QQ群