电脑桌面
添加小米粒文库到电脑桌面
安装后可以在桌面快捷访问

国家电网继电保护柜、屏及端子箱制造规范VIP免费

国家电网继电保护柜、屏及端子箱制造规范_第1页
1/14
国家电网继电保护柜、屏及端子箱制造规范_第2页
2/14
国家电网继电保护柜、屏及端子箱制造规范_第3页
3/14
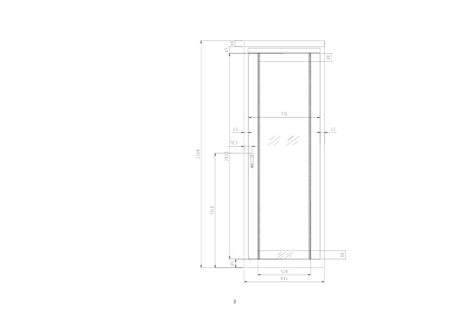
国家电网继电保护柜、屏及端子箱制造规范1.继电保护屏柜加工制造标准1.1.引用技术标准:DL/T720-2000《电力系统继电保护柜、屏通用技术条件》满足国家其它相关规程、规定的要求1.2.适用范围本标准适用于继电保护屏柜加工。为保证工程整体视觉效果,在新建工程中测控、调度自动化等屏柜亦应参照执行。1.3.屏柜参数屏柜尺寸:2260×800×600(高×宽×深)mm,柜净高2200mm,门楣高60mm。屏柜颜色:GSB05-1426-200177#GY09冰灰桔纹。静电喷涂。屏柜结构:门板内嵌式钢结构柜。防护等级:不低于IP30柜体材料:冷轧板折弯焊接结构,板厚1.5mm。1.4.屏柜正面要求屏柜上部为60mm高的不锈钢拉丝门楣,板厚2mm,用三只M4螺丝固定在柜体上。柜体净高2200mm,左右立柱宽40mm,上部横梁高65mm,下部底横梁高为85mm,中间大门尺寸为2045×715mm,玻璃为通长带有导电屏蔽功能的4mm厚无色透明钢化玻璃,尺寸为2045×528mm,玻璃需符合国家GB/T9963-1998钢化玻璃标准。玻璃左右两边有20mm宽的横条形装饰条,门轴在右手侧(以人面对屏柜正面为准),在大门的下部要装有气弹簧缓冲器。大门锁采用MS828型号门锁(钥匙通用),门锁最上边距离屏柜底面高1140mm,大门采用三点式锁紧结构。在玻璃左上角可以印制生产厂家的公司标志,但屏柜正面其他地方不得出现公司名称等标志。在屏柜的内1面板下部有一直径为Φ30mm的调试孔,孔中心距离屏柜底部高度不得超过145mm。大门与柜体用4mm2透明导线可靠连接,以上要求具体尺寸见附图1-1。23附图1-145FBS侧门锁MJ小母线端子前后附图1-21.5.屏柜侧面要求屏柜侧面左右立柱宽40mm,在左右立柱上有六个并柜时用的连接孔,在屏柜的右前立柱和左后立柱连接孔中分别安装六只专用并柜螺母,其余六只孔不装螺母。从屏底面到第一个并柜连接孔的距离为325mm,从第一个并柜连接孔向上1600mm均布两个并柜连接孔,左右并柜连接孔的孔距为576mm。并柜连接孔上都要用专用塑料堵头将其堵上。在屏柜侧面上方有一块用四只螺丝固定的小封板,下面为一块可快速拆卸的侧门,侧门板尺寸为1910×516mm,在门板上方有两只侧门锁。侧门锁不能凸出框架平面,侧门与柜体用4mm2透明导线可靠连接。以上要求具体尺寸见附图1-2。1.6.屏柜后面要求屏柜上部为60mm高的不锈钢拉丝门楣,用三只M4螺丝固定在柜体上。门楣下面是一只安装小型断路器的安装盒,外面装有防尘封板封板上针对每个断路器开好相应的孔,在断路器上方装有标签框。后门为双开门,门锁装于后右门,型号同大门锁。门锁最上边距离屏柜底面高1140mm。在左右后门下部设有通风孔,内侧装有滤网。后门与柜体用4mm2透明导线可靠连接。以上要求具体尺寸见附图1-3。6附图1-371.7.屏柜顶部要求屏柜顶部设有通风孔,通风孔上部装有防尘罩(可拆卸),通风孔内侧装有滤网(可拆卸)。柜顶安装有15组小母线端子,满足安装15根小母线的要求。小母线中心离柜顶距离为52mm。在每排小母线端子内侧各有一排九个穿线孔,穿线孔上装有内径Φ12mm的穿线圈小母线端子安装在柜顶前后居中位置,左右两排小母线端子间距为500mm。相邻小母线的间距为26mm。在柜顶四角设有M10吊环(可拆卸)。顶板与柜体用4mm2透明导线可靠连接。具体顶部尺寸见附图1-4。附图1-41.8.屏柜底部要求8防尘罩金属网屏柜底部应设有截面不小于100mm2的铜排。屏柜上装置的接地端子应用截面不小于4mm2的多股铜线与屏柜底部的接地铜排相连。接地铜排应用截面不小于50mm2的铜缆与屏柜的室内等电位接地网相连,连接方式采用冷压接。屏柜内的铜排预留6孔20个,均匀附图1-5分布在屏柜底部铜排上。屏柜底部设有四个16×60长园形安装孔,左右中心距为660mm,前后中心距为508mm。在屏底后部设有四块可拆卸的底板。具体尺寸见附图1-5。1.9.端子排布置要求1.9.1当端子排的数量小于100档时,最高端子离地面1700mm;1.9.2当端子排的数量大于100档时,以距离地面1300mm为基准上下均匀布置,但最高端子距离地面不超过2000mm,最低端子距离地面不低于350mm。91.9.3端子排与保护屏侧面夹角在20°~25°;1.9.4端子排最外侧与保护屏侧面距离不小于50mm,与保护屏后面距离不小于200mm。具体布置尺寸见附图1-6附...

1、当您付费下载文档后,您只拥有了使用权限,并不意味着购买了版权,文档只能用于自身使用,不得用于其他商业用途(如 [转卖]进行直接盈利或[编辑后售卖]进行间接盈利)。
2、本站所有内容均由合作方或网友上传,本站不对文档的完整性、权威性及其观点立场正确性做任何保证或承诺!文档内容仅供研究参考,付费前请自行鉴别。
3、如文档内容存在违规,或者侵犯商业秘密、侵犯著作权等,请点击“违规举报”。

碎片内容

国家电网继电保护柜、屏及端子箱制造规范

您可能关注的文档

确认删除?
VIP
微信客服
  • 扫码咨询
会员Q群
  • 会员专属群点击这里加入QQ群
客服邮箱
回到顶部