电脑桌面
添加小米粒文库到电脑桌面
安装后可以在桌面快捷访问

土方工程量算量练习题VIP免费

土方工程量算量练习题_第1页
1/11
土方工程量算量练习题_第2页
2/11
土方工程量算量练习题_第3页
3/11
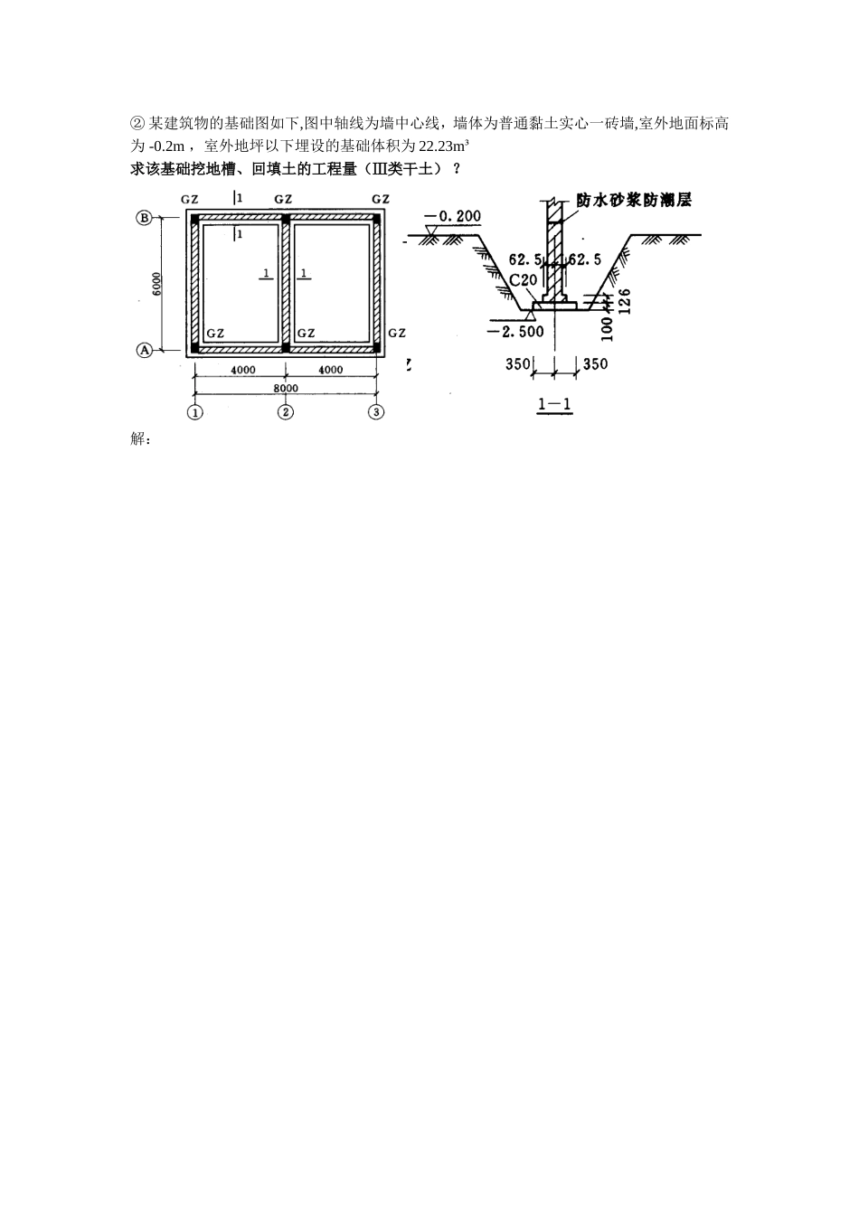
土方工程量算量练习题熟悉有关规定:①人工挖土方指:B>3m或S>20㎡或h>30㎝的土方。②人工挖沟槽指:B≤3m,L>3B的挖土③人工挖基坑指S≤20㎡,L≤3B的挖土④土方、地坑、地槽分干、湿土两类。土质有四种。⑤原土打夯中原土指自然状态下的地表面或开挖出的槽(坑)底部原状土。⑥回填土指将符合要求的土料填充到需要的部分,可分为松、夯填。⑦平整场地指不符合挖土方、基槽、地坑的人工就地挖、填、找平。⑧余土外运、缺土内运①平整场地按建筑物外墙外边线每边各加2m以㎡计算。例:计算下图建筑物平整场地工程量?②人工挖沟槽:V=S*L以m³计算。L—沟槽长度(m),外墙按图示基础中心线长度计算,内墙按图示基础底宽加工作面宽度之间净长度计算。S=B*h(㎡)—沟槽截面积B—沟槽宽度(m)按设计宽度加工作面宽度计算人工挖三类土,深度超过1.5m,放坡系数=0.33C—工作面宽度,砖基础每边:200㎜,混凝土基础每边:300㎜h—挖土高度,自垫层下表面至设计室外地坪标高。③人工挖基坑:按基坑体积计算。长方体V=abh倒圆台=h/3h(R²+r²+rR)倒棱台=h/6[AB+(A+a)(B+b)+ab]④回填土按体积计算。基槽、坑回填土体积=挖土体积-设计室外地坪以下埋设的体积(包括基础垫层、柱、墙基础及柱等)室内回填土体积按主墙间净面积乘填土厚度计算,不扣除附垛及附墙烟囱等体积⑤运土工程量=挖土工程量–回填土工程量。计算结果是+,表示余土外运-,表示缺土内运②某建筑物的基础图如下,图中轴线为墙中心线,墙体为普通黏土实心一砖墙,室外地面标高为-0.2m,室外地坪以下埋设的基础体积为22.23m³求该基础挖地槽、回填土的工程量(Ⅲ类干土)?解:③某建筑物的基础图如下,图中轴线为墙中心线,墙体为普通黏土实心一砖墙,室外地面标高为-0.3m,求该基础人工挖土的工程量(Ⅲ类干土)解:(2)沟槽挖土计算开挖断面上底宽b=a+2c+2kh=开挖断面下底宽B=a+2c=沟槽长度=沟槽挖土V=答:该基础挖基坑土m³;挖沟槽土m³.④某工程坑底面积为矩形,尺寸为32×16㎡,深为2.8m,地下水位距自然地面为2m,土为坚土,试计算人工挖土方的工程量。解:⑤试计算图示建筑物人工场地平整的工程量,墙厚均为240,轴线均坐中。解:套用定额子目1-56人工场地平整工程量:S0+L外外×2+16=基价:(元/100㎡)综合基价:(元)⑥某工程人工挖室外管道沟槽,土为二类土,槽长40m,宽0.9m,平均深度为1.8m,槽断面如图所示,地下水位距地面1.5m,试计算底槽开挖的综合基价。解:⑦已知基础平面图如图所示,土为三类土,计算人工挖土的工程量。(砼垫层施工时需支模板)。⑧人工挖土,底部尺寸为5×4m(矩形),每边还需增加工作面0.3m,地下水位标高为-3.00m,土为普通土,试计算土方工程量。⑨人工挖地槽,槽深2.40m,长48m,槽底宽2.20m,土为坚土,一边放坡,一边支挡土板,挡土板为80%的中密板,地下水位距地面1.80m,计算挖土及支挡土板的综合基价,并分析人工及主要材料用量。⑩某工程地基采用反铲挖掘机挖土,自卸汽车运土12km,其中人工挖土部分用翻斗车运出,运距200m,基础开挖尺寸如图,地下水位标高-5.45m,其下土的含水率超过25%,土为三类土,试计算挖运土方的综合基价(不计大型机械进出场费)。

1、当您付费下载文档后,您只拥有了使用权限,并不意味着购买了版权,文档只能用于自身使用,不得用于其他商业用途(如 [转卖]进行直接盈利或[编辑后售卖]进行间接盈利)。
2、本站所有内容均由合作方或网友上传,本站不对文档的完整性、权威性及其观点立场正确性做任何保证或承诺!文档内容仅供研究参考,付费前请自行鉴别。
3、如文档内容存在违规,或者侵犯商业秘密、侵犯著作权等,请点击“违规举报”。

碎片内容

土方工程量算量练习题

确认删除?
VIP
微信客服
  • 扫码咨询
会员Q群
  • 会员专属群点击这里加入QQ群
客服邮箱
回到顶部