电脑桌面
添加小米粒文库到电脑桌面
安装后可以在桌面快捷访问

安全通道及防护棚的规范做法VIP免费

安全通道及防护棚的规范做法_第1页
1/6
安全通道及防护棚的规范做法_第2页
2/6
安全通道及防护棚的规范做法_第3页
3/6
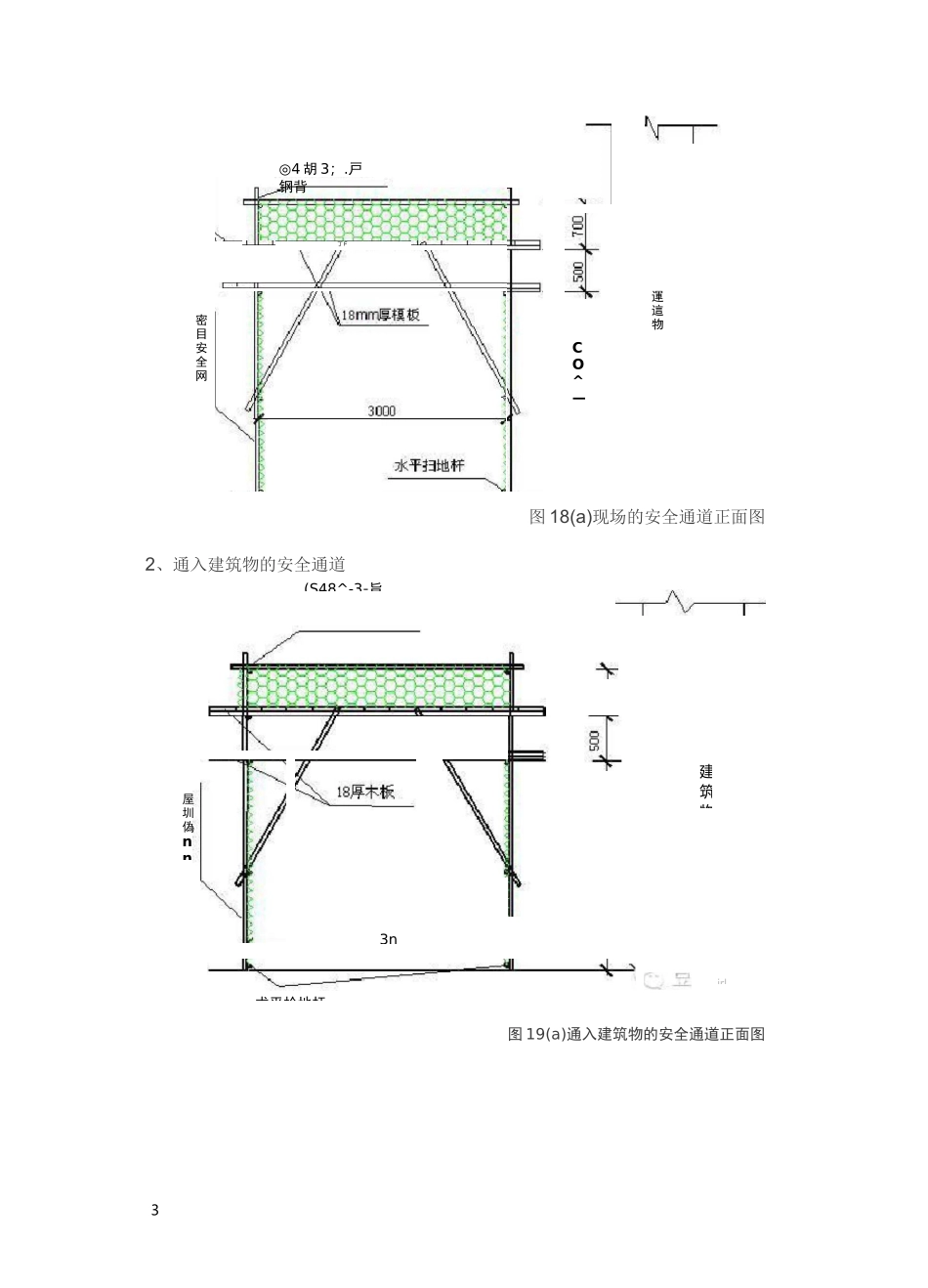
1安全通道及防护棚的规范做法—、基本规1、当临街通道、场内通道、出入建筑物通道、施工电梯及物料提升机地面进料口作业通道处于坠落半径内或处于起重机起重臂回转范围内时,必须设置防护棚及防护通道,以避免发生物体打击事故。2、安全通道、防护棚应采用建筑钢管扣件脚手架或其他型钢材料搭设,严禁采用竹木杆件搭设防护棚。3、安全通道及防护棚的顶部严密¥甫设双层正交竹串片脚手板或双层正交18厚木模板的水平硬质防护,及封闭的防护栏或挡板,整体应能承受10kPa的均布静荷载。塔吊主要经行线路、转料平台、卸料平台落物曲线范围内的安全通道及防护棚顶部严密¥甫设双层正交50厚木板。24、特别重要或大型的安全通道、防护棚及悬挑式防护设施必须制定专项技术方案,经企业技术负责人审批后实施。5、安全通道的搭设安全通道净空高度和宽度应根据通道所处位置及人、车通行要求确定,高度一般不低于m,宽度一般不低于3m。高度在15m以下建筑物,其进出口通道长度不低于3m;高度在15-30m的建筑物,其进出口通道长度不低于4m,高度超过30m的建筑物,其进出口通道长度不低于5m。通道长度自脚手架外排立杆起算。立杆基础必须硬化处理,通道使用期内不得发生地面沉陷,立杆必须沿通行方向通长设置扫地杆和剪刀撑。常规安全通道立杆纵距不应超过1200mm,防护棚悬挑尺寸为300~500mm,双层防护棚层间距为500~600mm。宽度超过m或高度超过4m的安全通道,立杆间足距应加密或使用双立杆、型钢、脚手架管格构式立柱,纵向横杆应采用型钢制作或搭设承重脚手架。安全通道侧边应设置隔离栏杆,引导行人从安全通道内通过,必要时满挂密目网圭寸闭。二、防护方式1、场区内安全通道建筑物3图18(a)现场的安全通道正面图2、通入建筑物的安全通道图19(a)通入建筑物的安全通道正面图(S48^-3-旨屋圳偽nn3n運這物=CO^—朮平拎地杆◎4胡3;.戸钢背jrl丁F密目安全网4图19(b)通入建筑物的安全通道侧面图3、施工电梯、物料提升机地面进料口安全通道''毛豆丁施工图20(a)施工电梯、物料提升机地面进料口安全通道正面图1>、7、

1、当您付费下载文档后,您只拥有了使用权限,并不意味着购买了版权,文档只能用于自身使用,不得用于其他商业用途(如 [转卖]进行直接盈利或[编辑后售卖]进行间接盈利)。
2、本站所有内容均由合作方或网友上传,本站不对文档的完整性、权威性及其观点立场正确性做任何保证或承诺!文档内容仅供研究参考,付费前请自行鉴别。
3、如文档内容存在违规,或者侵犯商业秘密、侵犯著作权等,请点击“违规举报”。

碎片内容

安全通道及防护棚的规范做法

wxg+ 关注
实名认证
内容提供者

该用户很懒,什么也没介绍

确认删除?
微信客服
  • 扫码咨询
会员Q群
  • 会员专属群点击这里加入QQ群