电脑桌面
添加小米粒文库到电脑桌面
安装后可以在桌面快捷访问

造价员实务2012汇总.VIP专享VIP免费

造价员实务2012汇总._第1页
1/255
造价员实务2012汇总._第2页
2/255
造价员实务2012汇总._第3页
3/255
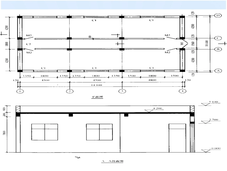
2012年10月12日2.工程计量•例题•某单层建筑物,框架结构,如下图所示。•问题:•1.有永久性顶盖的室外楼梯应如何计算建筑面积。•2.计算图示单层建筑物的建筑面积。•解:•1.有永久性顶盖的室外楼梯,应按建筑物自然层的水平投影面积的1/2计算。•2.该单层建筑的建筑面积:•(14.04×10.44)=146.58平方米•如图所示某工程基础平面图和基础断面图,请计算图示±0.00标高以下工作内容的清单与定额工程量并列入分部分项工程量清单项目表且完善表中相关内容。•已知:基槽为人工挖三类土,工作面300MM,坡度系数为0.3,开挖土方堆在基槽两侧,基础完成后将土方回填,余土用人工将其运至20M处人工上车,汽车外运1KM弃渣。•1.外墙中心线长度:•(6.3+9.6)×2=31.80M•2.内墙净长线长度:•(4.2+6.3×2-0.24×3)=16.08M•3.内墙基顶净长线长度:•(4.2+6.3×2-0.30×3)=15.90M•4.内墙垫层净长线长度:•(4.2-0.5-0.4)+(6.3-0.5×2)+(6.3-0.5-0.4)=14.00M•5.内墙槽底净长线长度:•(4.2-0.8-0.7)+(6.3-0.8×2)+(6.3-0.8-0.7)=13.10M•6.清单基础土方工程量:•(1)外墙:31.8×1.0×2.0=63.60m3•(2)内墙:14.00×0.8×2.0=22.40m3•合计:86.00m3•7.清单M10水泥沙浆毛条石基础工程量:•31.8×(0.8×0.6+0.3×0.3)+15.9×(0.6×0.6+0.3×0.3)-0.6×0.25×0.6×4•-0.6×0.15×0.6×2=24.81m3•8.C10砼垫层:•(31.8×1.0+14.0×0.8)×0.1=4.30m3•9.清单M7.5水泥沙浆标准砖基础工程量:•(31.8+16.08)×0.24×1.30=14.94m3•10.余土外运:•24.81+4.30+(31.8+16.08)×0.24×1.0=40.60m3•11.人工挖基槽土方:•31.8×(1.0+2×0.3+0.3×2.0)×2.0+13.10×(0.8+2×0.3+0.3×2.0)×2.0•=192.32m3•12.清单基础回填土工程量:•(63.60+22.40)-40.60=45.60m3•13.定额基础回填土工程量:•192.32-40.60=151.72m3分部分项工程量清单项目表项目编码项目名称及工作内容计量单位工程数量略基础土方1.人工挖三类土;2.带形基础;3.垫层宽1.0M;4.挖土深度2.0M;5.人力运土20M,汽车运输1.0KM。M363.60略基础土方1.人工挖三类土;2.带形基础;3.垫层宽0.8M;4.挖土深度2.0M;5.人力运土20M,汽车运输1.0KM。M322.40略土方回填1.土质三类土;2.槽边取土;3.人工夯实、回填。M3151.72略砖基础1.无垫层;2.标准砖240×115×53;3.带形基础,深度2.0M;4.M7.5水泥沙浆M314.94略石基础1.C10砼垫层;2.毛条石;3.带形基础,深度2.0M;4.M10水泥沙浆M324.81•例题•某单层建筑物,框架结构,如图2所示。外墙墙身采用M5.0混合砂浆砌筑加气混凝土砌块,女儿墙采用M5.0混合砂浆砌筑煤矸石空心砖;混凝土压顶断面240mm×60mm,墙厚均为240mm;内墙为石膏空心条板墙80mm。框架柱断面240mm×240mm到女儿墙顶,框架梁断面240mm×400mm,砌体墙上门窗洞口均采用现浇混凝土过梁,支座长度250mm,断面240mm×180mm。M1:1560mm×2700mm,M2:1000mm×2700mm,C1(6樘):1800mm×1800mm,C2:1560mm×1800mm。•根据清单计价规范:空心砖墙、砌块墙的项目编码为010304001;•请计算砌体墙体清单工程量。并完成下表所示分部分项工程量清单项目表中内容。分部分项工程量清单项目表项目编码项目名称计量单位工程数量•砌体墙体清单工程量:•1)外墙中心线长度:13.8×2+10.2×2=48米•2)应扣门窗面积:1.56×2.7+1.8×1.8×6+1.56×1.8=26.46平方米•3)应扣过梁体积:(1.56×2+2.3×6)×0.24×0.18=0.73立方米•4)M5.0混合砂浆砌筑加气混凝土砌块墙体清单工程量:•[(48-0.24×12)×3.8-26.46]×0.24-0.73=34.07立方米•5)M5.0混合砂浆砌筑煤矸石空心砖墙清单工程量:•(48-0.24×12)×(0.9-0.06(压顶的高度))×0.24=9.10立方米分部分项工程量清单项目表如下分部分项工程量清单项目表项目编码项目名称计量单位工程数量010304001001空心砖墙、砌块墙1.外墙、墙厚240;2.M5.0混合砂浆砌筑加气混凝土砌块;3.砂浆制作、运输,材料运输,砌筑。立方米34.07010304001002空心砖墙、砌块墙1.女儿墙、墙厚240;2.M5.0混合砂浆砌筑砌筑煤矸石空心砖;3....

1、当您付费下载文档后,您只拥有了使用权限,并不意味着购买了版权,文档只能用于自身使用,不得用于其他商业用途(如 [转卖]进行直接盈利或[编辑后售卖]进行间接盈利)。
2、本站所有内容均由合作方或网友上传,本站不对文档的完整性、权威性及其观点立场正确性做任何保证或承诺!文档内容仅供研究参考,付费前请自行鉴别。
3、如文档内容存在违规,或者侵犯商业秘密、侵犯著作权等,请点击“违规举报”。

碎片内容

造价员实务2012汇总.

确认删除?
VIP
微信客服
  • 扫码咨询
会员Q群
  • 会员专属群点击这里加入QQ群
客服邮箱
回到顶部