电脑桌面
添加小米粒文库到电脑桌面
安装后可以在桌面快捷访问

剪力墙钢筋工程量计算讲解_secretVIP免费

剪力墙钢筋工程量计算讲解_secret_第1页
1/12
剪力墙钢筋工程量计算讲解_secret_第2页
2/12
剪力墙钢筋工程量计算讲解_secret_第3页
3/12
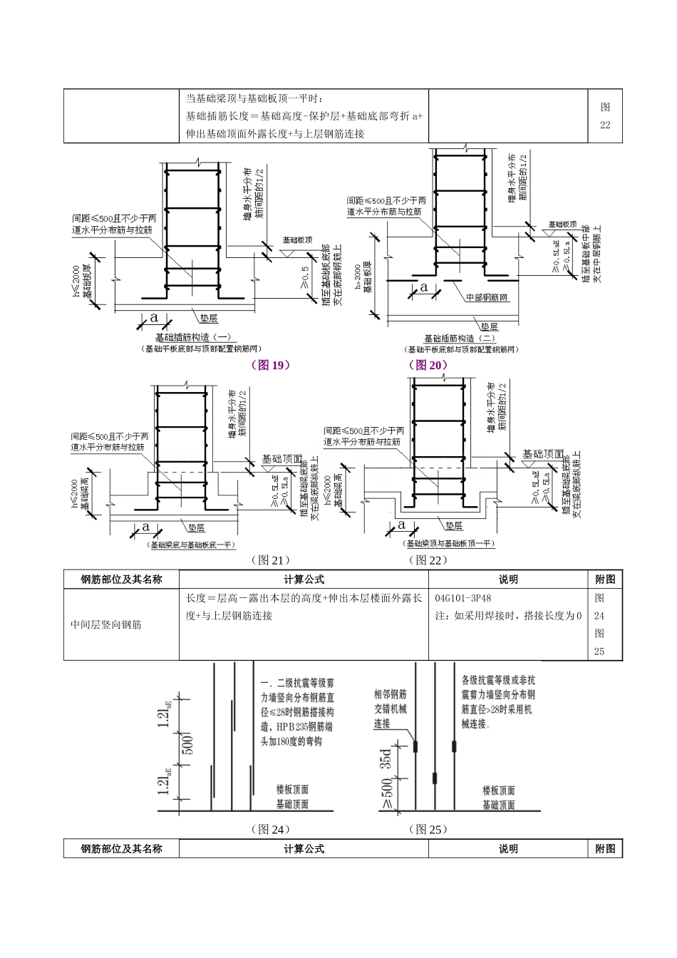
第三章剪力墙钢筋计算在计算剪力墙钢筋时,需要考虑以下几个问题:(图18)1、剪力墙需要计算哪些钢筋?剪力墙主要有墙身、墙柱、墙梁、洞口四大部分构成,其中墙身钢筋包括水平筋、垂直筋、拉筋和洞口加强筋;墙柱包括暗柱和端柱两种类型,其钢筋主要有纵筋和箍筋;墙梁包括暗梁和连梁两种类型,其钢筋主要有纵筋和箍筋。2、计算剪力墙墙身钢筋需要考虑以下几个因素:基础型式、中间层和顶层构造;墙柱、墙梁对墙身钢筋的影响。(图18)一、墙身竖向筋计算钢筋部位及其名称计算公式说明附图基础插筋(基础平板中)当筏板基础≤2000mm时:基础插筋长度=基础高度-保护层+基础底部弯折a+伸出基础顶面外露长度+与上层钢筋连接(如采用焊接时,搭接长度为0)04G101-3P45墙插筋构造一弯折长度a与框架注相同图19当筏板基础>2000mm时:基础插筋长度=基础高度/2-保护层+基础弯折a++伸出基础顶面外露长度+与上层钢筋连接(如采用焊接时,搭接长度为0)04G101-3P45墙插筋构造二图20基础插筋(基础主梁中)当基础梁底与基础板底一平时:基础插筋长度=基础高度-保护层+基础底部弯折a+伸出基础顶面外露长度+与上层钢筋连接04G101-3P32墙竖向钢筋插筋构造注:如采用焊接时,搭接长度为0图21当基础梁顶与基础板顶一平时:基础插筋长度=基础高度-保护层+基础底部弯折a+伸出基础顶面外露长度+与上层钢筋连接图22(图19)(图20)(图21)(图22)钢筋部位及其名称计算公式说明附图中间层竖向钢筋长度=层高-露出本层的高度+伸出本层楼面外露长度+与上层钢筋连接04G101-3P48注:如采用焊接时,搭接长度为0图24图25(图24)(图25)钢筋部位及其名称计算公式说明附图顶层竖向钢筋长度=层高-露出本层的高度-板厚+锚固lae(la)04G101-3P48图26(图26)二、墙身水平筋计算钢筋部位及其名称计算公式说明附图内侧钢筋长度=墙长-保护层+15d-保护层+15d03G101-1P47剪力墙钢筋配置若多于两排,中间排水平筋端部构造同内侧钢筋(03G101-1P47注5)图27外侧钢筋外侧钢筋连续通过,则水平筋伸至墙对边,长度=墙长-2*保护层03G101-1P47根数基础层:在基础部位布置间距小于等于500且不小于两道水平分布筋与拉筋04G101-3P32、45楼层:(层高-水平分布筋间距)/间距+103G101-1P47(图27)三、墙身拉筋计算钢筋部位及其名称计算公式说明附图拉筋长度=墙厚-2*保护层+max(75+1.9d,11.9d)*2+2d04G101-3P48图28根数=(墙面积-门洞总面积-暗柱所占面积-暗梁面积-连梁所占面积)/(横向间距*纵向间距)当剪力墙竖向钢筋为多排布置时,拉筋的个数与剪力墙竖向钢图29筋的排数无关。图30(图28)(图29)(图30)四、暗柱钢筋计算剪力墙墙柱包括约束边缘暗柱YAZ、约束边缘端柱YDZ、约束边缘翼墙柱YYZ、约束边缘转角柱YJZ、构造边缘暗柱GAZ、构造边缘端柱GDZ、构造边缘翼墙柱GYZ、构造边缘转角柱GJZ(GB50010-2002P195、196、03G101-1P18、49、50)、非边缘暗柱AZ和扶壁柱FBZ共十类,在计算钢筋工程量时,只需要考虑为端柱和暗柱即可。1、纵筋计算(03G101-1P12、18、49、50)由于剪力墙可视为由剪力墙柱、剪力墙身和剪力墙梁三类构件构成,因此暗柱纵向钢筋构造同墙身竖向筋。(03G101-1P48)。钢筋部位及其名称计算公式说明附图暗柱钢筋基础插筋长度同剪力墙身04G101-3P32、45中间层钢筋如图03G101-1P49、50图31顶层构造:同剪力墙竖向钢筋顶层构造03G101-1P48图26所有暗柱纵向钢筋搭接范围内的箍筋间距要求同(03G101-1P40)注的第2条,即:当柱纵筋采用搭接连接时,应在柱纵筋搭接长度范围内均按≤5d(d为搭接钢筋较小直径)及≤100的间距加密箍筋。03G101-1P40图13(图31)五、端柱钢筋计算通常情况下端柱、小墙肢(截面高度不大于截面厚度3倍的矩形截面独立墙肢)的竖向钢筋与箍筋构造与框架柱相同,其中抗震竖向钢筋构造详见03G101-1P36至P38页,箍筋构造详见P40;非抗震竖向箍筋构造详见03G101-1P42至P44页,箍筋构造详见P45页。(03G101-1P48)六、剪力墙端为暗柱钢筋计算钢筋部位及其名称计算公式说明附图墙端为暗柱水平筋L形:外侧钢筋长度=墙长-保护层;内侧钢筋长度=墙长-保护层+15*d*2。当外侧钢筋有连续...

1、当您付费下载文档后,您只拥有了使用权限,并不意味着购买了版权,文档只能用于自身使用,不得用于其他商业用途(如 [转卖]进行直接盈利或[编辑后售卖]进行间接盈利)。
2、本站所有内容均由合作方或网友上传,本站不对文档的完整性、权威性及其观点立场正确性做任何保证或承诺!文档内容仅供研究参考,付费前请自行鉴别。
3、如文档内容存在违规,或者侵犯商业秘密、侵犯著作权等,请点击“违规举报”。

碎片内容

剪力墙钢筋工程量计算讲解_secret

文泉书屋+ 关注
实名认证
内容提供者

热爱教学事业,对互联网知识分享很感兴趣

相关文档

确认删除?
VIP
微信客服
  • 扫码咨询
会员Q群
  • 会员专属群点击这里加入QQ群
客服邮箱
回到顶部