电脑桌面
添加小米粒文库到电脑桌面
安装后可以在桌面快捷访问

建筑工程专业基础知识试题库答案 VIP免费

建筑工程专业基础知识试题库答案 _第1页
1/19
建筑工程专业基础知识试题库答案 _第2页
2/19
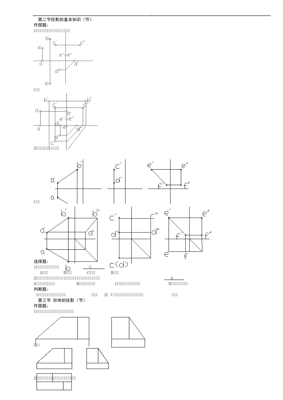
..第二节投影的基本知识(节)作图题:1、已知点的两面投影,求第三投影。答案:2、求下列直线的第三投影答案:选择题:1、下列不属于曲面体的是CA、圆柱B、圆锥C、棱柱D、球体2、一个平行于水平投影面的平行四边形在空间各个投影面的正投影是AA、两条线,一个平面B、一条线两个平面C、一点、一条线、一个面D、两条线、一个点判断题:1、直线的轴侧投影可能是点。(√)2、V面投影反映物体的长度和宽度。(ⅹ)第三节形体的投影(节)作图题:1、根据形体的两面投影,补绘第三投影。答案:2、根据立体图,完成形体的三面正投影图。..答案:第四节轴测图(节)作图题:1、根据正投影图,画出正等轴测图。答案:第五节剖面图(节)作图题:1、画全剖面图。..答案:第六节断面图(节)作图题:1、画出1-1、2-2、3-3各断面图。答案:1-12-23-3选择题:1、钢筋混凝土梁的结构详图中,配筋图中的断面图,采用的是AA、移出断面图B、中断断面图C、重合断面图D、剖视图第七节建筑工程识图(节)选择题:1、钢筋工程施工中要看懂C。A、建筑施工图B、土建施工图C、结构施工图D、设备施工2、基础各部分形状、大小、材料、构造、埋深及主要部位的标高都能通过C反映出来。A、总平面图B、基础平面图C、基础详图D、结构平面图3、画基础平面图时,基础墙的轮廓线应画成BA、细实线B、中实线C、粗实线D、实线4、钢筋混凝土构件分为现浇整体式和预制装配式是按CA、受力特征B、材料C、施工方法D、计算结果5、钢筋混凝土构件详图不包括AA、断面图B、模板图C、配筋图D、钢筋表判断题:1、基础结构图属于建筑施工图。(ⅹ)2、当采用砖墙和砖基础时,在基础墙和垫层之间做成阶梯形的砌体,称为阶梯形基础。(ⅹ)3、结构施工图是说明房屋的结构构造类型、结构平面布置、构件尺寸、材料和施工要求等。(√)第八节墙体的建筑构造(节)填空题:1、按受力情况不同,墙体可分为承重墙和非承重墙。2、散水是沿建筑物外墙设置的倾斜坡面,坡度一般为3%—5%,宽度一般为600—1000mm..3、设计抗震设防烈度在8度及以上时,圈梁必须贯通封闭。选择题:1、在建筑工程中,建筑物与土层直接接触的部分称为BA、地基B、基础C、勒脚D、散水2、外墙与室外地坪接触的部分叫CA、散水B、踢脚线C、勒脚D、防潮层3、下列B不能用于加强砌体结构房屋整体性。A、设圈梁B、设过梁C、设壁柱D、设构造柱4、当室内地面垫层为碎砖或灰土材料时,其水平防潮层的位置应设在DA、垫层高度范围内B、室内地面以下-0.060m处C、垫层标高以下D、平齐或高于室内地面面层5、门窗过梁的作用是CA、装饰的作用B、承受砖墙的荷载C、承受门窗上部墙的荷载D、承受楼板的荷载名词解释题:1、地基:支撑建筑物重量的土层。判断题:1、明沟的作用与散水相似,适用于室外无组织排水。(√)2、地基是建筑物的重要组成部分,是地下承重构件。(ⅹ)3、圈梁设置的数量与房屋的高度、层数、地基状况和地震烈度无关。(ⅹ)简答题:1、为了使构造柱与墙体连接牢固,应从构造方面和施工方面采取什么措施?答案:构造柱处墙体宜砌成马牙槎,并应沿墙高每隔500mm设2Φ6拉结钢筋,每边伸入墙内不少于1.0m,施工时应先放置构造柱钢筋骨架,后砌墙,随着墙体的升高而逐段浇筑混凝土构造柱身。第九节楼板、楼地面及屋顶的建筑构造(节)填空题:1、预制钢筋混凝土楼板中,板在墙上的搁置长度不宜小于墙体110mm,在梁上不小于60mm2、楼板层是由面层、附加层、结构层、顶棚层四部分组成。3、平屋顶的泛水高度不得小于250mm。选择题:1、现浇钢筋混凝土楼板的优点是DⅠ、适用于平面不规则的建筑Ⅱ、施工方便、工期短Ⅲ、强度高Ⅳ、刚度大A、Ⅰ、ⅡB、Ⅱ、ⅢC、Ⅲ、ⅣD、Ⅰ、Ⅳ2、楼板上的荷载先由板传给梁,再由梁传给墙或柱,这种由板和梁组成的楼板称为BA、板式楼板B、梁板式楼板C、无梁式楼板D、压型钢板组合楼板3、屋顶是建筑物最上层起围护和承重的构件,屋顶构造设计的核心是CA、承重B、保温隔热C、防水和排水D、隔声和防火4、屋面有组织排水系统不包括DA、天沟B、雨水斗C、雨水管D、分水线5、屋顶的坡度形成中材料找坡是指B来形成。A、利用预制板的搁置B、选用轻质材料...

1、当您付费下载文档后,您只拥有了使用权限,并不意味着购买了版权,文档只能用于自身使用,不得用于其他商业用途(如 [转卖]进行直接盈利或[编辑后售卖]进行间接盈利)。
2、本站所有内容均由合作方或网友上传,本站不对文档的完整性、权威性及其观点立场正确性做任何保证或承诺!文档内容仅供研究参考,付费前请自行鉴别。
3、如文档内容存在违规,或者侵犯商业秘密、侵犯著作权等,请点击“违规举报”。

碎片内容

建筑工程专业基础知识试题库答案

您可能关注的文档

确认删除?
VIP
微信客服
  • 扫码咨询
会员Q群
  • 会员专属群点击这里加入QQ群
客服邮箱
回到顶部