电脑桌面
添加小米粒文库到电脑桌面
安装后可以在桌面快捷访问

二次结构信息VIP免费

二次结构信息_第1页
1/9
二次结构信息_第2页
2/9
二次结构信息_第3页
3/9
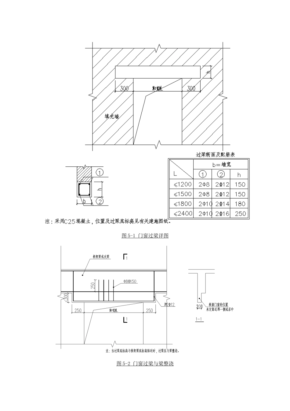
4施工工艺及要求4.6.7所有墙体在相互连接处及转角处均应设置墙身拉接筋2Φ6@500(实心墙体)或2Φ4@250钢筋网片(空心墙体)。相互伸入墙身不少于1000,在墙体与混凝土墙、柱连接处应设置上述拉接钢筋或钢筋网片。4.5.9填充墙与钢筋混凝土构件相接处,应在该处双面粉饰层内,设置通长钢板网片(规格:丝梗厚度0.8mm、丝梗宽度0.7mm、孔眼宽度9mm、节距21mm)、宽度为600,以两种材料的分界线为中线,居中布置。5构造要求本工程圈梁及构造柱砼为C20,过梁砼为C25。填充墙或隔墙的砌筑,应先砌墙后浇构造柱,且应满足相应砌体结构的有关施工规定;砌体施工质量控制等级为B级。(HPB300—C20—39d、HPB300—C25—34d、HRB400—C25—40d)5.1过梁的设置门窗洞口过梁选用图集《钢筋混凝土过梁》(13G322)。附加线荷载等级为0级,过梁支承长度为300mm。过梁底标高为洞顶标高。当过梁与框架柱相连时,主体结构施工时应在柱内预留过梁纵筋,待砌筑墙体时后浇过梁;当门窗洞边无砖墩可搁置过梁时,应在相应洞顶位置的混凝土墙、柱上预埋铁件,以便和过梁中的钢筋焊接。过梁浇筑时,应做出洞口企口。当圈梁在门窗洞处切断时,则门窗洞处的过梁应伸过洞口≥1000、并不小于圈(过)梁高差的2倍。窗(门)顶至梁底高度<300或无法设过梁处,应做梁下挂板与框架梁整浇,挂板高度及企口尺寸结合建筑图确定。洞口过梁及梁下挂板做法如下所示:图5-1门窗过梁详图图5-2门窗过梁与梁整浇5.2窗台压顶小型混凝土空心砌块外墙的窗台处,应设置钢筋混凝土窗台梁,截面为bx200,配筋为412、8@200,混凝土强度等级为C20,端部应伸入窗侧墙内各400~500mm长。5.3圈梁的设置对于180~200厚墙,当4m<墙高≤6m(对于90~120厚墙,当2m<墙高≤3m)时,在墙高中部或门窗顶部设钢筋混凝土圈梁,圈梁纵向钢筋应锚入框架柱或构造柱内LaE。该圈梁可以与门窗及洞口过梁合二为一,但在过梁位置要保证圈梁及过梁二者取大者的配筋及截面。所有圈梁或压砖槛的端部均应与钢筋混凝土或钢结构的框架柱、构造柱等竖向构件形成封闭体系。图5-3统圈梁截面详图图5-4压砖槛5.4构造柱的设置图5-5构造柱做法图5-6构造柱设置位置、截面及配筋5.5当柱边或剪力墙边墙体长度≤400(墙厚≤200)、≤370(240墙厚)时,柱边或剪力墙边砌体应以钢筋混凝土柱代替。图5-8小肢填充墙5.6填充墙与框架柱、剪力墙拉结图5-9填充墙与框架柱拉结详图图5-10填充墙与剪力墙拉结详图5.7填充墙墙顶开洞图5-11填充墙墙顶开洞构造图5.9当墙长不小于5米时墙顶与梁或板宜有拉结,做法详见填充墙顶部拉结构造二。考虑到楼板厚度,楼板处植筋深度统一定为100mm。图5-13填充墙顶部拉结构造二5.12门窗框抱框所有墙的门、窗框二侧(有构造柱时例外),应采用抱框做法,详见下图。图5-15门洞抱框做法一(门洞宽≥1200)图5-16门洞抱框做法二(门洞宽<1200)

1、当您付费下载文档后,您只拥有了使用权限,并不意味着购买了版权,文档只能用于自身使用,不得用于其他商业用途(如 [转卖]进行直接盈利或[编辑后售卖]进行间接盈利)。
2、本站所有内容均由合作方或网友上传,本站不对文档的完整性、权威性及其观点立场正确性做任何保证或承诺!文档内容仅供研究参考,付费前请自行鉴别。
3、如文档内容存在违规,或者侵犯商业秘密、侵犯著作权等,请点击“违规举报”。

碎片内容

二次结构信息

确认删除?
VIP
微信客服
  • 扫码咨询
会员Q群
  • 会员专属群点击这里加入QQ群
客服邮箱
回到顶部