电脑桌面
添加小米粒文库到电脑桌面
安装后可以在桌面快捷访问

传感器壳体案例分析重点VIP专享VIP免费

传感器壳体案例分析重点_第1页
1/29
传感器壳体案例分析重点_第2页
2/29
传感器壳体案例分析重点_第3页
3/29
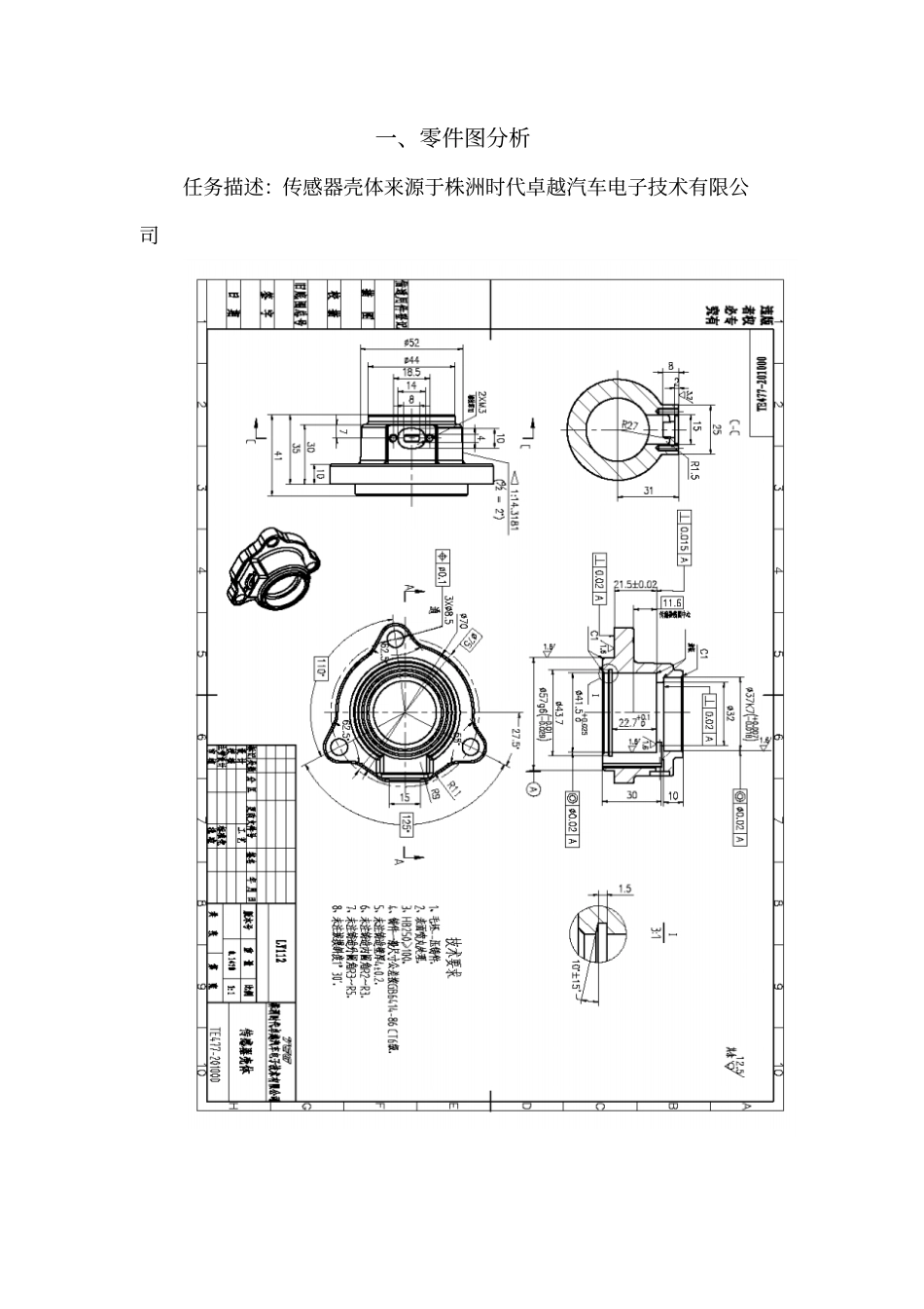
传感器壳体的工艺分析和程序编制一、零件图分析任务描述:传感器壳体来源于株洲时代卓越汽车电子技术有限公司1、零件的作用传感器壳体。属于箱体类零件,其主要作用是保护传感器。2、零件的材料及其力学性能工件的材料为LY112是铸造铝合金。铸造铝合金是在纯铝的基础上加入其他金属或非金属元素,不仅能保持纯铝的基本性能,而且由于合金化及热处理的作用,使铝合金具有良好的综合性能。主要采用压力铸造。3、零件的结构工艺分析传感器壳体的加工表面有¢57g6(01.0029.0)端面¢57g6(01.0029.0)外圆¢37k7内孔及¢37k7内孔¢41.5(025.00)内孔及其顶面,3×¢8.5通孔下底面,14×10和8×4的槽,2×M3深10的螺纹孔。查《公差配合与技术测量》表2.4分析如下:¢57g6(01.0029.0):其公差等级为IT6级,表面粗糙度是1.6um。¢57g6(01.0029.0)端面:其公差等级为IT11,表面粗糙度为12.5um。¢37k7内孔:其公差等级为IT7级表,面粗糙度为1.6um且与¢57g6(01.0029.0)有同轴度要求。¢37k7(007.0018.0)内孔底面:其加工表面与¢57g6(01.0029.0)轴线有垂直度要求。¢41.5(025.00)内孔:其公差等级为IT7,表面粗糙度为1.6um且与¢57g6(01.0029.0)有同轴度要求。¢41.5(025.00)内孔顶面:其公差等级为IT7级,表面粗糙度为1.6um3×¢8.5通孔台阶底面:其公差等级为IT7级,表面粗糙度为1.6um,公差为160um。凸台表面:其公差等级为IT8级,表面粗糙度为3.2um。4×10和8×4的槽:其公差等级为IT11级,表面粗糙度为12.5um。2×M3深10的螺纹孔:其公差等级为IT11,表面粗糙度为12.5um。其余各表面公差等级为IT11表面粗糙度为12.5um。二、毛坯的分析毛坯的选择和拟定毛坯图是制定工艺规程的最初阶段工作之一,也是一个比较重要的阶段,毛坯的形状和特征(硬度,精度,金相组织等)对机械加工的难易,工序数量的多少有直接影响,因此,合理选择毛坯在生产占相当重要的位置,同样毛坯的加工余量的确定也是一个非常重要的问题。1、毛坯的选择毛坯种类的选择决定与零件的实际作用,材料、形状、生产性质以及在生产中获得可能性,毛坯的制造方法主要有以下几种:型材、锻造、铸造、焊接、其他毛坯。该零件材料为LY112,考虑到零件本身的结构以及材料,结构复杂,有较好的铸造性和耐磨性,所以采用铸件,铸造的方法有砂型铸造,金属铸造,精密铸造,压力铸造,离心铸造等。本零件生产批量为中小批量,综上所叙选择铸造中的压力铸造。2、毛坯图的设计毛坯(铸件)图是根据产品零件设计的,经查《金属机械加工工艺人员手册》表5—21可知:铝铸件的机械加工单边余量为2mm三、工艺路线的拟定1、定位基准的选择基准的选择是工艺规程设计中的重要工作之一。基准的选择的正确合理,可以保证加工质量,提高生产效率。1)粗基准的选择选择粗基准要考虑两个问题:一是合理的分配加工面的加工余量,二是保证加工面与不加工面之间的相互位置关系。根据粗基准的选择原则对该工件进行分析以铸件毛坯的¢52外圆作为基准比较合理。2)精基准的选择选择精基准首先应确保零件的加工精度,然后再考虑装夹方便,从本工件的精度及公差要求来看大多数要加工的表面为内孔且其公差要求的确定都是以A为基准,所以暂选¢57g6为精基准,如在下面的加工过程中有基准重合问题时,应该更换基准。2、加工方法的确定在市场经济的前提下,一切都是为能创造出更多的财富和提高劳动率为目的,同样的加工方法的选择一般考虑的是在保证工件加工要求的前提下,译稿工件的加工效率和经济性,而在具体的选择上,一般根据机械加工资料和工人的经验来确定。由于方法的多种多样,工人在选择时一般结合具体的工件和现场的加工条件来确定最佳的加工方案。同样在该零件的加工方法的选择中,我们考虑了工件的具体情况互我们学校的具体加工条件,查《机械制造工艺》表2.16、2.17、2.18按加工表面来阐述的加工方案:加工表面公差等级表面粗糙度加工方法¢57g6IT6Ra1.6粗车—半精车—精车¢57g6端面IT11Ra12.5粗车¢37k7内孔IT7Ra1.6粗镗—半精镗—精镗¢37k7内孔底面IT11Ra12.5粗镗¢41.5内孔IT7Ra1.6粗镗—半精镗—精镗¢41.5内孔顶面IT7Ra1.6粗镗—半精镗—精镗3×¢8.5通...

1、当您付费下载文档后,您只拥有了使用权限,并不意味着购买了版权,文档只能用于自身使用,不得用于其他商业用途(如 [转卖]进行直接盈利或[编辑后售卖]进行间接盈利)。
2、本站所有内容均由合作方或网友上传,本站不对文档的完整性、权威性及其观点立场正确性做任何保证或承诺!文档内容仅供研究参考,付费前请自行鉴别。
3、如文档内容存在违规,或者侵犯商业秘密、侵犯著作权等,请点击“违规举报”。

碎片内容

传感器壳体案例分析重点

确认删除?
VIP
微信客服
  • 扫码咨询
会员Q群
  • 会员专属群点击这里加入QQ群
客服邮箱
回到顶部