电脑桌面
添加小米粒文库到电脑桌面
安装后可以在桌面快捷访问

卸料平台示意图VIP免费

卸料平台示意图_第1页
1/8
卸料平台示意图_第2页
2/8
卸料平台示意图_第3页
3/8
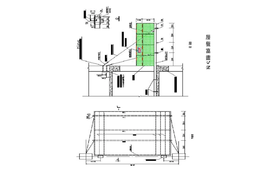
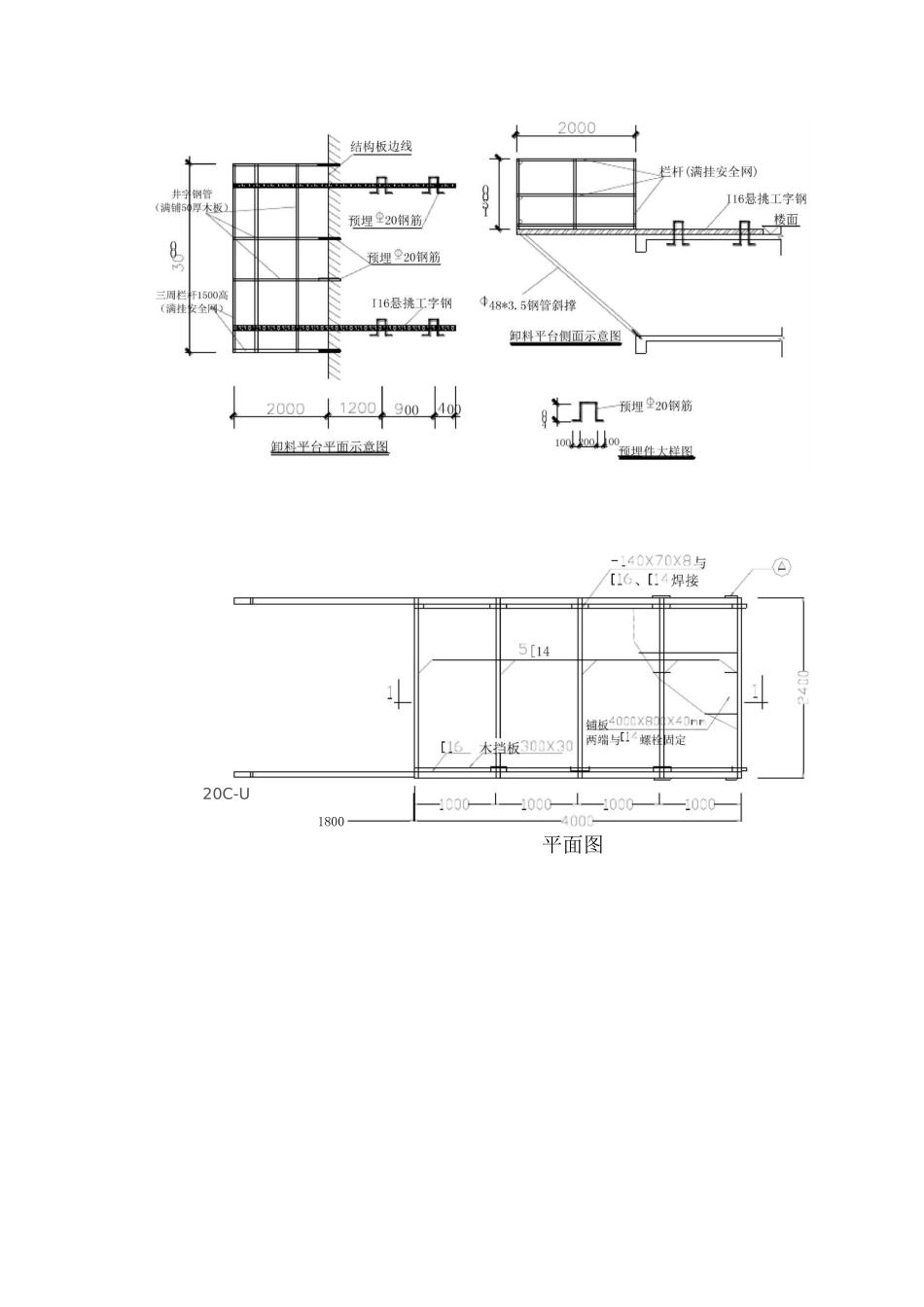
180020C-U平面图与[一焊接焊缝厚6mm钢丝绳+_.花蓝螺栓栏杆用扣件固定两根钢丝绳用只钢丝夹具―-__剖面图屋譽富盡S孟蜃筈tins-r制平舒酥麹接料平台立而示意图注力1.荷载必.须是经过计算并加安佥系数的.2物料不得集中堆放:不得敖在栏杆上.3.限重牌上直观标示出胡工中经常吊运的物品数量(如_根6川长钢管;—根6皿长的也10钢筋;_feD0X1200钢模板等)口限重牌(W:mm)铝合金包边竹胶板钻ICmm孔2030600S结构板边线杆1500高三周栏:(满挂安全网).(满铺50厚木板)预埋20钢筋预埋或20钢筋116悬挑工字钢“/UGD.Li2on..“00■「100卸料平台平面示意图I48*3.5钢管斜撑卸料平台侧面示意图立杆^体©60洞口害①48钢管©48钢管'1■扣件图4.3.3连墙件大样

1、当您付费下载文档后,您只拥有了使用权限,并不意味着购买了版权,文档只能用于自身使用,不得用于其他商业用途(如 [转卖]进行直接盈利或[编辑后售卖]进行间接盈利)。
2、本站所有内容均由合作方或网友上传,本站不对文档的完整性、权威性及其观点立场正确性做任何保证或承诺!文档内容仅供研究参考,付费前请自行鉴别。
3、如文档内容存在违规,或者侵犯商业秘密、侵犯著作权等,请点击“违规举报”。

碎片内容

卸料平台示意图

wxg+ 关注
实名认证
内容提供者

该用户很懒,什么也没介绍

确认删除?
VIP
微信客服
  • 扫码咨询
会员Q群
  • 会员专属群点击这里加入QQ群
客服邮箱
回到顶部