电脑桌面
添加小米粒文库到电脑桌面
安装后可以在桌面快捷访问

T68镗床电气原理与故障分析VIP免费

T68镗床电气原理与故障分析_第1页
1/3
T68镗床电气原理与故障分析_第2页
2/3
T68镗床电气原理与故障分析_第3页
3/3
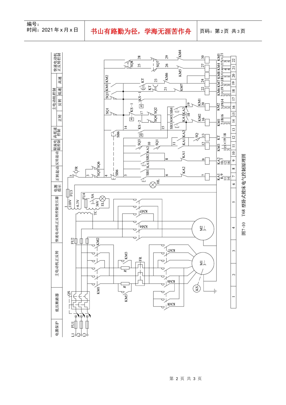
第1页共3页编号:时间:2021年x月x日书山有路勤为径,学海无涯苦作舟页码:第1页共3页实训十T68镗床电气原理与故障分析一、实训目的1、熟悉T68镗床电气控制电路的特点。2、了解T68镗床电气控制电路板中各电器位置的合理布置及配线方式。熟悉所用电器的规格、型号、用途及动作原理。3、学习T68镗床电气控制电路板的接线规则和方法,了解T68镗床电气控制电路的线号标注规则及导线、按钮规定使用的颜色。4、能正确使用仪表、工具等对机床电气控制电路进行有针对性的检查、测试和维修。学会根据电气原理图分析和排除故障,初步掌握一般机床电气设备的调试。故障分析和排除故障的方法,具有一定的维修能力。5、进一步牢固地掌握继电—接触器控制电路的基本环节在T68镗床电气控制电路中的控制作用,初步具备改造和安装一般生产机械电气设备控制电路的能力。。二、实训装置及仪表1、三相交流异步电动机(其中一台连有速度继电器)2台2、T68镗床电气控制电路板(自制)1块3、万用表、兆欧表各1只4、常用电工工具1套5、连接电源和电动机的三芯橡胶电缆若干6、控制变压器一台三、电气原理图第2页共3页第1页共3页编号:时间:2021年x月x日书山有路勤为径,学海无涯苦作舟页码:第2页共3页第3页共3页第2页共3页编号:时间:2021年x月x日书山有路勤为径,学海无涯苦作舟页码:第3页共3页四、实训内容和步骤1、熟悉电路元件。2、检查线号、注意端子接线是否牢固、规范3、检查线号及端子接线。4、检查电路接线。5、检查行程开关。6、通电实验。五、实训总结。1、在T68镗床电气控制电路中,设有那些联锁与保护?2、实验板的电气设备及接线要做那几项检查?主回路和控制回路线号标注的原则是什么?3、在实验板上怎样实现T68镗床的主运动、进给运动和辅助运动?4、速度继电器KV1、KV2触点在电路中起何作用?

1、当您付费下载文档后,您只拥有了使用权限,并不意味着购买了版权,文档只能用于自身使用,不得用于其他商业用途(如 [转卖]进行直接盈利或[编辑后售卖]进行间接盈利)。
2、本站所有内容均由合作方或网友上传,本站不对文档的完整性、权威性及其观点立场正确性做任何保证或承诺!文档内容仅供研究参考,付费前请自行鉴别。
3、如文档内容存在违规,或者侵犯商业秘密、侵犯著作权等,请点击“违规举报”。

碎片内容

T68镗床电气原理与故障分析

确认删除?
VIP
微信客服
  • 扫码咨询
会员Q群
  • 会员专属群点击这里加入QQ群
客服邮箱
回到顶部