电脑桌面
添加小米粒文库到电脑桌面
安装后可以在桌面快捷访问

工程力学试卷VIP免费

工程力学试卷_第1页
1/6
工程力学试卷_第2页
2/6
工程力学试卷_第3页
3/6
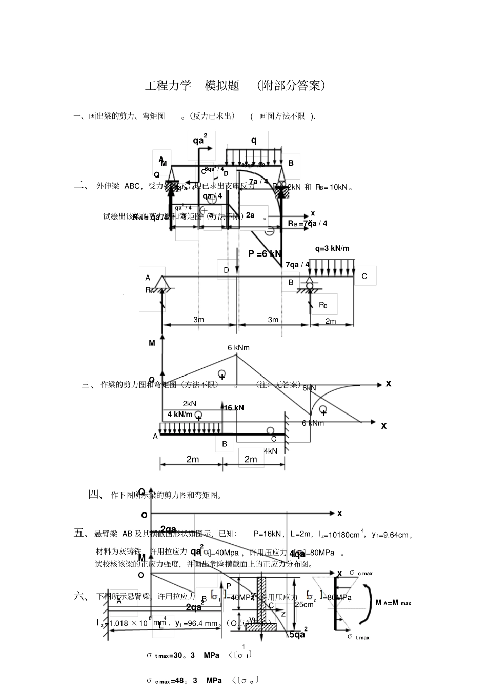
1工程力学模拟题(附部分答案)一、画出梁的剪力、弯矩图。(反力已求出)(画图方法不限).二、外伸梁ABC,受力如图示,现已求出支座反力RA=2kN和RB=10kN。试绘出该梁的剪力图和弯矩图(方法不限)。三、作梁的剪力图和弯矩图(方法不限)。(注:无答案)四、作下图所示梁的剪力图和弯矩图。五、悬臂梁AB及其横截面形状如图示,已知:P=16kN,L=2m,Iz=10180cm4,y1=9.64cm,材料为灰铸铁,许用拉应力[t]=40Mpa,许用压应力[c]=80MPa。试校核该梁的正应力强度,并画出危险横截面上的正应力分布图。六、下图所示悬臂梁,许用拉应力t=40MPa,许用压应力c=80MPa,zI=1.018×108mm4,1y=96.4mm。(O点为形心)DCRBBARAP=6kN3m3m2mPBALzy2Cy1σtmaxσcmaxMA=Mmaxσtmax=30。3MPa〈〔σt〕σcmax=48。3MPa〈〔σc〕25cm2qa4qaMOxqa22qa25qa2QxoB2m4kN/m16kN2mCAq=3kN/mx++-Q2kN4kN6kNM6kNm+x6kNm+-Qxqa/47a/47qa/4+Mx49qa2/325q2a/46qa2/4qa2/4aa2aDCBAqqa2RB=7qa/4RA=qa/42试计算梁的许可荷载[P]。ABm4.1P.6m0P2Cx1y2yzoymm250七、铸铁梁载荷及反力如图(a)所示,横截面形状及尺寸如图(b)所示,已知:Iz=188×106mm4,求该梁的最大拉应力t及最大压应力c,并指出发生在哪个截面及哪些点上(注:无答案)八、已知受力构件内,某点的平面应力状态如图示。试用解析法求斜截面ab上的正应力及剪应力,并在斜截面上画出、的真实方向。九、受力构件内某点的平面应力状态如图示。试求主应力及最大剪应力。十、图示铣刀C的直径D=9cm,切削力Pz=2.2kN,圆截面刀杆AB长L=32cm,许用应力[]=80MPa,Me为绕x轴的外力偶矩,AB处于平衡状态。a6040MPa40MPabxy60020MPaOBACyCyMeMCMx0.6P0.8POMAA面c面结论:kNP2.446050MPa30MPaxy20MPa答:σ1=62.36MPa,σ2=17.64MPa,σ3=0τmax=31.18MPa100kN1m50kNRA=25kNACBDy2=80mm形心Cy1=180mmy图(b)1m1m图(a)3试用第三强度理论,求刀杆AB的直径d。解:十一、下图所示直径为d=20mm的圆截面折杆ABC,已知材料许用应力=170MPa。试用第三强度理论确定折杆AB段的长度L的许可值。十二、AB,CD两杆互相垂直,处在水平面内。C点的集中力为2P及D点的集中力为P,均与刚架平面垂直。已知P=20kN,l=1m,各杆直径相同且d=10cm,[]=70MPa。试按最大剪应力强度理论校核该轴强度。(注:无答案)十三、圆截面杆AB,承受轴向压力P,两端为球铰约束,长L=1.2m,直径d=4cm,弹性模量E=200GPa,比例极限P00MPa,压杆临界应力经验公的常数aPa,b=1.12MPa。试求该压杆的临界力Pcr=?(提示:先求压杆实际柔度及细长杆与中长杆的分界柔度P,再决定选用哪个临界力公式)十四、结构如图所示,A处受P力作用。已知AB杆为圆截面,直径d=40mm,弹性模量E=200GPa,适用欧拉公式的柔度下限值P=90,稳定安全系数n=2,临界应力线性公式的常数a=304MPa,b=1.12MPa。试根据AB杆的稳定性条件,求结构的许可载荷[P]。(提示:先求AB杆轴力N2与P的静力关系;再求AB杆的实际柔度、临界轴力和许可轴力;Mmax=176Nm答:,3.172)(22kNLEIPZCr答:L=mmPd2985163PLyzxlllP2PABC4最后求出许可载荷[P]。)十五、圆截面压杆d=40mm,p=200MPa,s=235MPa,E=200GPa。求:可以用欧拉公式计算临界应力时的最小杆长。十六、选择题1、延伸率公式δ=(L1–L)/L×100%中L1指的是什么,有以下四种答案:(A)断裂时试件的长度;(B)断裂后试件的长度;(C)断裂时试验段的长度;(D)断裂后试验段的长度;正确答案是D2、梁的横截面形状如图所示。圆截面上半部有一圆孔。在xoy平面内作用有正弯矩M。(1)试画出正应力分布图;(2)绝对值最大的正应力位置有以下四种答案:(A)a点(B)b点(C)c点(D)d点正确答案是A十七、填空题1、低碳钢的应力-应变曲线如图2所示。试在图中标出D点的弹性应变e、塑性应变p及材料的伸长率(延伸率)。2、如图3所示,厚度为t的基础上有一方柱,柱受轴向压力P作用,则基础的剪切面面积为,挤压面积为十八、悬臂梁AB长L,抗弯刚度EI,受力P。求:(1)建立该梁的挠曲线近似微分程;(2)写出该梁的边界位移条件。(注:无答案,请查书)2ata2yxPBLA121m300ABCP答:(1)N2=31/2P(2)λ=100(3)N2cr=248.1kN(4)...

1、当您付费下载文档后,您只拥有了使用权限,并不意味着购买了版权,文档只能用于自身使用,不得用于其他商业用途(如 [转卖]进行直接盈利或[编辑后售卖]进行间接盈利)。
2、本站所有内容均由合作方或网友上传,本站不对文档的完整性、权威性及其观点立场正确性做任何保证或承诺!文档内容仅供研究参考,付费前请自行鉴别。
3、如文档内容存在违规,或者侵犯商业秘密、侵犯著作权等,请点击“违规举报”。

碎片内容

工程力学试卷

确认删除?
VIP
微信客服
  • 扫码咨询
会员Q群
  • 会员专属群点击这里加入QQ群
客服邮箱
回到顶部