电脑桌面
添加小米粒文库到电脑桌面
安装后可以在桌面快捷访问

工程造价专业期末考试A卷VIP免费

工程造价专业期末考试A卷_第1页
1/3
工程造价专业期末考试A卷_第2页
2/3
工程造价专业期末考试A卷_第3页
3/3
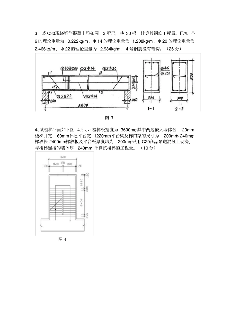
工程造价专业2012-2013学年第一学期期末考试试卷(A)一、单项选择题(10X2=20分)1.关于预算定额,以下表述正确的是()A.预算定额是编制概算定额的基础B.预算定额是以扩大的分部分项工程为对象编制的C.预算定额是概算定额的扩大与合并D.预算定额中人工工日消耗量的确定不考虑人工幅度差2.建设工程定额和生产力发展水平相适应,反映出建设工程中生产消费的客观规律,这体现了建设工程定额的________特点。()A.科学性B.系统性C.统一性D.指导性3、下列费用属于人工费的是()A.装卸费B.材料保管人员工资C.材料采购人员工资D.生产工人劳动保护费4、基础下有混凝土垫层时,则其基槽(基坑)的工作面应()A.在基础底宽的两侧B.在垫层底宽的两侧C.根据具体情况确定D.有垫层时不加工作面5、依据四川省建筑工程预算定额,基槽、坑底宽≦3m,________为沟槽。()A.底长>3倍底宽B.底长≦3倍底宽C.底面积≦150m2D.底长>4倍底宽6、依据四川省建筑工程预算定额,综合脚手架定额房屋层高以________m以内为准。()A.6B.3.6C.5.2D.2.27、依据清单计价规范,梁与柱相连时,梁长算至()A.柱中心线B.轴线C.柱的侧面D.柱外缘线8、一建筑物平面总尺寸45m×16m,其平整场地工程量为________m2。()A.720B.846C.960D.9809、一砖半厚的标准砖墙,计算工程量时,墙厚取值为()A.37厘米B.36厘米C.36.5厘米D.35.5厘米10、现浇钢筋混凝土无梁楼板的混凝土工程量应()A.按板的体积计算B.按板的体积乘以1.22的系数计算C.按板和柱帽体积之和计算D.按不同板厚以水平投影面积计算二、判断题(2X5=10分,填“是”或者“否”)1、平板是指无梁直接由墙支承的板。()2、时间定额和产量定额的关系可以表示为:时间定额×产量定额=1。()3、综合脚手架定额的层高是3.6米。()4、建筑面积是指外墙内边线围成的水平投影面积。()5、有梁楼板的柱高应从柱基上表面算至上一层楼板下表面。()三、简答题(5X2=10分)1、建筑安装工程费用包括哪些项目。2、简述工程造价的特点。四、计算题(60分)1.某五层建筑物的各层平面相同,底层外墙尺寸如图1所示,墙厚均为240(轴线居中,S1、S2、S3、S4为面积区块),试计算建筑面积。(10分)图12.已知:某建筑物基础工程如图2所示,计算砖基础及钢筋混凝土带形砼工程量。(15分)图23、某C30现浇钢筋混凝土梁如图3所示,共30根,计算其钢筋工程量。已知Φ6的理论重量为0.222kg/m,Φ14的理论重量为1.208kg/m,Φ20的理论重量为2.466kg/m,Φ22的理论重量为2.984kg/m,4号钢筋没有弯钩。(25分)图34、某楼梯平面如下图4所示:楼梯板宽度为3600mm,其中两边嵌入墙体各120mm,楼梯井宽160mm,休息平台宽1220mm,平台梁及梯口梁的尺寸为200mm×240mm,梯段长2400mm,梯段板及平台板厚度均为200mm,采用C20商品泵送混凝土现浇,与楼梯连接的墙体厚240mm。计算该楼梯的工程量。(10分)图4

1、当您付费下载文档后,您只拥有了使用权限,并不意味着购买了版权,文档只能用于自身使用,不得用于其他商业用途(如 [转卖]进行直接盈利或[编辑后售卖]进行间接盈利)。
2、本站所有内容均由合作方或网友上传,本站不对文档的完整性、权威性及其观点立场正确性做任何保证或承诺!文档内容仅供研究参考,付费前请自行鉴别。
3、如文档内容存在违规,或者侵犯商业秘密、侵犯著作权等,请点击“违规举报”。

碎片内容

工程造价专业期末考试A卷

确认删除?
VIP
微信客服
  • 扫码咨询
会员Q群
  • 会员专属群点击这里加入QQ群
客服邮箱
回到顶部