电脑桌面
添加小米粒文库到电脑桌面
安装后可以在桌面快捷访问

机房平面布置图VIP免费

机房平面布置图_第1页
1/14
机房平面布置图_第2页
2/14
机房平面布置图_第3页
3/14
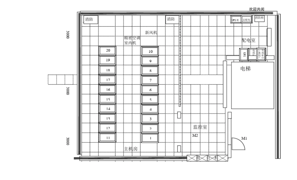
欢迎共阅机房平面布置图迎共阅蠶调30003200320068'6003000320032003O83O3O8室外机300032003200•离地KJCOmm室外机300032003200房UPS,源布置图北§U电源匸L■■■创泱匡xrfssa•・、9^[迤•s-*—i空申二辺-US4£EEM代&冬言:三宕L丄」L」000€000€30003200320030003200320012光纤进线盒18口光线配线架与]号儿柜互18口光线配线架弓1K与柜连3理线架理线架424口配线与1号A45路由架4524口配线架几柜互5666理线架理线架7787防火墙24口配线架4理线架8理线架899924口交换机1010111024口交换机512131411理线架理线架1224口配线架1516171324口配线架61819201核心交换理线架*纤仝换机服务器服务器1524口交换机理线架1624口交换机7光纤交换机17理线架光纤交换机1824口配线架理线架124口配线820架理线架2124口交换22核心交换扩VL24口交换9展模块机以后的业务扩23理线架24理线架24口配线架2518口光线配线架与2号柜互连24口配线架1026理线架2718口光线与3号柜互连24口交换机24口配线架与1号柜互适28配线架24口交换机1124口交换机29理线架理线架理线架203024口配线架与2号柜互连24口配线架24口配线架3124口配线架24口配线架1224口配线架32理线架理线架理线架193324口配线架与3号柜互连24口交换机24口交换机3424口配线架与三号网络机柜E连16口工24口交换机1324口交换机1824口配线架24口配线架35理线架理线架理线架理线架理线架369口光线配线架与四楼互连24口配线架24口配线架3口光线配线架6口光线配线架3724口配线架1424口配线架38理线架理线架1739预留扩展24口交换机24口交换机预留扩展预留扩展4024口交换机1524口交换机41理线架理线架164224口配线架24口配线架注意:机柜正面部署希|:机柜正向注意:机柜正面部署注意:机柜背面部署1号网络机柜2号网络机柜3号网络机柜11、20号机柜C10号机柜机房布线连接图新增UPS后供电原理图新风排风

1、当您付费下载文档后,您只拥有了使用权限,并不意味着购买了版权,文档只能用于自身使用,不得用于其他商业用途(如 [转卖]进行直接盈利或[编辑后售卖]进行间接盈利)。
2、本站所有内容均由合作方或网友上传,本站不对文档的完整性、权威性及其观点立场正确性做任何保证或承诺!文档内容仅供研究参考,付费前请自行鉴别。
3、如文档内容存在违规,或者侵犯商业秘密、侵犯著作权等,请点击“违规举报”。

碎片内容

机房平面布置图

wxg+ 关注
实名认证
内容提供者

该用户很懒,什么也没介绍

相关文档

确认删除?
VIP
微信客服
  • 扫码咨询
会员Q群
  • 会员专属群点击这里加入QQ群
客服邮箱
回到顶部