电脑桌面
添加小米粒文库到电脑桌面
安装后可以在桌面快捷访问

机房平面布置图VIP免费

机房平面布置图_第1页
1/20
机房平面布置图_第2页
2/20
机房平面布置图_第3页
3/20
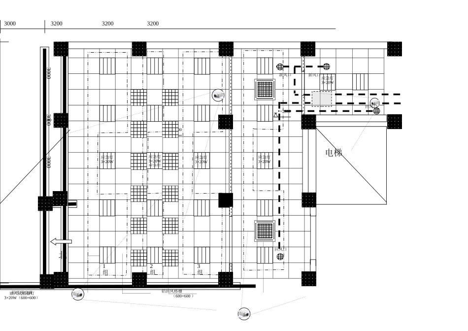
机房平面布置图1组2组3组电梯3000320032003200300030003000北+2800嵌入式格栅灯3×20W(600×600)原吸顶空调+2800铝回风格栅(600×600)应急灯3×20W应急灯3×20W应急灯3×20W应急灯应急灯3×20W应急灯3×20W新风口新风口回风口回风口机房顶面布置图铝合金无孔方板600×600×0.8全钢抗静电地板600×600×35+300+3001级踏步150mm0+150动力翻盖地插座(地板上安装)双三+双二插250V10AUPS翻盖地插座(地板上安装)双三眼250V10AKVM本地延长接口+RJ45口(地板上安装)双口RJ45模块地插安装)网络缆线孔200×250室外机翻盖地插座(地板上安装)双三眼250V16A3000320032003200北全钢出风口600×300机房地面布置图3000320032003200300030003000电梯北门禁照明开关(含应急照明),分8组主机房4组,监控室2组,配电室2组新风机250V10A五眼电源插座墙上安装,离地板300mm室外机壁挂空调电源250V16A墙上安装总配电柜双三+双二翻盖地插250V10A机房动力电源布置图3000320032003200300030003000电梯北备用电源(来自四楼)UPS柜应急照明机房UPS电源布置图双三铜质地插,地板上安装250V16A电源插座网络管线UPS电源管线地板下安装两组机柜之间网络管线,地板下安装UPS电源管线沿墙引至天花板上桥架组间网络要求机柜顶部走线机房UPS电源管线与网络管线布置图3000320032003200300030003000北2根BVR-50㎜2或3×30的铜条3×30㎜2铜排总配电柜综合接地≤1欧姆机房地网布置图3000320032003200300030003000电梯北原中央空调使用区域壁挂式空调使用区域机房空调使用区域精密空调使用区域3000320032003200电梯北双口RJ45插座墙上安装,离地板300mm1口RJ45,1组KVM模块,地插安装网络机柜2口RJ45模块地插安装机房信息点布置图1光纤进线盒18口光线配线架与1号机柜互连18口光线配线架与1号柜互连23路由理线架理线架424口配线架与1号机柜互连445524口配线架5666理线架理线架7787防火墙24口配线架4理线架8理线架8999核心交换24口交换机101011服务器服务器1024口交换机512131411理线架理线架1224口配线架1516171324口配线架618192014理线架光纤交换机1524口交换机理线架1624口交换机7光纤交换机17理线架光纤交换机1824口配线架理线架1924口配线架8以后的业务扩展20理线架21核心交换扩展模块24口交换机2224口交换机923理线架24理线架24口配线架2518口光线配线架与2号柜互连24口配线架1026理线架2718口光线配线架与3号柜互连24口交换机24口配线架与1号柜互连2824口交换机1124口交换机29理线架理线架理线架203024口配线架与2号柜互连24口配线架24口配线架3124口配线架24口配线架1224口配线架1932理线架理线架理线架3324口配线架与3号柜互连24口交换机24口交换机3424口配线架与三号网络机柜互连16口工作区网络连接8口24口交换机1324口交换机1824口配线架24口配线架35理线架理线架理线架理线架理线架369口光线配线架与四楼互连24口配线架24口配线架3口光线配线架6口光线配线架37预留扩展24口配线架1424口配线架17预留扩展预留扩展38理线架理线架3924口交换机24口交换机4024口交换机1524口交换机1641理线架理线架4224口配线架24口配线架注意:机柜正面部署注意:机柜正面部署注意:机柜正面部署注意:机柜背面部署1号网络机柜2号网络机柜3号网络机柜11~20号机柜4~10号机柜机房布线连接图开关2开关1机柜电源连接示意图四楼UPS配电柜机柜122020个20个6个新增UPS后供电原理图新风系统示意图新风机空调机房回风出风排风新风

1、当您付费下载文档后,您只拥有了使用权限,并不意味着购买了版权,文档只能用于自身使用,不得用于其他商业用途(如 [转卖]进行直接盈利或[编辑后售卖]进行间接盈利)。
2、本站所有内容均由合作方或网友上传,本站不对文档的完整性、权威性及其观点立场正确性做任何保证或承诺!文档内容仅供研究参考,付费前请自行鉴别。
3、如文档内容存在违规,或者侵犯商业秘密、侵犯著作权等,请点击“违规举报”。

碎片内容

机房平面布置图

黄金书屋+ 关注
实名认证
内容提供者

爱好英语教学和互联网行业,热爱教育事业,兢兢业业

相关文档

确认删除?
VIP
微信客服
  • 扫码咨询
会员Q群
  • 会员专属群点击这里加入QQ群
客服邮箱
回到顶部