电脑桌面
添加小米粒文库到电脑桌面
安装后可以在桌面快捷访问

PC结构叠合楼板模板及支撑架计算书VIP免费

PC结构叠合楼板模板及支撑架计算书_第1页
1/9
PC结构叠合楼板模板及支撑架计算书_第2页
2/9
PC结构叠合楼板模板及支撑架计算书_第3页
3/9
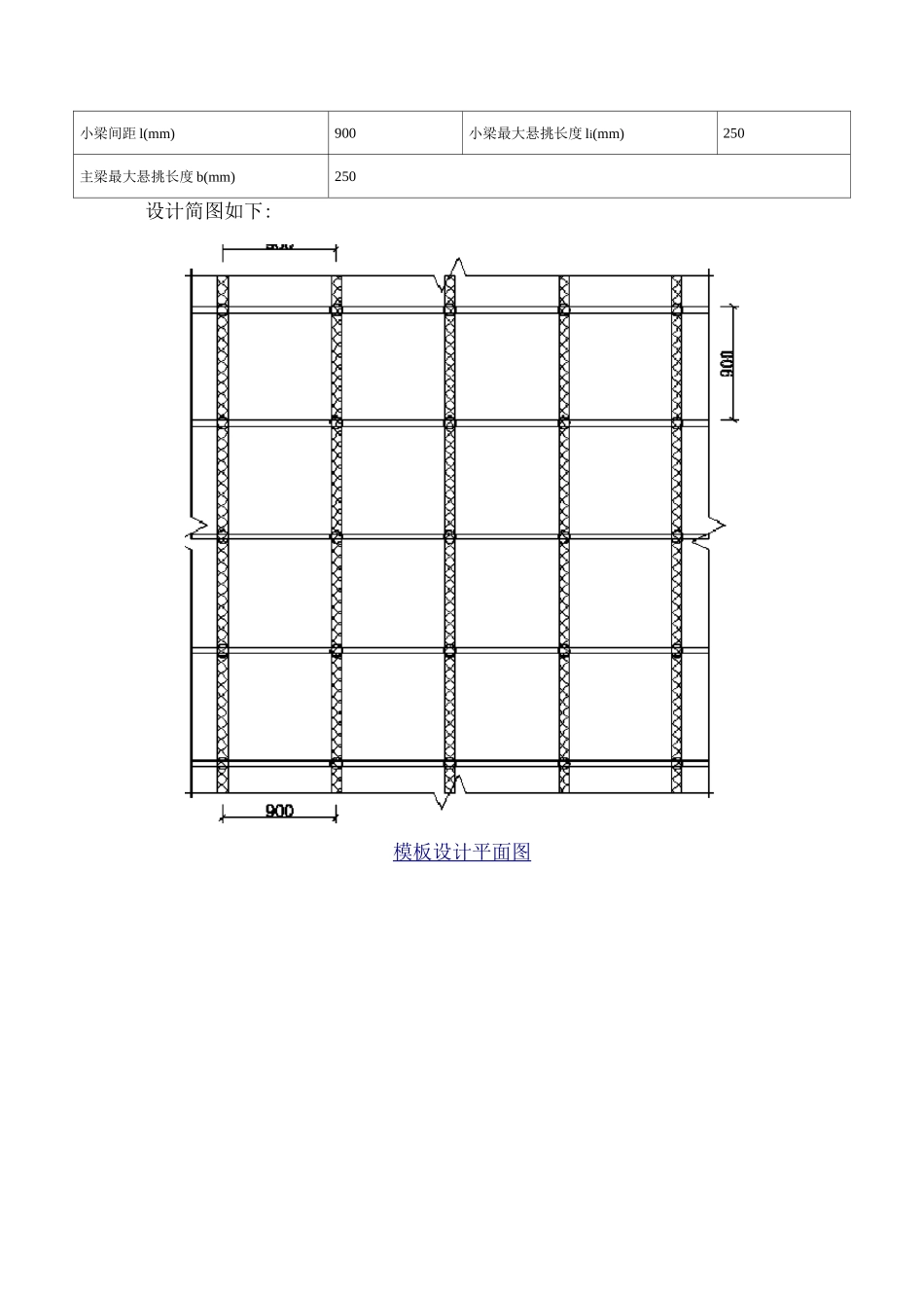
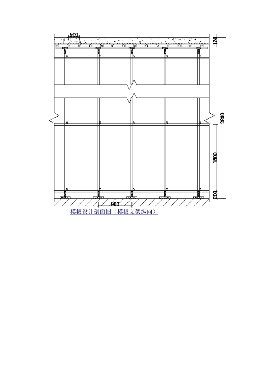
新浇混凝土楼板名称模板支架高度模板支架横向长度二、荷载设模板及其支架自重标准值混凝土自重标准值施工人员及设备荷载标准值模板支拆环境不考虑风荷载三、模板体系设板模板(扣件式)住宅楼层叠合板计算书计算依据:1、《建筑施工模板安全技术规范》JGJ162-20082、《建筑施工扣件式钢管脚手架安全技术规范》JGJ130-20113、《混凝土结构设计规范》GB50010-20104、《建筑结构荷载规范》GB50009-20125、《钢结构设计规范》GB50017-2003、工程属性主梁布置方向平行立柱纵向方向立柱纵向间距la(mm)900立柱横向间距lb(mm)900水平拉杆步距h(mm)1800小梁间距l(mm)900小梁最大悬挑长度li(mm)250主梁最大悬挑长度b(mm)250设计简图如下:模板设计平面图模板设计剖面图(模板支架纵向)模板设计剖面图(模板支架横向)四、面板验算面板类型混凝土叠合板面板厚度t(mm)60面板抗弯强度设计值[f](N/mm2)14.3面板抗剪强度设计值k](N/mm2)1.43面板弹性模量玖N/mm2)30000面板计算方式简支梁楼板面板应搁置在梁侧模板上,本例以简支梁,取1m单位宽度计算。W=bh2/6=900x60x60/6=540000mm3,I=bh3/12=900x60x60x60/12=1.62xl07mm4承载能力极限状态qi—0-9xmax[1-2(Gik+(G2k+G3k)Xh)+1*4xQ1k,1-35(Gik+(G2k+G3k)xh)+1.4x0.7xQ1k]xb=0.9xmax[1.2x(0.1+(24+1.1)x0.13)+1.4x2.5,1.35x(0.1+(24+1.1)x0.13)+1.4x0.7x2.5]x1=6.782kN/mq2=0.9x1.2xG1kxb=0.9x1.2x0.1x1=0.108kN/mp=0.9xl.4xQ]k=0.9xl.4x2.5=3.15kN正常使用极限状态q=(YG(G1k+(G2k+G3k)xh))xb=(1x(0.1+(24+1.1)x0.13))x1=3.363kN/m计算简图如下:根据混凝土设计规范GB50010-2010叠合板正截面受弯承载力M=a1fbx(h0-x/2)=faA1c0ysx=2bh0g=B/(1+f/Ee)b1yscu=0.8/(1+360/(2X105X0.0033))=0.5177x=gbh0=0.5177X(60-15)=23.3mm叠合板混凝土受压区的受弯承载力a]fcbx(h0-x/2)=1X14.3X900X23.3X(45-23.3/2)=10000697.9N・mm=10kN・m叠合板钢筋受拉区的受弯承载力fyAs(h0-x/2)=360X302mm2(45-23.3/2)=3625812N・mm=3.626kN・m因为,叠合板面M=max[M「M2]=max[0.687,0・72]=0・72kN・m12现浇叠合板受拉受压区的受弯承载力为10kN・m,3.626kN・m远大于M=0.72kN・m,所以叠合板本身可承载上部施工荷载^^ax1、强度验算M1=q1l2/8=6.782x0.92/8=0.687kN-mM2=q2L2/8+pL/4=0.108x0.92/8+3.15x0.9/4=0.72kN-mM=max[M],M2]=max[0.687,0.72]=0.72kN・mmax12Qo=M/W=0.72x106/600000=1.2N/mm2<[f]=15N/mm2max满足要求!2、挠度验算vmax=5ql4/(384EI)=5x3.363x9004/(384x30000x16200000)=0.06mmv=0.06mm<[v]=L/250=900/250=3.6mm满足要求!五、小梁验算小梁类型方木小梁截面类型(mm)80x80小梁抗弯强度设计值[f](N/mm2)15.444小梁抗剪强度设计值[T](N/mm2)1.782小梁截面抵抗矩W(cm3)85.333小梁弹性模量E(N/mm2)9350小梁截面惯性矩I(cm4)341.333小梁计算方式二等跨连续梁q1=0.9xmax[1.2(G1k+(G2k+G3k)xh)+1.4Q1k,1.35(G1k+(G2k+G3k)xh)+1.4x0.7xQ1k]xb=0.9xmax[1.2x(0.3+(24+1.1)x0.13)+1.4x2.5,1.35x(0.3+(24+1.1)x0.13)+1.4x0.7x2.5]x0.9=6.298kN/m因此,q1=0.9x1.2x(G1k+(G2k+G3k)xh)xb=0.9x1.2x(0.3+(24+1.1)x0.13)x0.9=3.463kN/mq1=0.9x1.4xQ1kxb=0.9x1.4x2.5x0.9=2.835kN/mq2=0.9x1.2xG1kxb=0.9x1.2x0.3x0.9=0.292kN/mp=0.9x1.4xQ1k=0.9x1.4x2.5=3.15kN计算简图如下:■||"||ii"n,f1牛1J搔-250f250r.1、强度验算M1=0.125qL2+0.125q1L2=0.125x3.463x0.92+0.125x2.835x0.92=0.638kN・m11静1活M2=max[0.07q2L2+0.203pL,0.125q2L2+0.188pL]=max[0.07x0.292x0.92+0.203x3.15x0.9,0.125x0.292x0.92+0.188x3.15x0.9]=0.592kN・mM3=max[q1L12/2,q2L12/2+pL1]=max[6.298x0.252/2,0.292x0.252/2+3.15x0.25]=0.797kN・mMmax=max[M],M2,M3]=max[0.638,0.592,0.797]=0.797kN・mo=Mmax/W=0.797x106/85333=9.335N/mm2口f]=15.444N/mm2满足要求!2、抗剪验算V1=0.625q1L+0.625q1L=0.625x3.463x0.9+0.625x2.835x0.9=3.543kN11静1活V2=0.625q2L+0.688p=0.625x0.292x0.9+0.688x3.15=2.331kNV3=max[q]L],q2L]+p]=max[6.298x0.25,0.292x0.25+3.15]=3.223kNVmax=max[V],V2,V3]=max[3.543,2.331,...

1、当您付费下载文档后,您只拥有了使用权限,并不意味着购买了版权,文档只能用于自身使用,不得用于其他商业用途(如 [转卖]进行直接盈利或[编辑后售卖]进行间接盈利)。
2、本站所有内容均由合作方或网友上传,本站不对文档的完整性、权威性及其观点立场正确性做任何保证或承诺!文档内容仅供研究参考,付费前请自行鉴别。
3、如文档内容存在违规,或者侵犯商业秘密、侵犯著作权等,请点击“违规举报”。

碎片内容

PC结构叠合楼板模板及支撑架计算书

您可能关注的文档

确认删除?
VIP
微信客服
  • 扫码咨询
会员Q群
  • 会员专属群点击这里加入QQ群
客服邮箱
回到顶部