电脑桌面
添加小米粒文库到电脑桌面
安装后可以在桌面快捷访问

公路工程质量管理体系和质量管理制度(同名18293)VIP免费

公路工程质量管理体系和质量管理制度(同名18293)_第1页
1/37
公路工程质量管理体系和质量管理制度(同名18293)_第2页
2/37
公路工程质量管理体系和质量管理制度(同名18293)_第3页
3/37
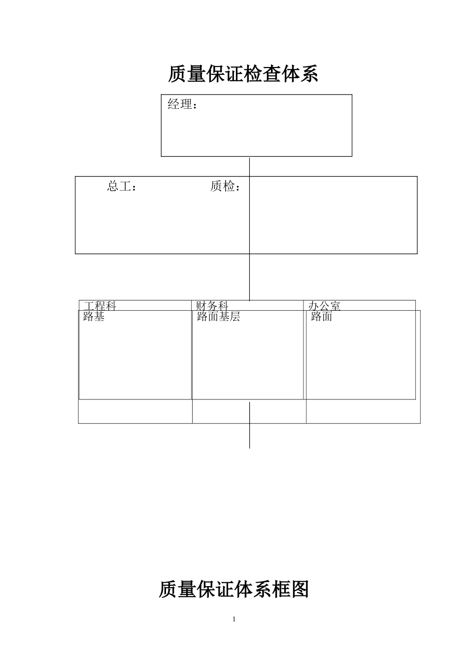
质量保证检查体系质量保证体系框图工程科财务科办公室路基路面基层路面1总工:质检:经理:2施工保证体系制度保证体系组织保证体系质量方针:百年大计,质量第一质量目标:单位工程合格率100%质量领导小组:项目经理任组长,项目总工程师、质量检查工程师为成员组织保证体系质量领导小组做好材料进场试验,选配合比、试件试验、检查、送检。组织技术交底和落实,进行质量教育,施工测量精确,确保按图、按规范施工,组织隐蔽工程检查、预验和验收。安排施工计划。试验员安全质量科施工技术科进行日常质量管理、检查、评比、综合各部门质量活动、信息反馈。供应合格的材料及构件,提供质量证明,搞好材料的限额发放、管理。办公室物资科计划财务科根据质量状况监督资金运用。负责环境保护工作。3分部工程质量检查。分项工程质量检查。工序交接质量控制。工程质量自检控制。施工技术、质量保证措施交底。施工工艺质量控制中间产品质量控制工程竣工文件的编制。工程竣工验收。施工现场环境质量的检测。编制施工组织设计及工程进度计划。选用技术管理人员及合格技术工人。施工机械设备,试验仪器质量性能的检测。施工用原材料,预制构件半成品质量检验。竣工阶段施工准备阶段施工阶段施工保证体系竣工质量自检。4质量信息管理制度质量事故报告、调查和处理制度成品保护制度检验批隐蔽工程检查制度施工过程质量检查制度技术交底制度施工图现场核对制度施工测量复核制度试验工程师岗位质量责任制机械设备员岗位质量责任制质量检查工程师岗位责任制工程科长岗位质量责任制项目总工程师岗位质量责任制副经理岗位质量责任制项目经理岗位质量责任制岗位责任制质量管理制度岗位责任制生产班组长岗位质量责任制领工员岗位质量责任制开工报告审批制度质量岗位责任制为进一步加强工程质量管理,规范质量行为,明确规定各级领导者、职能部门和生产工人在质量管理过程中应负的责任。做到“管理质量,人人有责”,是每个职工都认真遵守各项质量管理制度,履行自己的质量职责,杜绝质量事故的发生,努力提高工程质量水平,实现创优目标。特制订以下质量责任制。一、项目经理质量责任制1、认真宣传、贯彻、执行党和国家质量生产的方针政策及上级有关规定指示,结合施工生产实际情况制定本项目部贯彻实施措施,并检查执行情况。2、认真贯彻“管生产必须管质量”的原则,从组织管理指挥生产方面对质量生产负第一责任,把质量工作同生产工作结合起来.坚持“四亲自”、“五同时”、“四不放过”的原则。3、认真执行干部“五定三率”考核标准,坚持每旬组织一次质量检查,每月召开一次质量生产联席会议。研究解决质量生产及质量上的问题。深入施工现场,检查指导工作。对质量生产实行面对面的领导,狠抓规章制度的落实。4、织编制和审核施工组织设计、施工方案质量措施的制定,科学指导施工。5、对生产情况,经常对干部、职工进行质量教育严格质量管理狠抓员工“两违”,增强全员遵章守纪的自觉性。6、量方面发生事故,要求亲自主持事故分析会议,并按照“四不放过”的原则,查找原因,落实责任,制定防范措施。二、总工程师岗位责任I、对工程项目中的质量生产负技术领导责任。2、严格执行质量生产技术规程、规范、标准,主持项目部质量技术措施交底工作。3、组织编制施工组织设计的制定工作、质量技术措施,保证其可行性与针对性,并检查监督,落实工作.4、及时组织使用新材料、新技术、新设备、新工艺人员的质量技5术培训。认真执行质量技术措施与质量操作规程。5、主持质量防护设施和设备的验收工作。6、参加质量生产检查,从技术上分析施工中不合格质量因素产生的原因,提出改进措施。三、项目副经理质量生产的职责I、协助经理负责项目部施工质量生产。2、组织各作业队队长、班长、技术员等按公司、项目部生产下达的月生产计划,质量措施,下达旬(阶段性)生产计划及质量措施3、负责督促检查技术员、作业队的工作,检查技术交底,作业指导书,质量技术操作规范及质量措施的贯彻执行情况。4、执行质量巡回检查制度,每旬组织一次质量大检查。对检查出的问题作以记录,制定指导性整改措施,定人限时落...

1、当您付费下载文档后,您只拥有了使用权限,并不意味着购买了版权,文档只能用于自身使用,不得用于其他商业用途(如 [转卖]进行直接盈利或[编辑后售卖]进行间接盈利)。
2、本站所有内容均由合作方或网友上传,本站不对文档的完整性、权威性及其观点立场正确性做任何保证或承诺!文档内容仅供研究参考,付费前请自行鉴别。
3、如文档内容存在违规,或者侵犯商业秘密、侵犯著作权等,请点击“违规举报”。

碎片内容

公路工程质量管理体系和质量管理制度(同名18293)

文章天下+ 关注
实名认证
内容提供者

各种文档应有尽有

相关文档

确认删除?
VIP
微信客服
  • 扫码咨询
会员Q群
  • 会员专属群点击这里加入QQ群
客服邮箱
回到顶部