电脑桌面
添加小米粒文库到电脑桌面
安装后可以在桌面快捷访问

防雷及接地工程量计算VIP免费

防雷及接地工程量计算_第1页
1/7
防雷及接地工程量计算_第2页
2/7
防雷及接地工程量计算_第3页
3/7
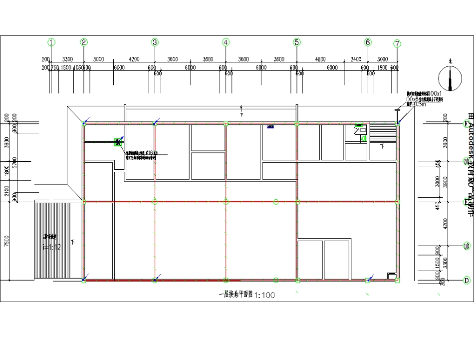
防雷及接地工程量计算实例•目建筑物防雷工程下图所示•建筑物接地说明:•1.接地系统接地极埋入地坪下-1.1米接地极数量根据现场实测进行调整;接地系统电阻以不大于1.0欧姆为准。•2.利用剪力墙暗柱内两根主钢筋(φ16以上)作接闪引下线,所有接地线、接地连线及接闪引下线均需焊接。•3.接闪引下线在外墙距室外地坪下1.1米处予埋100X100X6镀锌钢板,并与暗柱内两根主钢筋焊接(∅16以上)(详见图中位置)•4.所有进出建筑物的上下水管道、采暖管道及电源进线管道均与接地网相连。•5.所有配电箱,电视,电话分线箱等金属外壳均应接地。未标注的接地线均为25X4的镀锌扁钢。•6.电缆桥架应可靠接地。将桥架的端部用16mm²软铜线连接起来,与总接地干线相连。设计室外地坪-0.300m,一层地坪标高0.000m,屋面标高3.600m。接地极采用L50*5热镀锌角钢制作,L=2.5m,共3根,具体位置详见图纸。5-7轴/D-F轴屋面标高为4.5米,2-5轴/D-F轴标高为3.6米。计算过程:1、接地极(板)制作、安装(1)L=50*50*5热镀锌角钢接地极,L=5M3根(2)100*100*6热镀锌钢板接地板,4块(建筑物四角)(3)接地网:〔(3+4.2+3.6+3.6+3.6+3.6+4.8+2.4+3.0)X3+(7.5+2.1+1.8+3.6)X5〕X1.039=177.05米(4)柱主筋与圈梁钢筋焊接(计算钢筋网交叉)15处2、接地母线敷设(1)所有外墙引下线处-40*4镀锌扁铁(户外接地母线)1.5mX6=9m*1.039=9.35m(2)局部等电位扁铁:-25*4镀锌扁铁(户内接地母线)0.7m*3处=2.1*1.039=2.18m(3)屋面-40*4镀锌扁铁敷设(5.4+2.1+7.5)*1.039=15.585m3、接地跨接线安装(1)卫生间等电位联接4处4、等电位接地端子箱、等电位接地接线盒安装(1)总等电位端子箱1台(2)局部等电位3台5、避雷针制作、避雷针安装无6、电子设备防雷装置安装比如:像配电箱内的浪涌保护器安装7、半导体少长针消雷装置安装8、避雷引下线敷设利用建筑物内主筋做接地引下线(3.6-1.1)*4+(4.5-1.1)*2=16.8m(每一柱子内按焊接两根主筋考虑,如果焊接主筋数超过两根时,可按比例调整)9、断接卡子制作安装按设计规定装设的断接卡子数量计算4套11、避雷网安装水平(3.9+3.3+3.6*4+4.8+2.4+3)*2+(5.4+2.1+7.5)*3=108.6m竖向(4.5-3.6)*2=1.8m合计(108.6+1.8)*1.039=114.7m

1、当您付费下载文档后,您只拥有了使用权限,并不意味着购买了版权,文档只能用于自身使用,不得用于其他商业用途(如 [转卖]进行直接盈利或[编辑后售卖]进行间接盈利)。
2、本站所有内容均由合作方或网友上传,本站不对文档的完整性、权威性及其观点立场正确性做任何保证或承诺!文档内容仅供研究参考,付费前请自行鉴别。
3、如文档内容存在违规,或者侵犯商业秘密、侵犯著作权等,请点击“违规举报”。

碎片内容

防雷及接地工程量计算

金钥匙书屋+ 关注
实名认证
内容提供者

热爱教育事业,爱好互联网行业

相关文档

确认删除?
VIP
微信客服
  • 扫码咨询
会员Q群
  • 会员专属群点击这里加入QQ群
客服邮箱
回到顶部