电脑桌面
添加小米粒文库到电脑桌面
安装后可以在桌面快捷访问

2025年通用 施工总平面图VIP免费

2025年通用  施工总平面图_第1页
1/1
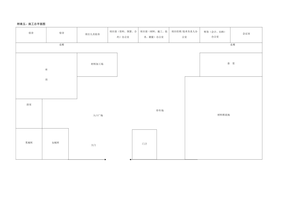
附表五:施工总平面图宿舍宿舍项目人员宿舍项目部(资料、预算、合约)办公室项目部(材料、施工、技术、测量)办公室项目经理/技术负责人办公室财务(会计、出纳)办公室会议室走廊走廊库房材料加工场食堂材料堆放地浴室停车场入口广场男厕所女厕所大门门卫

1、当您付费下载文档后,您只拥有了使用权限,并不意味着购买了版权,文档只能用于自身使用,不得用于其他商业用途(如 [转卖]进行直接盈利或[编辑后售卖]进行间接盈利)。
2、本站所有内容均由合作方或网友上传,本站不对文档的完整性、权威性及其观点立场正确性做任何保证或承诺!文档内容仅供研究参考,付费前请自行鉴别。
3、如文档内容存在违规,或者侵犯商业秘密、侵犯著作权等,请点击“违规举报”。

碎片内容

2025年通用 施工总平面图

您可能关注的文档

静心书店+ 关注
实名认证
内容提供者

专注于各类考试试卷和真题。

确认删除?
VIP
微信客服
  • 扫码咨询
会员Q群
  • 会员专属群点击这里加入QQ群
客服邮箱
回到顶部