电脑桌面
添加小米粒文库到电脑桌面
安装后可以在桌面快捷访问

外墙装修吊篮工程施工方案VIP免费

外墙装修吊篮工程施工方案_第1页
1/7
外墙装修吊篮工程施工方案_第2页
2/7
外墙装修吊篮工程施工方案_第3页
3/7
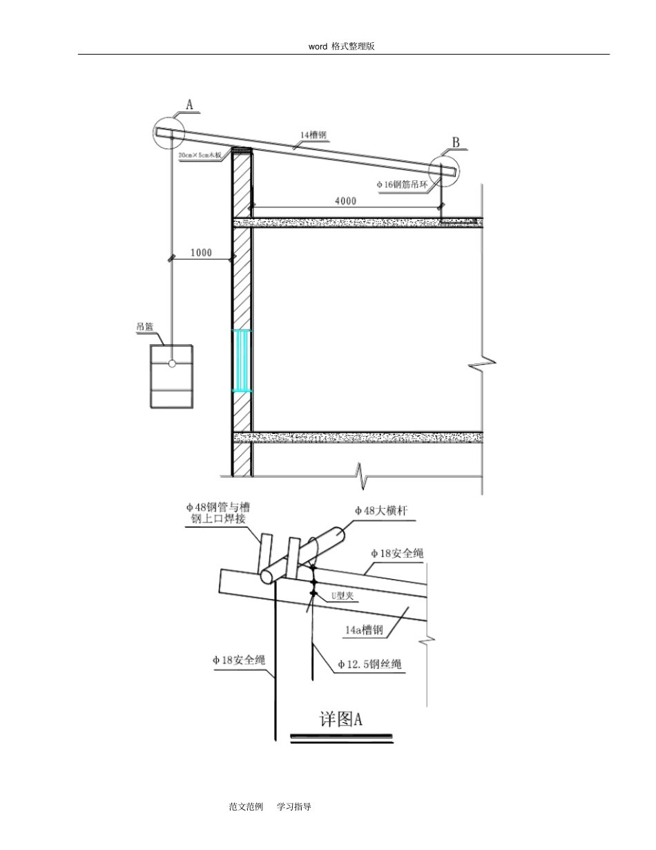
word 格式整理版范文范例学习指导外墙装饰吊篮施工方案一、工程概况:本工程为某小区住宅楼工程,建筑面积为8632 ㎡,长 107 米、宽 11.5 米、高 18.45 米。外墙外保温、涂料装修均采用吊篮进行施工。二、吊篮施工方案的选择吊篮脚手架由租赁站提供,吊篮均采用组合式定型吊篮,单组吊篮长度为3米及 2 米两种,宽度0.8 米,两侧分别配备两组护墙轮,起吊设备为天津产津久牌手扳葫芦,并配备防坠装置( 保安器 ) 。吊蓝脚手架安装完毕后,由项目自检合格后,报安全检查科验收合格后方可使用。屋面四周均有女儿墙,故挑杆下墙体垫长 800mm~1000mm,宽 200 ㎜,厚 50mm木板。三、吊篮脚手架的搭设(必须由专业架子工搭设)1、屋面挑杆的做法,挑杆为140 ㎜×6 ㎜槽钢,距槽钢前端20 ㎝处分别用 2根长 30 ㎝的钢管(φ 48 壁厚 3.5mm)焊做 20 ㎝宽槽口,距槽钢后端20 ㎝处,焊1 根长 30 ㎝的钢管(φ 48 壁厚 3.5mm)与大横杆连接。挑杆伸出女儿墙1 米,挑杆设置为外高里低,尾部用一根横杆穿入预埋环内,槽钢尾部将其尾部背住( 也就是背杆 ) ,然后用钢管将每个吊架上的挑杆连成一个整体,挑杆端头均用木板铺垫。2、屋面吊环采用φ 16 钢筋制作,其基本形状为倒U型,吊环出屋面板长度为650mm~700mm,上口宽度为 150mm,吊环锚入现浇砼屋面板内50cm。3、连接:用钢丝绳穿入手扳葫芦,挑梁自钢丝绳多绕不少于3 圈,并用 3 个绳卡扣牢,绳卡方向正确,手扳葫芦挂钩挂在吊环(吊篮)上。4、调整要求挑梁伸出长度与吊篮上吊环距离相等,钢丝绳竖直向下,手扳葫芦吊钩位于吊篮中间位置,以确保吊篮升降后平稳不向内和墙外倾斜。外墙装饰用的5、钢丝绳卡规定要求布置卡牢,为防止断绳,每个手扳葫芦采用一根φ12.5的钢丝绳做保险安全绳,安全绳一头与吊篮的吊环连接,另一头与屋面上的预埋环连接,操作时屋面设有专人监护。吊篮安装图:word 格式整理版范文范例学习指导word 格式整理版范文范例学习指导6、吊架在使用前必须通过项目经理、专职安全员及专职施工人员的检查并履行签字手续,均合格后方可投入使用。吊篮在正常使用过程中,专职安全员与专职质检员必须做到经常性的跟踪检查,予以及时发现和处理不安全隐患和不安全行为,要把安全隐患时时有效地控制住,确保操作人员的作业安全。7、吊架在使用过程中用HSS-3.0 型手扳葫芦吊起施工( 钢丝绳直径不小于12.5mm),其主要技术参数如下:额定荷载:...

1、当您付费下载文档后,您只拥有了使用权限,并不意味着购买了版权,文档只能用于自身使用,不得用于其他商业用途(如 [转卖]进行直接盈利或[编辑后售卖]进行间接盈利)。
2、本站所有内容均由合作方或网友上传,本站不对文档的完整性、权威性及其观点立场正确性做任何保证或承诺!文档内容仅供研究参考,付费前请自行鉴别。
3、如文档内容存在违规,或者侵犯商业秘密、侵犯著作权等,请点击“违规举报”。

碎片内容

外墙装修吊篮工程施工方案

您可能关注的文档

确认删除?
VIP
微信客服
  • 扫码咨询
会员Q群
  • 会员专属群点击这里加入QQ群
客服邮箱
回到顶部