电脑桌面
添加小米粒文库到电脑桌面
安装后可以在桌面快捷访问

分体空调器电路(wc)VIP免费

分体空调器电路(wc)_第1页
1/6
分体空调器电路(wc)_第2页
2/6
分体空调器电路(wc)_第3页
3/6
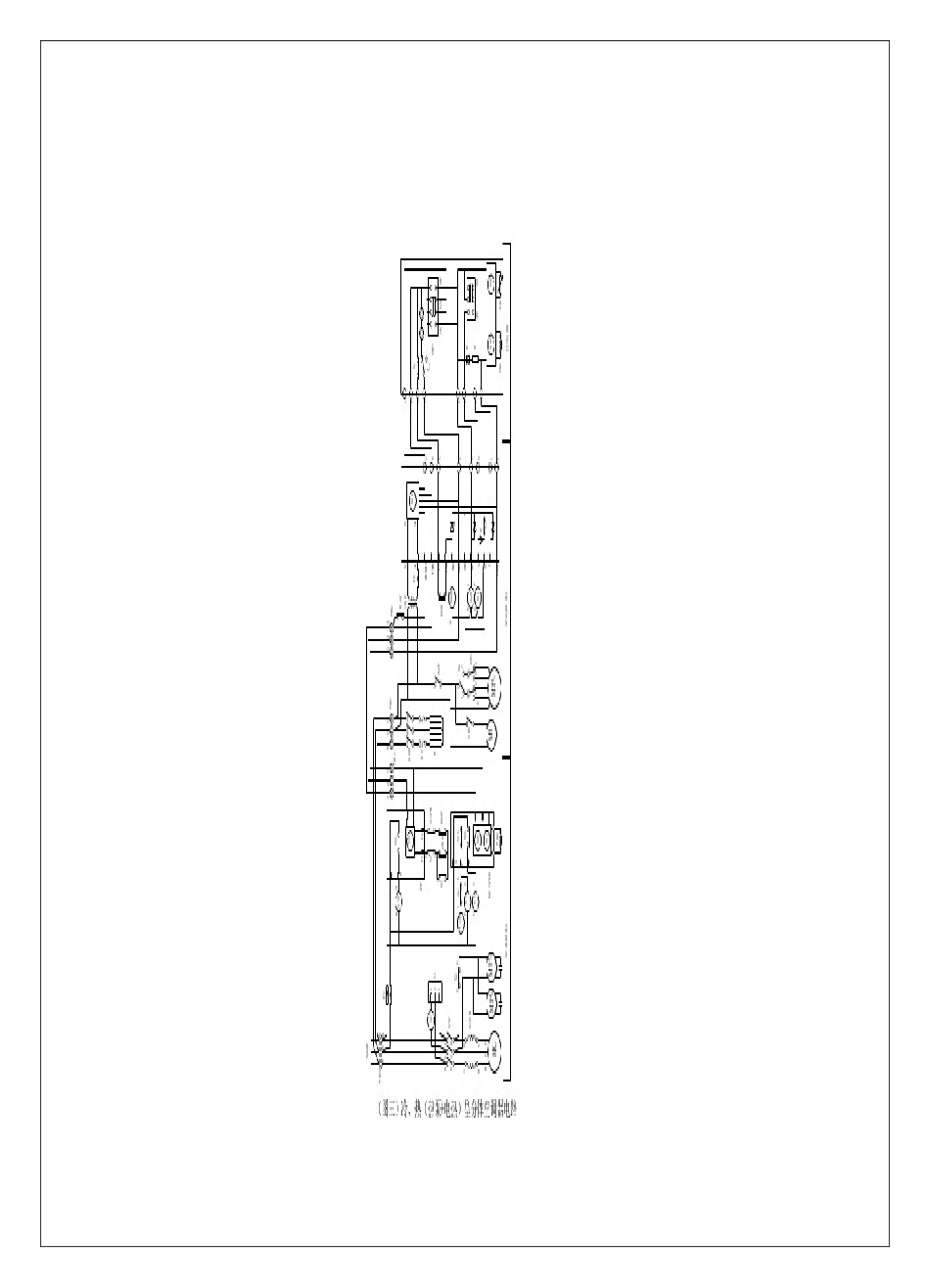
分体空调器电路一、分体空调器的基本电路分体空调器的基本电路如(图一)所示。二、分体空调器电路解说分体空调器由室内机组和室外机组组成。室内、外机组之间由制冷剂管道和电源线、控制线联接。分体壁挂式空调器的电路如(图二)所示。分体式空调器的室内机组有壁挂式、落地式、立柜式等多种形式。电源为单相(220V,50Hz)和三相(380V,50Hz)两种。压缩机为全封闭旋转式,冷凝器为风冷式。采用遥控控制或手动控制。分体空调器的室内、外机组结构不同。室内机组有送风风扇和热交换器,而室外机组有压缩机、热交换器和排风风机。所以室内机组与室外机组的电路也不同。安装时应把电源线接线端A和N(火线与中性线)及控制线1、2、3、4用规定的某种规格导线相连接(按电流大小选择导线及开关)。室外机组的单相全封闭式旋转压缩机采用PSC启动方式(电容运转分相启动方式)。室内、外机组的风扇电机均用运转电容器相连接以改善风扇电机性能。温度控制器采用电子式,由室温传感器(热敏电阻)感知并传递温度信号到集成电路IC控制板,控制压缩机的开停。室内风扇的高、中、低三速由开关进行切换。三、分体空调器电路原理(图三)为冷热(热泵加电热)型分体式空调器的电路图。其电路原理如下:1、制冷运转:接通电源:(1)遥控开关端子3—1间DC12V(2)X4励磁→X4的a接点(5—3)接通52F励磁→52F的a接点(3—5)接通→送风切换开关SW2→(1)在“强”位置→X1励磁→X1接点(5—3)接通→MF1接通→强风(2)在“弱”位置→X1不励磁→X1接点(5—1)接通→MF1接通→弱风DR接通→运转指示灯亮;SW4接通→ML接通→摇风风机工作。室温上升:X12励磁→X12的a接点接通→控制线2—1间DC12V→X14励磁→X14的a接点接通→52C励磁→52C的a接点(U—R、V—S、W—T)接通→MC接通→压缩机启动运转。室温下降且低于设定温度:X12不励磁→X12的a接点断开→控制线2—1间DC0V→MC断开→压缩机停止运转,但送风机继续运转。2、制热运转接通电源:(1)遥控开关端子3—1间DC12V(2)X4励磁→X4的a接点(5—3)接通将运转切换开关SW1置于“暖”位置;控制线3—1间DC12V→X15励磁→X15的a接点接通→(1)21S4励磁→换向四通阀换向(2)X3励磁→X3的a接点(3—5)接通→26S短路防止冷风压力开关63F:(1)制冷系统管路压力在0.7MPa以下→63F接通→X11励磁→X11的b接点断开→88H、52F、X1不励磁→H、MF1关闭;(2)制冷系统管路压力在1.5MPa以上→63F关闭→X11不励磁→X11的b接点接通→88H、52F、X1励磁→H、MF1工作。DR接通→运转指示灯亮;SW4接通→ML接通→摇风风机工作。52F励磁→52F的a接点(3—5)接通→送风切换开关SW2→(1)在“强”位置→X1励磁→X1接点(5—3)接通→MF1接通→强风(2)在“弱”位置→X1不励磁→X1接点(5—1)接通→MF1接通→弱风室温下降(温差2℃以上):X12不励磁→X12的b接点接通→控制线2—1间DC12V→X14励磁→X14的a接点接通→52C励磁→52C的a接点(U—R、V—S、W—T)接通→MC接通→压缩机启动运转。电热器供热:X13励磁→X13的a接点接通→88H励磁→88H的a接点(9—6、8—5、7—4)接通→H接通→电热器供热。压缩机热泵运转+电热供热:室温低于设定温度(温差2℃以内):X13不励磁→X13的a断开→88H不励磁→88H的a接点(9—6、8—5、7—4)断开→H不接通电热器不供热→压缩机热泵运转供热。室温上升并高于设定温度:X12励磁→X12的b接点断开→控制线2—1间DC0V→X14不励磁→X14的a接点断开→52C不励磁→52C的a接点(U—R、V—S、W—T)断开→MC不接通→压缩机不运转→制冷系统管路压力在0.7MPa以下→63F接通→MF1关闭防止冷风。3、化霜运转供热运转50min以上,室内制冷管路3℃感知→X16励磁→X16的a接点接通→X2励磁→(1)X2的b接点(6—2)断开→MF2、MF3不运转(3)X2的b接点(5—1)断开→21S4不工作制冷系统管路压力在0.7MPa以下→63F接通→X11励磁→X11的b接点断开→88H、52F、X1不励磁→H、MF1关闭防止冷风→室外管路温度8℃→化霜运转15min→化霜完毕→供暖运转。四、分体空调器的遥控器自动控制电路分体空调器的遥控器自动控制电路如(图四)所示。分体空调器的...

1、当您付费下载文档后,您只拥有了使用权限,并不意味着购买了版权,文档只能用于自身使用,不得用于其他商业用途(如 [转卖]进行直接盈利或[编辑后售卖]进行间接盈利)。
2、本站所有内容均由合作方或网友上传,本站不对文档的完整性、权威性及其观点立场正确性做任何保证或承诺!文档内容仅供研究参考,付费前请自行鉴别。
3、如文档内容存在违规,或者侵犯商业秘密、侵犯著作权等,请点击“违规举报”。

碎片内容

分体空调器电路(wc)

文章天下+ 关注
实名认证
内容提供者

各种文档应有尽有

相关文档

确认删除?
VIP
微信客服
  • 扫码咨询
会员Q群
  • 会员专属群点击这里加入QQ群
客服邮箱
回到顶部