电脑桌面
添加小米粒文库到电脑桌面
安装后可以在桌面快捷访问

36m落地扣件式脚手架计算书VIP免费

36m落地扣件式脚手架计算书_第1页
1/10
36m落地扣件式脚手架计算书_第2页
2/10
36m落地扣件式脚手架计算书_第3页
3/10
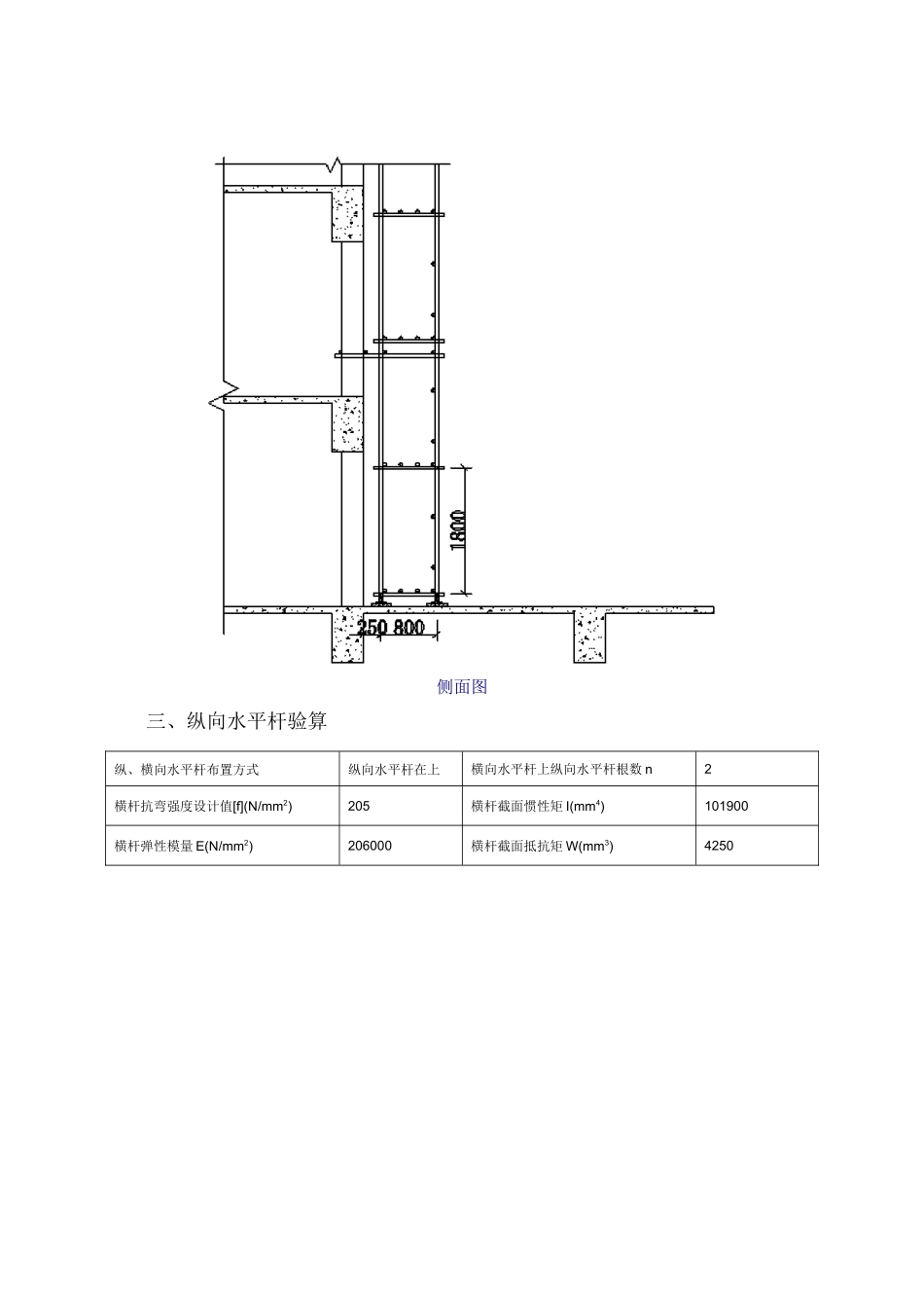
扣件式脚手架计算书计算依据:1、《建筑施工脚手架安全技术统一标准》GB51210-20162、《建筑施工扣件式钢管脚手架安全技术规范》JGJ130-20113、《建筑结构荷载规范》GB50009-20124、《钢结构设计规范》GB50017-20035、《建筑地基基础设计规范》GB50007-2011、脚手架参数卸荷设置无结构重要性系数 γ01脚手架安全等级II 级脚手架搭设排数双排脚手架脚手架钢管类型Φ48×2.8脚手架架体高度 H(m)36立杆步距 h(m)1.8立杆纵距或跨距 la(m)1.5立杆横距 lb(m)0.8内立杆离建筑物距离 a(m)0.25双立杆计算方法按双立杆受力设计双立杆计算高度(m)10双立杆受力不均匀系数 KS0.6、荷载设计脚手架设计类型装修脚手架脚手板类型竹芭脚手板脚手板自重标准值 Gkjb(kN/m2)0.1脚手板铺设方式2 步 1 设密目式安全立网自重标准值Gkmw(kN/m2)0.01挡脚板类型木挡脚板栏杆与挡脚板自重标准值 Gkdb(kN/m)0.17挡脚板铺设方式2 步 1 设每米立杆承受结构自重标准值gk(kN/m)0.129装修脚手架作业层数 nzj2装修脚手架荷载标准值 Gkzj(kN/m2)2地区浙江温州市安全网设置全封闭基本风压 ω0(kN/m2)0.35风荷载体型系数 μs1风压高度变化系数 μz(连墙件、单立杆、0.81,0.81,0.904双立杆稳定性)风荷载标准值 ωk(kN/m2)(连墙件、单立 杆、双立杆稳定性)0.283,0.283,0.316计算简图:立面图侧面图三、纵向水平杆验算纵、横向水平杆布置方式纵向水平杆在上横向水平杆上纵向水平杆根数 n2横杆抗弯强度设计值[f](N/mm2)205横杆截面惯性矩 I(mm4)101900横杆弹性模量 E(N/mm2)206000横杆截面抵抗矩 W(mm3)4250a= «1 向旅平杆在上时,摘向水 平杆上徽向水平杆根戮为不包含 两«水平杆,切本图例为 2・纵、横向水平杆布置承载能力极限状态q=1.2×(0.031+Gkjb×lb/(n+1))+1.4×Gk×lb/(n+1)=1.2×(0.031+0.1×0.8/(2+1))+1.4×2×0.8/(2 +1)=0.816kN/m正常使用极限状态q'=(0.031+Gkjb×lb/(n+1))=(0.031+0.1×0.8/(2+1))=0.058kN/m计算简图如下:1、抗弯验算Mmax=0.1qla2=0.1×0.816×1.52=0.184kN·mσ=γ0Mmax/W=1×0.184×106/4250=43.206N/mm2≤[f]=205N/mm2满足要求!2、挠度验算姗立杆横跑!*纵向水平杆«向水平杆νmax=0.677q'la4/(100EI)=0.677×0.058×15004/(100×206000×101900)=0.094mmν =0.094mm≤[ν]=min[l /150,10]=min[1500/150,10]=10mm maxa满足要求!3、支座反力计算承载能力极限状态R =1.1ql =1.1×0.816×1.5=1.347...

1、当您付费下载文档后,您只拥有了使用权限,并不意味着购买了版权,文档只能用于自身使用,不得用于其他商业用途(如 [转卖]进行直接盈利或[编辑后售卖]进行间接盈利)。
2、本站所有内容均由合作方或网友上传,本站不对文档的完整性、权威性及其观点立场正确性做任何保证或承诺!文档内容仅供研究参考,付费前请自行鉴别。
3、如文档内容存在违规,或者侵犯商业秘密、侵犯著作权等,请点击“违规举报”。

碎片内容

36m落地扣件式脚手架计算书

您可能关注的文档

最好的沉淀+ 关注
实名认证
内容提供者

行业文档

相关文档

确认删除?
VIP
微信客服
  • 扫码咨询
会员Q群
  • 会员专属群点击这里加入QQ群
客服邮箱
回到顶部