电脑桌面
添加小米粒文库到电脑桌面
安装后可以在桌面快捷访问

矩形给水箱规范标准图集完整编辑版VIP免费

矩形给水箱规范标准图集完整编辑版_第1页
1/43
矩形给水箱规范标准图集完整编辑版_第2页
2/43
矩形给水箱规范标准图集完整编辑版_第3页
3/43
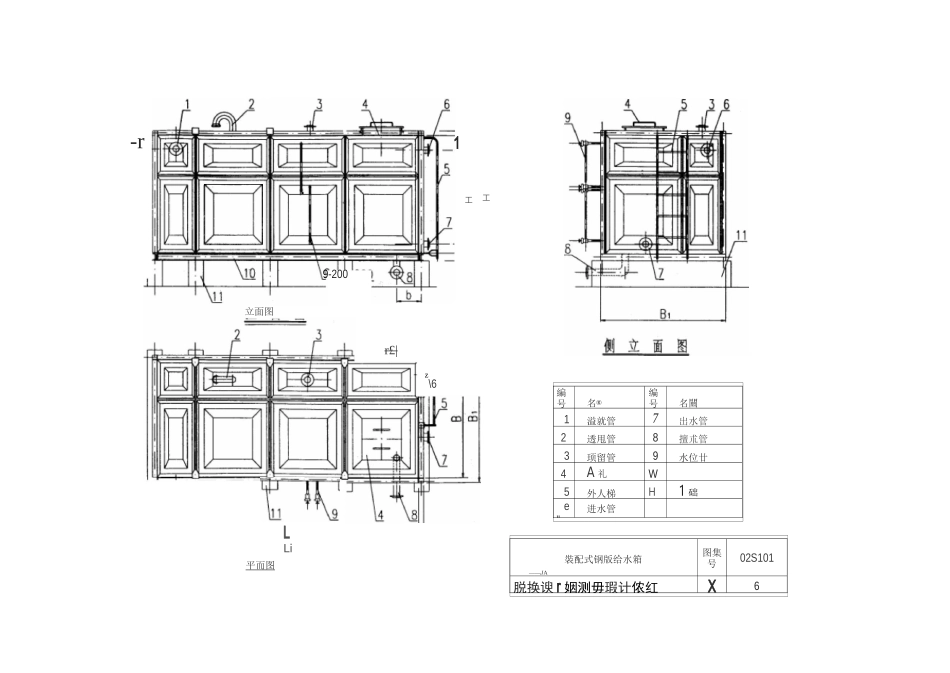
矩形nt 准部匚中华人民扶利国建设部 iM中龊筑东戕计研燃異行 E 期二(X)二年六月一日给水箱lit 堆文号建质[2002]1W 号I 号 GJBA565图集号 02S101目 J图名 J目录1-29 名拒旳给水箱选馬芸(亠)』二)页40—413-5驟给水離管及附件鑼图42装紀式钢板峪水箱’進用尿标堆札基础安装图6-HW 矩形绑熾本休图’林料叢43组合式不锈钊板给梆(町能用札桥准札基础麥装图 12-15话加 5 如了加 9 號歸水箱本体图肩欄44-4&装配式 SMC 给水箱 W,标准仏基磁安装图16-22皿卅诚 1 卅 1 誠水箱本体■图,##*49-52组合式不齣胭给水箱起用札基蔽装图23-261 引 d18 收械矩形龄水箱本体團申料表53-55装配式據養胡齢水箱越用表/徘板建础安荒團v-y曲旳加觎给水箱本体町牌農56-58NE508 内囑涂钢板給水篷选用表〒基础安装图 32-34黠给水箱本体图申欄59-61舲式不縮槪给水摘⑴俺用蹴标嗾,基蔽鼬35-382S#27?29?3ll矩形给水箱本体風材料表62-64拒般 7 牖选用網39如 3 也却砂水箱本体图,41065-67目录囲集号 i02S101审樹 M 我剧眄律瑕讯〃聂—~~i―主编单也竟责人鎌单位技柿责人技术审定人设计负贵人1.1 瞬建设部觀[ma]W 号快于印发(标推酣翩琲计划)的通和・拯国家翰标餓计<#形给水和S151(-).蟻配端水齟脳装酣 92SS17J.(冲应板駄艇用嫦即gasi 鳩禺集的觀 iMHHhLHismom*闻 i 溷U(二次财醴卫生腕}GB1?除-洌人1.4 性话觥嫦配水齢躺歸蒋的始性枷脚0^17219-1998,1.5 试卿般體料梯-第-部分:蜩台式水銅JC65S.1-1997-1.6 懺素第构戢)GB/nOO-88.L?(OW®5117-85.1.8(悍煤轩号表示方尉 GB324-83,CB12212-90.1』(撼前刪表面等级礪騎如 GB8K3.适用于-般工业与駅建裁中,耕及生活林 9*駄躺等绪水匕存.2.1 炯脯的辭便用娶舲当地有关主飽帥要扎2.2 便用介鱷度-段不大于 80 匚輛翘求昭可向制造厂家提监3 水紺遶用本嘶牒水酚工「辭輻水斛躺制郴水崩3.1 成品确鱗3.L1 鯛酬辭箱駢颉端水箱中牆型产乐直生产厂的制适工删备負拜艮产師量保啖为优£并遇过卫生检制门审査,符合生獭用水卫生监督管理翱的规宦要轧翳点嫦灵活方此Ml.2 案軼 OS 水箱依剧腺林昌錨林设备「利北京粧景山礴环就备「鲜的改进鳏配謡神技术绅编制,水舸由高酬鋼札不酬馭热籍賊,瓣賊模压成鋼装而毗 A 有職《»角支财,鉗略特总3.扁组合式不锈钢板给桶【甲)鶴上緯通华不腳助容舉厂错的多功糊合式稠粼箱际鉢编制.熾由鯉模具鮭胖戒型成单元勰凹晦装砌诚耐倾美跚用...

1、当您付费下载文档后,您只拥有了使用权限,并不意味着购买了版权,文档只能用于自身使用,不得用于其他商业用途(如 [转卖]进行直接盈利或[编辑后售卖]进行间接盈利)。
2、本站所有内容均由合作方或网友上传,本站不对文档的完整性、权威性及其观点立场正确性做任何保证或承诺!文档内容仅供研究参考,付费前请自行鉴别。
3、如文档内容存在违规,或者侵犯商业秘密、侵犯著作权等,请点击“违规举报”。

碎片内容

矩形给水箱规范标准图集完整编辑版

确认删除?
VIP
微信客服
  • 扫码咨询
会员Q群
  • 会员专属群点击这里加入QQ群
客服邮箱
回到顶部