电脑桌面
添加小米粒文库到电脑桌面
安装后可以在桌面快捷访问

专科《工程力学》_试卷_答案VIP免费

专科《工程力学》_试卷_答案_第1页
1/11
专科《工程力学》_试卷_答案_第2页
2/11
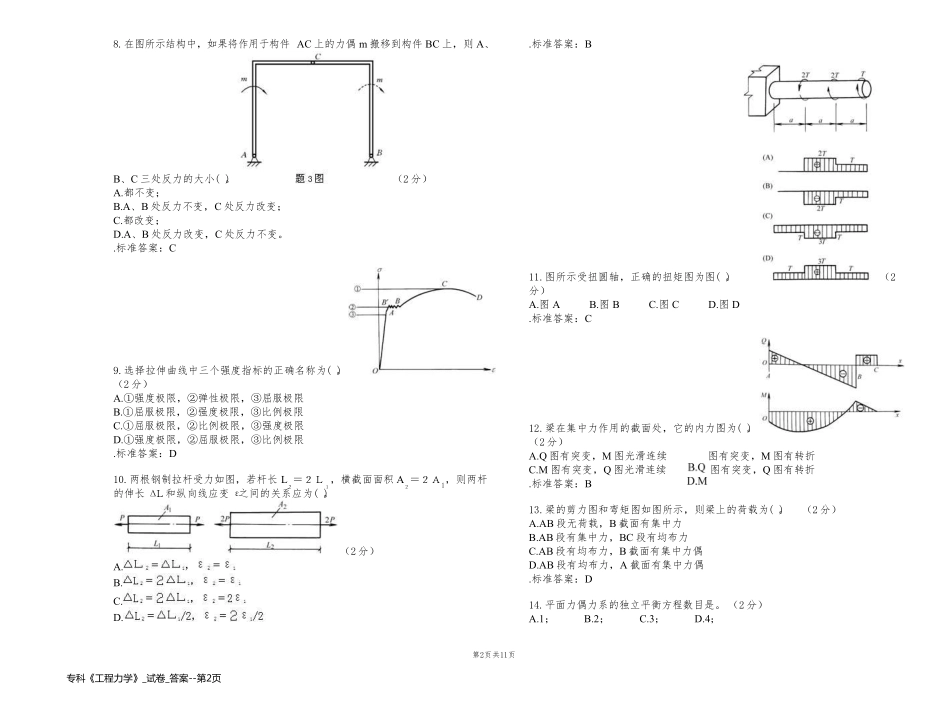
第1页共11页 1 专科《工程力学》 一、 (共75 题,共150 分) 1. 下列结论哪些是正确的( ) (2 分) A.理论力学研究物体的位移,但不研究物体的变形; B.材料力学不仅研究物体的位移,同时研究物体的变形; C.理论力学研究的位移是刚体位移; D.材料力学研究的位移主要是伴随物体变形而产生的位移。 .标准答案:A,B,C,D 2. 悬臂桁架受到大小均为 F 的三个力的作用,如图所示,则杆 1 内力的大小为( );杆 2 内力的大小为( );杆 3 内力的大小为( )。 (2 分) A.F B.; C.0; D.F/2。 .标准答案:A,C 3. 直杆受扭转力偶作用,如题4 图所示。计算截面 1-1和 2-2处的扭矩,哪些是计算不正确( )。 (2 分) A. B. C. D. .标准答案:A,C,D 4. 简支梁受集中力作用,如题5 图,以下结论中( )是正确的。 (2 分) A. B. C. D. .标准答案:A,B,D 5. 静力学把物体看做刚体,是( ) (2 分) A.物体受力不变形 B.物体的硬度很高 C.抽象的力学模型 D.物体的两点的距离永远不变。 .标准答案:C,D 6. 考虑力对物体作用的两种效应,力是( )。 (2 分) A.滑动矢量; B.自由矢量; C.定位矢量。 .标准答案:C 7. 梁 AB 因强度不足,用与其材料相同、截面相同的短梁 CD 加固,如图所示。梁AB 在 D 处受到的支座反力为( )。 (2 分) A.5P/4 B.P C.3/4P D.P/2 .标准答案:A 专 科 《 工 程 力 学 》 _试 卷 _答 案 --第 1页专 科 《 工 程 力 学 》 _试 卷 _答 案 --第 1页第2页共11页 2 8. 在图所示结构中,如果将作用于构件AC 上的力偶m 搬移到构件BC 上,则A、B、C 三处反力的大小( )。 (2 分) A.都不变; B.A、B 处反力不变,C 处反力改变; C.都改变; D.A、B 处反力改变,C 处反力不变。 .标准答案:C 9. 选择拉伸曲线中三个强度指标的正确名称为( )。 (2 分) A.①强度极限,②弹性极限,③屈服极限 B.①屈服极限,②强度极限,③比例极限 C.①屈服极限,②比例极限,③强度极限 D.①强度极限,②屈服极限,③比例极限 .标准答案:D 10. 两根钢制拉杆受力如图,若杆长L2=2L1,横截面面积A2=2A1,则两杆的伸长ΔL和纵向线应变ε之间的关系应为( )。 (2 分) A. B. C. D. .标准答案:B 11. 图所示受扭圆轴,正确的扭矩图为图( )。 (2分) A.图A B.图B C.图C D.图...

1、当您付费下载文档后,您只拥有了使用权限,并不意味着购买了版权,文档只能用于自身使用,不得用于其他商业用途(如 [转卖]进行直接盈利或[编辑后售卖]进行间接盈利)。
2、本站所有内容均由合作方或网友上传,本站不对文档的完整性、权威性及其观点立场正确性做任何保证或承诺!文档内容仅供研究参考,付费前请自行鉴别。
3、如文档内容存在违规,或者侵犯商业秘密、侵犯著作权等,请点击“违规举报”。

碎片内容

专科《工程力学》_试卷_答案

您可能关注的文档

确认删除?
VIP
微信客服
  • 扫码咨询
会员Q群
  • 会员专属群点击这里加入QQ群
客服邮箱
回到顶部