苏州能斯达电子科技有限公司 MEMS和半导体工艺材料配比 苏州能斯达电子科技有限公司的工程师整理了MEMS和半导体工艺中接近50 种材料的湿...
目录第一章工程简况 2第 1 节 工程简况 2第 2 节 工程范围 2第 3 节 工程施工特点2第 4 节 编制依据 3第二章施工部署 3第...
施为湿法脱硫循环水池, 污染物浓度较高, 年久失修老化后可能发生连续性或间歇性的渗漏污染。7.4.3 预测时段本项目仅采暖期运行, 采...
火电厂石灰石—石膏湿法烟气脱硫装置 整套启动试运前质量监督检查典型大纲 电力建设工程质量监督总站 二○○六年四月 1 总 则 1.0.1...
湿法脱硫综述
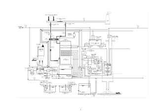
湿法贴膜中文版
2 湿法脱硫技术介绍 2 .1 脱硫方法简介 目 前 , 世 界 范 围 内 的 火 电 厂 脱 硫 技 术 多 种 多 样 , 达 ...
1 MMMMMMMM 2 湿法脱硫系统物料平衡 一、 计算基础数据 (1) 待处理烟气 烟气量:1234496Nm3/h(wet)、1176998 Nm3/h(dry) ...
PgzTgzPsjTsj质量流量G比容v推荐流速流速计算面积选择宽选择高内衬厚宽×高计算流速材料标准MPa(a)OCMPa(a)OCt/hm3/kg(m/s)(m/s)m2(mm)(mm...
日期日期日期烟气脱硫工程设计计算书2*220MW项目名称二烟温和水平衡计算1原烟气(风机前)16标态19浆池内浆液停留时间T2min给定,一般取3~...
日期日期日期min2.5给定,一般取3~8124m/sCa/Sl/Nm3给定,一般取1~1.2给定,一般取8~25设计值MgCO3含量钙硫比干态6.9711.272500给定或由...
日期日期日期烟温和水平衡计算原烟气(风机前)1Vgs给定,一般取2.5~4给定,一般取2~33.5CaMg烟气脱硫工程设计计算书审核校核计算收到基0...
日期日期日期烟气脱硫工程设计计算书2*220MW项目名称417吸收区接触反应时间T1s给定,一般取2~32.516塔内烟气流速Vgm/s给定,一般取2.5~41...
日期日期日期烟温和水平衡计算原烟气(风机前)1Vgs给定,一般取2.5~4给定,一般取2~33.5CaMg烟气脱硫工程设计计算书审核校核计算收到基0...
湿法脱硫工艺吸收塔及塔内件的设计选型 1 吸收塔塔型的选择 在湿法脱硫工艺中,吸收塔是一个核心部件,一个湿法脱硫工程能否成功,关键...
山西聚源煤化有限公司安全技术操作规程 1 目 录 一、岗位职责 二、岗位任务 三、工艺流程简述及工艺指标 四、岗位操作程序 五、正...
湿法脱硫塔设计 一般吸收塔的结构如下图2-2: 图2-2 填料料式吸收塔结构示意图 1—气体出口;2—液体分布器;3—壳体;4—人孔;5—支...
湿法烟气脱硫原理 1 湿法烟气脱硫的基本原理 (1)物理吸收的基本原理 气体吸收可分为物理吸收和化学吸收两种。如果吸收过程不发生显著...
湿法磷酸净化技术 1 国内外磷酸盐现状和发展 1.1 国内湿法磷酸盐 20世纪60年代末70年代初,为了满足国内兴起的合成洗涤工业发展的需要...
-1- 湿法球磨机 Wet Grinding Mill 使用说明书 Operation Instruction 江 苏 鹏 飞 集 团 Jiangsu Pengfei Group 海安鹏...

