清洁生产项目—溴化锂吸收式制冷机组等设备更新施工组织设计二○一四年七月十四日目录1工程概况............................................
电冰箱空调器原理与维修备课第十二章总第课时课题房间空调器常见故障与排除(一)教学目标1、掌握空调器不制冷的几种原因和分析方式2、风机和...
施工组织设计目录编制说明编制依据第一章系统概况1、设计方案简述2、施工条件3、工程特点第二章施工准备部署1、材料设备要求2、主要机具准...
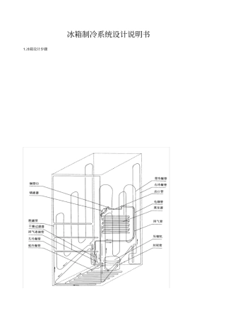
冰箱制冷系统设计说明书1.冰箱设计步骤图1BCD-348W/H电冰箱制冷系统图2.冰箱的总体布置2.1箱体设计要求及形式电冰箱箱体设计的优劣,直接影...
制冷系统故障分析总结制冷系统发生了故障,一般不可能直接看到故障的部位发生在哪里,也不可能将制冷系统的部件一一分解和解剖,只能从外表...
前言本次设计的目的是为了对《空气调节用制冷技术》进行巩固,通过前期上课的理论学习,进行实践。具体内容是针对乌鲁木齐地区,设计其适合...
第一章制冷技术基本知识§1-1概述一、何谓制冷日常生活中常说的“热”或“冷”是人体对温度高低感觉的反应。在制冷技术中所说的冷,是指某...
目录施工组织设计第一章工程概况第二章编制依据及原则第三章工程项目管理目标第四章施工准备方案第五章施工进度计划及保证措施第六章确保工...
制冷与空调作业实操考试标准说明:制冷与空调设备运行操作作业、制冷与空调设备安装修理作业实操考核各含22道题,分值40分为否决题,分值30...
一、设计任务和已知条件根据要求,在武汉地区,以风机盘管为末端装置,冷冻水温度为7℃,空调回水温度为11℃,总制冷量为400KW,冷却水系统...
国机集团先进基层党组织事迹材料制冷空调与环境控制研究所党支部事迹材料制冷空调与环境控制研究所党支部现有正式党员22人,入党积极分子2...
第1页共6页编号:时间:2021年x月x日书山有路勤为径,学海无涯苦作舟页码:第1页共6页某肉羊屠宰项目制冷工艺设计摘要:结合实际工程,简单...
第0页共123页编号:时间:2021年x月x日书山有路勤为径,学海无涯苦作舟页码:第0页共123页XXXXXXXX工程保温、制冷及加工设备项目施工组织设...
第1页共6页编号:时间:2021年x月x日书山有路勤为径,学海无涯苦作舟页码:第1页共6页某肉羊屠宰项目制冷工艺设计摘要:结合实际工程,简单...
1目录1.设计题目·························································...
YY制冷渠道价值链系统系统设计报告华南大区软件开发部文件编号:TD201文件版次:QMS2005文档编号版本号分册名称第1册/共1册总页数正文附录...
第1页共13页编号:时间:2021年x月x日书山有路勤为径,学海无涯苦作舟页码:第1页共13页某公司氨制冷系统事故应急抢险处置预案众所周知,氨...
涉氨制冷打非治违专项行动方案一、指导思想认真贯彻落实中央领导同志近期关于安全生产工作的重要指示精神,以国家法律法规、标准规范为依据...
---------=----=------------=一、机械冷库的制冷原理:所谓机械冷库,简单地讲就是以机械方法进行制冷的冷库。目前我国多数机械冷库主要是...
宁波钢铁有限公司五丰塘焦化工程煤气净化车间制冷站工段设备安装施工方案编制人:审核人:编制日期:河北省安装工程公司目录1编制说明........

