电脑桌面
添加小米粒文库到电脑桌面
安装后可以在桌面快捷访问

巴歇尔流量槽VIP免费

巴歇尔流量槽_第1页
1/33
巴歇尔流量槽_第2页
2/33
巴歇尔流量槽_第3页
3/33
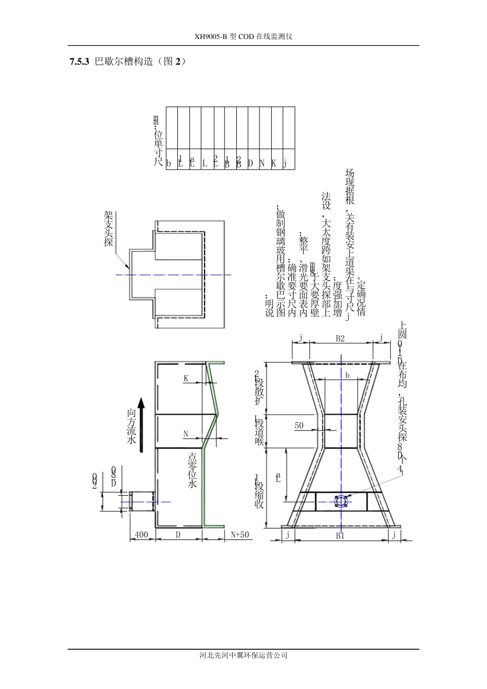
7.5 巴歇尔流量槽概要 7 .5 .1 流量测量原理 1)测量原理: 用明渠测流量时,在明渠上安装量水堰槽。量水堰槽把明渠内流量的大小转成液位的高低。利用超声波传感器测量量水堰槽内的水位,再按相应量水堰槽的水位-流量关系反算出流量。 7 .5 .2 巴歇尔槽现场安装平面示意图(图 1 ) XH9005-B 型COD 在线监测仪 河北先河中翼环保运营公司 7 .5 .3 巴歇尔槽构造(图2 ) 水流方向水位零点D400D=80200N+50NKB1B2b收缩段L1喉道段L扩散段L2La50jjjj说明:图示巴歇尔槽用玻璃钢制做;内尺寸要准确;内表面要光滑、平整;壁厚要大于8mm上部探头支架如跨度太大,设法增加强度;b L1尺寸单位:mmLaL2 B1 B2 D N K jj尺寸与在渠道上安装有关,根据现场情况确定。探头支架L4个D=8探头安装孔,均布在D=110圆上XH9005-B 型COD 在线监测仪 河北先河中翼环保运营公司 7 .5 .4 巴歇尔槽构造尺寸(表一) 单位:米 类别 序号 喉道段 收缩段 扩散段 墙高 b N B1 L1 La B2 L2 K D 小 型 1 0.025 0.076 0.029 0.167 0.356 0.237 0.093 0.203 0.019 0.23 2 0.051 0.114 0.043 0.214 0.406 0.271 0.135 0.254 0.022 0.26 3 0.076 0.152 0.057 0.259 0.457 0.305 0.178 0.305 0.025 0.46 4 0.152 0.305 0.114 0.400 0.610 0.407 0.394 0.610 0.076 0.61 5 0.228 0.305 0.114 0.575 0.864 0.576 0.381 0.457 0.076 0.77 标 准 型 6 0.25 0.60 0.23 0.78 1.325 0.883 0.55 0.92 0.08 0.80 7 0.30 0.60 0.23 0.84 1.350 0.902 0.60 0.92 0.08 0.95 8 0.45 0.60 0.23 1.02 1.425 0.948 0.75 0.92 0.08 0.95 9 0.60 0.60 0.23 1.20 1.500 1.0 0.90 0.92 0.08 0.95 10 0.75 0.60 0.23 1.38 1.575 1.053 1.05 0.92 0.08 0.95 11 0.90 0.60 0.23 1.56 1.650 1.099 1.20 0.92 0.08 0.95 12 1.00 0.60 0.23 1.68 1.705 1.139 1.30 0.92 0.08 1.0 13 1.20 0.60 0.23 1.92 1.800 1.203 1.50 0.92 0.08 1.0 14 1.50 0.60 0.23 2.28 1.95 1.303 1.80 0.92 0.08 1.0 15 1.80 0.60 0.23 2.64 2.10 1.399 2.10 0.92 0.08 1.0 16 2.10 0.60 0.23 3.00 2.25 1.504 2.40 0.92 0.08 1.0 17 2.40 0.60 0.23 3.36 2.40 1.604 2.70 0.92...

1、当您付费下载文档后,您只拥有了使用权限,并不意味着购买了版权,文档只能用于自身使用,不得用于其他商业用途(如 [转卖]进行直接盈利或[编辑后售卖]进行间接盈利)。
2、本站所有内容均由合作方或网友上传,本站不对文档的完整性、权威性及其观点立场正确性做任何保证或承诺!文档内容仅供研究参考,付费前请自行鉴别。
3、如文档内容存在违规,或者侵犯商业秘密、侵犯著作权等,请点击“违规举报”。

碎片内容

巴歇尔流量槽

您可能关注的文档

确认删除?
VIP
微信客服
  • 扫码咨询
会员Q群
  • 会员专属群点击这里加入QQ群
客服邮箱
回到顶部