电脑桌面
添加小米粒文库到电脑桌面
安装后可以在桌面快捷访问

UG4.0第六章相关参数化设计VIP免费

UG4.0第六章相关参数化设计_第1页
1/24
UG4.0第六章相关参数化设计_第2页
2/24
UG4.0第六章相关参数化设计_第3页
3/24
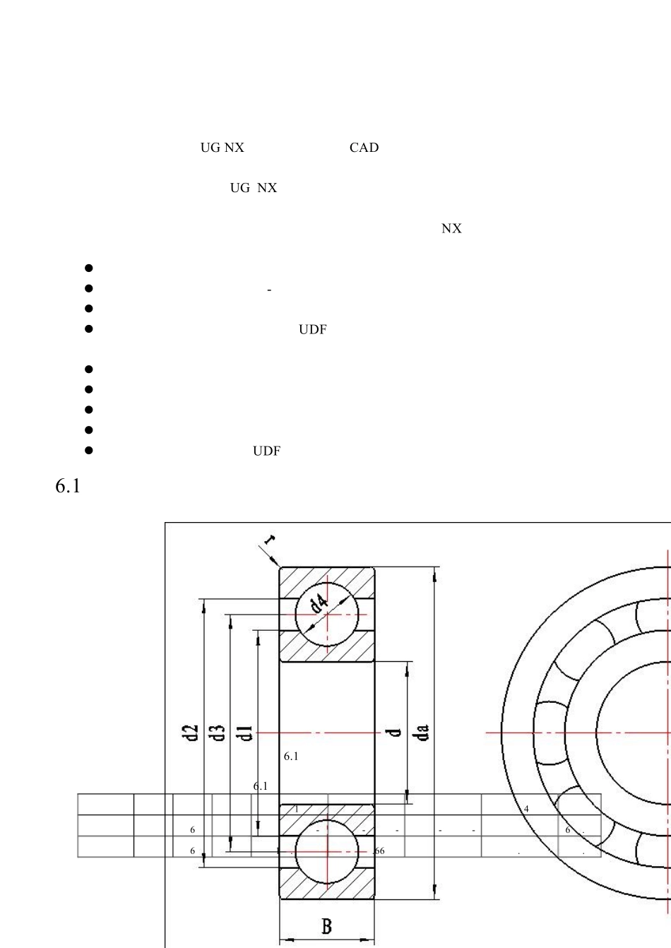
149 第六章 相关参数化设计 参数化建模技术是 U G N X 软件的精华,是 CAD 技术的发展方向之一。对于优秀的设计 人员来说,熟练掌握参数化设计技术是必须的。因此,读者在学习本章的过程中应注意领悟 参数化技术的思想,应渗透 U G N X 是如何通过草图、特征、定位及表达式等手段实现参数 化建模的目的,实现部件的全相关设计和关键变量的参数化设计。 本章将通过工业钻孔机几种零件设计作为应用项目,介绍 N X 参数化设计的一般方法, 使读者了解常用参数化设计的一般过程。本章的主要内容为: l 利用变量完成深沟球轴承的参数化设计。 l 内六角螺钉的标准件设计­创建和使用标准件库。 l 渐开线直齿圆柱齿轮的参数化设计。 l 弹簧零件的参数化设计,建立 U DF,并定义其在装配中可变形。 本章所学习的重要知识点为: l 表达式的应用; l 部件族及电子表格的应用; l 利用草图实现相关设计; l 相关曲线及方程曲线的创建方法; l 建立以后自定义特征(U DF)和定义可变形组件; 6.1 项目一 深沟球轴承的参数化建模 图 6.1 深沟球轴承零件图 表 6.1 深沟球轴承各参数之间的关系 参数 da d b d1 d2 d3 d4 r 公式 28 6 8 d+(da­d)/3 da­(da­d)/3 da­(da­d)/2 (da­d)/6 0.3 值 28 6 8 17.333 22.667 20 5.333 0.3150 6.1.1 设计背景 工业钻孔机的曲轴需要使用一组深沟球轴承,其图纸如图 6.1 所示。轴承各尺寸的关系 如表 6.1 所示。完成的零件需要满足以下设计要求: 通过修改轴承的几个变量(外径 da、内径 d、宽度 b 以及圆角半径 r),能够实现轴承的 快速更新,并且滚珠的数量为:取大于等于“滚珠中心圆的周长”除以“1.5 倍的滚珠直径” 的最小整数。 6.1.2 项目分析 由表 6.1 可以确知轴承的自由变化参数为 da、d、b、r,其它参数都可由这几个参数来 表达。因此,我们可以利用 NX 的表达式功能来创建和管理这些设计参数。另外滚珠的数量 可以使用 NX 内部函数“ceiling()”来实现。表 6.2 按照表达式的四个要素(名称、公式、量 纲、单位)列出了 NX 支持的表达式形式。 表 6.2 UG NX 支持的表达式格式 名称 da d b d1 d2 d3 d4 r n 公式 28 6 8 d+(da­d)/3 da­(da­d)/3 da­(da­d)/2 (da­d)/3 0.3 ceiling((pi()*d3)/(1.5*d4)) 量纲 长度 长度 长度 长度 长度 长度 长度...

1、当您付费下载文档后,您只拥有了使用权限,并不意味着购买了版权,文档只能用于自身使用,不得用于其他商业用途(如 [转卖]进行直接盈利或[编辑后售卖]进行间接盈利)。
2、本站所有内容均由合作方或网友上传,本站不对文档的完整性、权威性及其观点立场正确性做任何保证或承诺!文档内容仅供研究参考,付费前请自行鉴别。
3、如文档内容存在违规,或者侵犯商业秘密、侵犯著作权等,请点击“违规举报”。

碎片内容

UG4.0第六章相关参数化设计

小辰4+ 关注
实名认证
内容提供者

出售各种资料和文档

确认删除?
VIP
微信客服
  • 扫码咨询
会员Q群
  • 会员专属群点击这里加入QQ群
客服邮箱
回到顶部