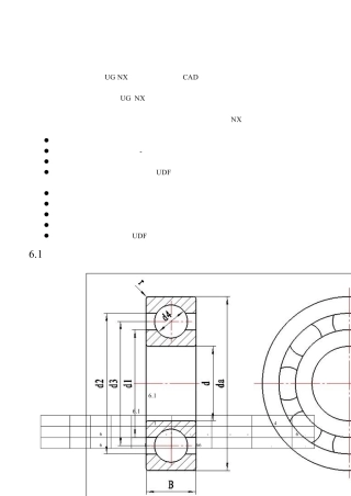
149 第六章 相关参数化设计 参数化建模技术是 U G N X 软件的精华,是 CAD 技术的发展方向之一。对于优秀的设计 人员来说,熟练...
安装数控仿真系统 03 宇龙数控仿真系统——XP——SETUP.EXE——下一步(连续几个,其中要选择教师机)——确定 打开仿真系统 程序——...
UG4.0教程第四章草图
UG4.0教程第十章自由曲面建模
104 第五章 实体建模应用项目 本章将以如图 5.1 所示的工业钻孔的发动机的部分零件建模作为项目应用主线,介绍使 用 UG NX 进行产...
UG4.0教程第七章装配建模基础
平面铣 1 5 种平面铣加工方式图标: ① 表面区域铣加工方式图标,需要以面定仪切削区域。 ② 表面铣加工方式图标,用于加工表面几何...
文件(F)-新建(N)... Ctrl+N 文件(F)-打开(O)... Ctrl+O 文件(F)-保存(S) Ctrl+S 文件(F)-另存为(A)... Ctrl+推移+A 文件(F)-绘图(L...
UG4.0 安装说明 首先双击运行安装目录下的Lau nch.ex e 程序。 出现以下NX 4 程序安装界面: UG4.0 安装需要安装三个程序,及服...
UG4.0入门基本操作方法
第一步把许可证里 SERV ER 和 ANY 中间一段文字改成电脑名,然另保存 第二步双击 Launch.exe 文件 第三步安装许可证点击 Instll...
首先打开UG4.0软件按ctrl+M进入建模模式再按ctrl+E进入表达式输入t=1输入张xt=50*t输入yt=10*sin(t*360)在曲线时面找到规律曲线然后点击F(X...
UG铣螺纹方法------------江苏深度低调制作1.首先创建螺纹,注意用螺纹符号。创建出所需的螺纹标示。2.进入加工模块创建所需刀具选择DRILL...

