电脑桌面
添加小米粒文库到电脑桌面
安装后可以在桌面快捷访问

2025年启闭机吊装方案VIP免费

2025年启闭机吊装方案_第1页
1/8
2025年启闭机吊装方案_第2页
2/8
2025年启闭机吊装方案_第3页
3/8
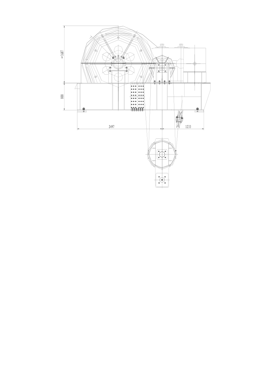
长宁县东山水库放空洞闸门及启闭机吊装方案 监理机构:四川腾越建设监理有限公司 长宁县东山水库工程建设监理部承 包 人:自贡九天水利机械有限公司 日 期:5 月 19 日一, 概况根据招标文献及合同的商定,参考有关的制作安装规范,由于道路、桥梁的实际状况,放空洞闸门及启闭机全部设备不含有正常安装吊装条件,特制订下列吊装方案进行安装。1、放空洞工作闸门外形尺寸为(mm)_ 710 × 271 0 × 4480 ,分为 1 节,单节最大重量为 7t ;采用3桥货运汽车运输到安装现场。2、放空洞检修闸门外形尺寸为(mm) 1200 × 2500 × 4900 ,分为 节,单节最大重量为 7t ;采用3桥货运汽车运输到安装现场。3、放空洞工作、检修闸启闭机总重均为 25.7t,整体分为2大部分;卷筒、轴及大齿为一部分,最大重量为 11.5 吨;机架外形尺寸见图一,最大重量为 11.5t;采用3桥货运汽车运输到安装现场。二、安装现场道路货车及吊车司机到现场查看,大坝右岸转弯处需要平整加宽,放空洞引桥段路面需要平整压实,放空洞引桥端头处需平整加宽压实。三、闸门、启闭机的吊装基本方案 1,产品卸车现场吊装设备选用 25 吨汽车吊进行全部产品的卸车及配合再次转运,吊车停放于放空洞引桥头一侧,产品卸车时按编号及次序依次摆放,等待再次转运。 2,转运轨道及平车制造 ①、租用 8 吨汽车吊配合完毕;轨道中心距为 2.6 米,长度为 54 米;轨道主梁采用 2×14#工字钢(组焊件),横向连接横梁采用 10#槽钢,左右固定支撑采用 10#槽钢,轨道底面调节采用硬橡胶板及钢板垫平,全部轨道、横梁、左右支撑焊接为一整体。 ②、租用 8 吨汽车吊配合完毕;平车主梁横向中心距为 2.6 米,纵向中心距为3.5 米,支架高度 0.2—1.2 米。平车主梁采用 20#工字钢,次梁及支架采用14#工字钢,主动轮采用 4 组 8 轮组合件装配而成;平车牵引动力采用 3 吨固定式卷扬机,同时作 3 级变速解决,配滑轮组及全套附件。 3,垂直起吊吊架制造及设备 ①、由于吊架制造全过程都在工作闸室与检修闸室之间,采用 3 吨汽车吊配合制造的全过程。 ②、垂直起吊吊架前后横向为人字门型架,底部中心为 4.4 米,顶部中心为2.2 米,立柱为 Ф426×8 钢管,前立柱每根高度为 6.5 米,后立柱每根高度为3.0 米,立柱顶板及底板采用钢板(20×800×800—8 件),支撑钢板板(12×300×300—64 件);前后门架上横梁分别采用 56#...

1、当您付费下载文档后,您只拥有了使用权限,并不意味着购买了版权,文档只能用于自身使用,不得用于其他商业用途(如 [转卖]进行直接盈利或[编辑后售卖]进行间接盈利)。
2、本站所有内容均由合作方或网友上传,本站不对文档的完整性、权威性及其观点立场正确性做任何保证或承诺!文档内容仅供研究参考,付费前请自行鉴别。
3、如文档内容存在违规,或者侵犯商业秘密、侵犯著作权等,请点击“违规举报”。

碎片内容

2025年启闭机吊装方案

您可能关注的文档

确认删除?
VIP
微信客服
  • 扫码咨询
会员Q群
  • 会员专属群点击这里加入QQ群
客服邮箱
回到顶部