电脑桌面
添加小米粒文库到电脑桌面
安装后可以在桌面快捷访问

施工现场临时用电配电箱(柜)配置资料VIP免费

施工现场临时用电配电箱(柜)配置资料_第1页
1/12
施工现场临时用电配电箱(柜)配置资料_第2页
2/12
施工现场临时用电配电箱(柜)配置资料_第3页
3/12
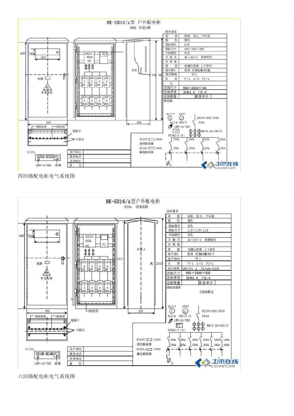
施工现场临时用电配电箱(柜)配置资料! 该配电箱(柜)适用于施工现场及户外临时用电,应满足“三级配电、 二级漏电保护、一机一闸、一漏一箱”配电及保护的使用要求。 一、基本要求 (一)配电箱(柜)的生产制造应符合《低压成套开关设备和控制设备》第四部分 GB7251.4 对建筑工地用成套设备(ACS)的特殊要求及《施工现场临时用电安全技术规范》JGJ46-2005 的标准要求。 (二)配电箱(柜)、开关箱安装使用应符合《施工现场临时用电安全技术规范》JGJ46-2005 标准及《用电安全导则》GB/T13869 标准化要求。 (三)配电箱(柜)、开关箱应分设 N 线、PE 线端子板,进出线必须通过端子板做可靠连接。N 线端子板必须与金属电器安装板绝缘;PE 线端子板必须与金属电器安装板做电气连接。进出线中的 N 线必须通过 N 线端子板连接;PE 线必须通过 PE 线端子板连接。PE 线与端子板连接必须采用电气连接,电气连接点的数量应比箱体内回路数量多 2 个,1 个为 PE 线进箱体的连接点,1 个为重复接地的连接点。 (四)电器元件应选用符合 GB/4048.2-2001、GB6829 以及JGJ46-2005 标准的产品,并符合建设部“十一五”推广应用技术要求。 二、总配电箱(柜) 内设 400A-630A 具有隔离功能的 DZ20 型透明塑壳断路器作为主开关,分路设置4-8 路采用具有隔离功能的DZ20 系列 160A-250A 透明塑壳断路器,配备 DZ20L(DZ15L)或 LBM-1 系列作为漏电保护装置,使之具有欠压、过载、短路、漏电、断相保护功能,同时配备电度表、电压表、电流表两组电流互盛器。漏电保护装置的额定漏电动作电流与额定漏电动作时间的乘积不大于30m A.S,最好选用额定漏电动作电流 100-200m A,额定漏电动作时间大于0.1S,其动作时间为延时动作型。 总配电柜示意图 总配电柜端子板节点图 总配电柜柜门电气连接节点图 四回路配电柜电气系统图 六回路配电柜电气系统图 三、分配电箱(动力回路与照明回路分路配电) 内设 200A-250A 具有隔离功能的 DZ20 系列透明塑壳断路器作为主开关(与总配电箱分路设置断路器相适应);采用 DZ20 或 KDM-1 型透明塑壳断路器作为动力分路、照明分路控制开关;各配电回路采用 DZ20 或 KDM-1 透明塑壳断路器作为控制开关;PE 线连线螺栓、N 线接线螺栓根据实际需要配置。 分配电箱示意图 分配电箱PE、N 线端子板节点图 分配电箱箱门电气连接节点图 分配电箱电气系统图 ...

1、当您付费下载文档后,您只拥有了使用权限,并不意味着购买了版权,文档只能用于自身使用,不得用于其他商业用途(如 [转卖]进行直接盈利或[编辑后售卖]进行间接盈利)。
2、本站所有内容均由合作方或网友上传,本站不对文档的完整性、权威性及其观点立场正确性做任何保证或承诺!文档内容仅供研究参考,付费前请自行鉴别。
3、如文档内容存在违规,或者侵犯商业秘密、侵犯著作权等,请点击“违规举报”。

碎片内容

施工现场临时用电配电箱(柜)配置资料

小辰4+ 关注
实名认证
内容提供者

出售各种资料和文档

确认删除?
VIP
微信客服
  • 扫码咨询
会员Q群
  • 会员专属群点击这里加入QQ群
客服邮箱
回到顶部