电脑桌面
添加小米粒文库到电脑桌面
安装后可以在桌面快捷访问

机房建设方案说明VIP免费

机房建设方案说明_第1页
1/4
机房建设方案说明_第2页
2/4
机房建设方案说明_第3页
3/4
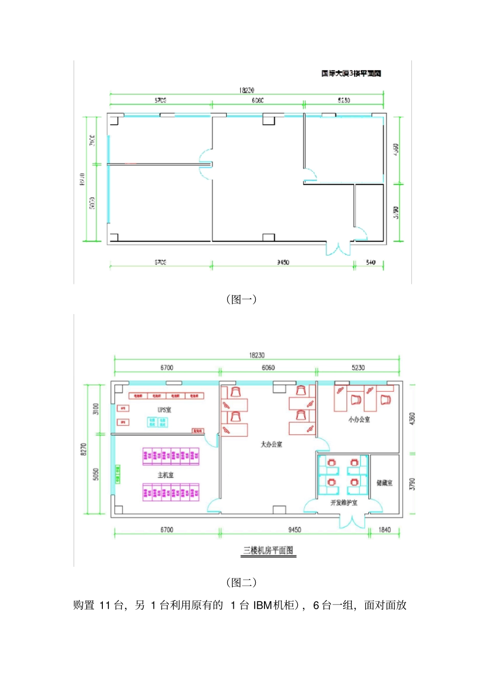
附件 1:机房改造需求说明南通市财政局因业务需求,将现有机房改造,机房使用面积为150 m2(如图一),机房建议布置图参见图二。整个机房分为主机室(使用面积 34 m2)、UPS室(使用面积 21 m2)、小办公室(使用面积28m2)、大办公室(使用面积50m2)、开发维护室(使用面积10m2)、储藏室(使用面积 7m2)。实施单位在开标前应实地查看,了解建设方的需求。一、搬迁需求1.机房简单装修。(1)将主机室、 UPS室重新按图二划分功能区域。保证主机室、UPS室与大办公室的隔音、防磁,需要隔断,在隔断中间填充岩棉隔音,并采用机房专用防静电彩钢板墙面以阻隔电磁辐射。(2)机房实行上走线,强电、弱电分别按机房标准设置桥架。2.配电系统(1)电力供应分成两部分,一部分使用现有线路和设备,提供机房内照明、中央空调;另一部分是主机房设备、UPS、专用空调的供电采用原 18 楼机房的电力线路, 待机房搬迁切换时将18 楼机房的动力电缆抽回到 3 楼机房。(2)配置防雷装置3.办公桌椅及空调(1)开发维护室配置 4 套震旦办公桌椅,有隔断。(2)安装 1 台 1.5 匹壁挂式空调。4.机房布线及机柜(1)主机房配置 12 台康达标准服务器机柜600*1000*2000(新(图一)(图二)购置 11 台,另 1 台利用原有的 1 台 IBM机柜),6 台一组,面对面放置,间距 1.2m。机柜不配面板,每个机柜配置3 块隔板。另需 26 只防浪涌 PDU(8 位万用孔输出)、40 只水平理线架。(2)在 3 层机房与 1901 室敷设 4 根 12 芯多模光缆。(3)主机房及 UPS所有线路为上走线,强电和弱电分别按标准架设桥架。(4)每个机柜与核心交换预设10 根 6 类双绞线, 在交换端需打配线架。(5)在指定位置一共需安装12 套信息点, 每套信息点包括 2 个内网、 1 个外网、 1 个语音点。5.新增环境监控系统(1)实时监测机房内的温湿度、电力供应、UPS的输出电压电流、专用空调的工作状态、 机房区域的漏水检测、机房内的安防报警信息等,(2)在主机室、 UPS室、办公室、开发维护室、机房入门各配置 1 只红外半球摄像机、 1 只双鉴复合探测器,当有人闯入机房时会触发报警、并实时录像。(3)出现异常情况时会自动通过短信、邮件等方式向机房管理人员发出警报。(4)通过互联网能实时调阅环境监控信息。(5)在机房大门口安装门禁系统。(6)新购 1 台 TCL 42 寸液晶高清电视用于监控信息显示。6.购置 2 台机房专...

1、当您付费下载文档后,您只拥有了使用权限,并不意味着购买了版权,文档只能用于自身使用,不得用于其他商业用途(如 [转卖]进行直接盈利或[编辑后售卖]进行间接盈利)。
2、本站所有内容均由合作方或网友上传,本站不对文档的完整性、权威性及其观点立场正确性做任何保证或承诺!文档内容仅供研究参考,付费前请自行鉴别。
3、如文档内容存在违规,或者侵犯商业秘密、侵犯著作权等,请点击“违规举报”。

碎片内容

机房建设方案说明

您可能关注的文档

确认删除?
VIP
微信客服
  • 扫码咨询
会员Q群
  • 会员专属群点击这里加入QQ群
客服邮箱
回到顶部