电脑桌面
添加小米粒文库到电脑桌面
安装后可以在桌面快捷访问

火电工程项目建设流程图VIP免费

火电工程项目建设流程图_第1页
1/10
火电工程项目建设流程图_第2页
2/10
火电工程项目建设流程图_第3页
3/10
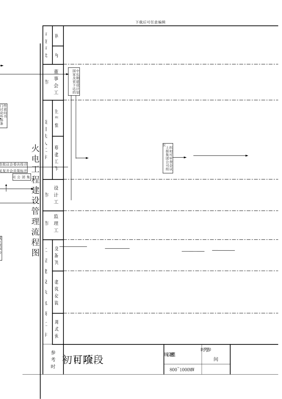
下载后可任意编辑火电工程建设管理流程图审查审批单内董事会工作项目法人工作生产准筹建工作设计工作监理工作工 程 建 设 承 包 商 工 作设备供建筑安装调试承参考时项目初可阶段建设规 模参考时间800~1000MW集团公司中长期建设计划国家及省下达的成立董事会召开投标决策委员会会议并批复意见织初可审查会议上报集团公司组织件意向书门讨论外部条下载后可任意编辑1200~1800MW2400~3600MW审查审批单 内 董事会工作项目法人工作生产准筹建工作设计工作监理工作工 程 建 设 承 包 商 工 作设备供建筑安装调试承参下载后可任意编辑考时 可 行 性 研 究 阶 段审查审批单 内 董事会工作项目法人工作生产准备筹建工作设计工作监理工作工 程 建 设 承 包 商 工 作设备供建筑安装调试承建设规 模参考组织参加铁路(码头)、接入系统、环保影响书、水源水文地质报告审查会国家环保局组织铁路(码头)可研报告审查会铁路(码头)可研组织电厂接入系统规划设计审交通部铁道部水源水文地质勘接入系统规划前期重大外委调组织前期重大调研项目审查环境影响电规总院编制环评发改委有关上级主管部门铁路码头接入地水源水重大重大课题质外业工作地质报告环境编制水源水文地质评编制环境影响报组织环境影响报告书审查组织水源水文地质报告审源水文地质报告等任务下载后可任意编辑800~1000MW1200~1800MW2400~3600MW审查审批单 内 董事会工作项目法人工作生产准备筹建工作设计工作监理工作工 程 建 设 承 包 商 工 作设备供建筑安装调试承协议或合同文件电规总院下发审查文件主持可研审查会集团公司发改委转报项目组建生产经营管理班子编制生产项目核准设计创优措施下载后可任意编辑 初 步 设 计 阶 段审查审批单 内 董事会工作项目法人工作生产准备筹建工作设计工作监理工作工 程 建 设 承 包 商 工 作设备供建筑安装调试承建设规 模参考时间组织水源水文地质报组织接入系统配套送其他特别调研试验报电规总院铁路部门组织铁路(码头)初设审全省水资委电规总院有关主管部门审查会议参加铁路(码头)水源水文地质报告接入系统配套送出合其审查会议电规总院审查会议编制主机及主要附机技术法律规范书、招标文件报告审查会及招标书审查会议组织参加铁路(码头)水源水文地质报接入系统配套送出合其他调集运行检修人员培训运行检修人员参加主机及主要辅机法根据监理合同参加主辅机法律规购招标文件下载后可任意...

1、当您付费下载文档后,您只拥有了使用权限,并不意味着购买了版权,文档只能用于自身使用,不得用于其他商业用途(如 [转卖]进行直接盈利或[编辑后售卖]进行间接盈利)。
2、本站所有内容均由合作方或网友上传,本站不对文档的完整性、权威性及其观点立场正确性做任何保证或承诺!文档内容仅供研究参考,付费前请自行鉴别。
3、如文档内容存在违规,或者侵犯商业秘密、侵犯著作权等,请点击“违规举报”。

碎片内容

火电工程项目建设流程图

您可能关注的文档

确认删除?
VIP
微信客服
  • 扫码咨询
会员Q群
  • 会员专属群点击这里加入QQ群
客服邮箱
回到顶部