电脑桌面
添加小米粒文库到电脑桌面
安装后可以在桌面快捷访问

水磨石施工工序VIP免费

水磨石施工工序_第1页
1/7
水磨石施工工序_第2页
2/7
水磨石施工工序_第3页
3/7
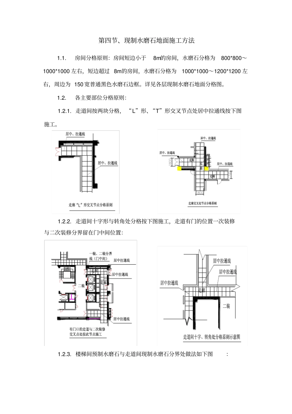
第四节、现制水磨石地面施工方法1.1.房间分格原则:房间短边小于8m的房间,水磨石分格为800*800~1000*1000 左右,短边超过 8m的房间,水磨石分格为1000*1000~1200*1200 左右,周边为 150 宽普通黑色水磨石边框。详见各层现制水磨石地面分格图。1.2.各主要部位分格原则:1.2.1. 走道间按两块分格, “L”形、“T”形交叉节点处居中拉通线按下图施工。1.2.2. 走道间十字形与转角处分格按下图施工,走道有门的位置一次装修与二次装修分界留在门中间位置:1.2.3. 楼梯间预制水磨石与走道间现制水磨石分界处做法如下图:走道现制水磨石预制水磨石地面与预制水磨石踢脚线平齐预制水磨石踢脚板黑色150宽现制水磨石1.2.4. 门口处水磨石分格原则按下图:第一种情况门口两边均为现制水磨石地面按下图示一施工; 第二种情况门口两边一边是现制水磨石地面,一边是二次装修或其它地面做法按下图示分格原则2 施工:一次装修范围黑色水磨石分界线 ( 二次装修)门口处水磨石分格原则2分界线 ( 其他地面做法在墙中间位置)1.3.原材料水泥:采用 425#普通硅酸盐水泥。同颜色水泥应采用同一批水泥;矿物颜料:水泥中掺入的颜料应采用耐光、耐碱的矿物颜料,不得使用矿物酸性颜料。其掺入量为水泥重量的3%-6%,同一颜色面层应使用同厂、同批的颜料;石粒:采用坚硬可磨的白云石、大理石等岩石加工而成,石料应无杂物。分格条:为玻璃条由平板普通玻璃裁制而成,3mm厚,宽度根据面层厚度而定,长度根据房间分块规格尺寸而定;砂:中砂,过 8mm孔径的筛子,含泥量不得大于3%。草酸:用前用水稀释;外加剂:由于施工期间气温较高,拌合料凝结过快;大面积使用砂浆收缩过大易出现裂缝。 为保证水磨石施工质量减少返工,在水磨石拌合料中掺加缓凝剂和水泥用量 10%的 UEA膨胀剂。1.4.主要机具磨石机、石滚子、木抹子、毛刷子、铁簸箕、2m长刮杠,手推车、 5mm孔径筛子、磨石(粗、中、细) 、胶皮管、大小水桶、扫帚、带胶皮的刮浆推板等。1.5.作业条件施工部位结构验收完毕,并做好屋面防水层,墙面已弹好+50cm 标高水平线。安装好门框并加防护,堵严管洞口,与地面有关的各种设备和埋件安装完,做完地面垫层,按标高留出磨石面层厚度(至少3cm)。石渣应分别过筛,并洗净无杂物。1.5.1.操作工艺工艺流程基层处理→找标高弹水平线→铺抹找平层砂浆并养护→弹分格线镶分格条并→养护→拌制装填水磨石面层拌合料→滚压、抹平→粗磨→细磨→二遍刮浆→...

1、当您付费下载文档后,您只拥有了使用权限,并不意味着购买了版权,文档只能用于自身使用,不得用于其他商业用途(如 [转卖]进行直接盈利或[编辑后售卖]进行间接盈利)。
2、本站所有内容均由合作方或网友上传,本站不对文档的完整性、权威性及其观点立场正确性做任何保证或承诺!文档内容仅供研究参考,付费前请自行鉴别。
3、如文档内容存在违规,或者侵犯商业秘密、侵犯著作权等,请点击“违规举报”。

碎片内容

水磨石施工工序

您可能关注的文档

确认删除?
VIP
微信客服
  • 扫码咨询
会员Q群
  • 会员专属群点击这里加入QQ群
客服邮箱
回到顶部